LEMON Manuals: Even more car manuals for everyone: 1960-2025
Home >> Audi >> 2016 >> Q3 Premium Plus >> Repair and Diagnosis (Single Page) >> Quick Lookups >> Wiring Diagrams >> A/C System With Automatic Control - Wiring Diagrams >> A/C System With Automatic Control, (9AK), (9AP) >> High Pressure Sensor, Air Quality Sensor, CLIMATRONIC Control Module
April 5, 2026: LEMON Manuals is launched! Read the announcement.

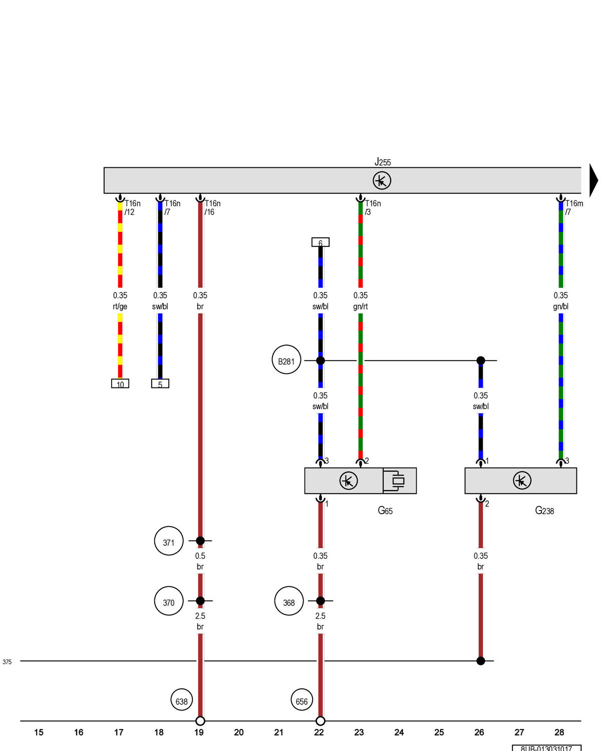
High Pressure Sensor, Air Quality Sensor, CLIMATRONIC Control Module

GWW8UB-013031017Courtesy of AUDI OF AMERICA, LLC

G65  High Pressure Sensor

G238  Air Quality Sensor

J255  Climatronic Control Module

T16m  16-Pin Connector

T16n  16-Pin Connector

(368) Ground Connection 3 (in Main Wiring Harness)

(370) Ground Connection 5 (in Main Wiring Harness)

(371) Ground Connection 6 (in Main Wiring Harness)

(375) Ground Connection 10 (in Main Wiring Harness)

(638) Ground Connection on Right A-Pillar

(656) Ground Connection on Right Headlamp

(B281) Positive Connection 5 (15a) (in Main Wiring Harness)