LEMON Manuals: Even more car manuals for everyone: 1960-2025
Home >> Cadillac >> 2013 >> SRX Base >> Repair and Diagnosis (Single Page) >> Accessories & Equipment >> Entertainment Systems >> Cellular System, Entertainment System, And Navigation System >> Schematic Wiring Diagrams >> Radio/Navigation System Wiring Schematics >> Media Disc Player Power, Ground, Data Communication, and Disc Eject Switch
April 5, 2026: LEMON Manuals is launched! Read the announcement.

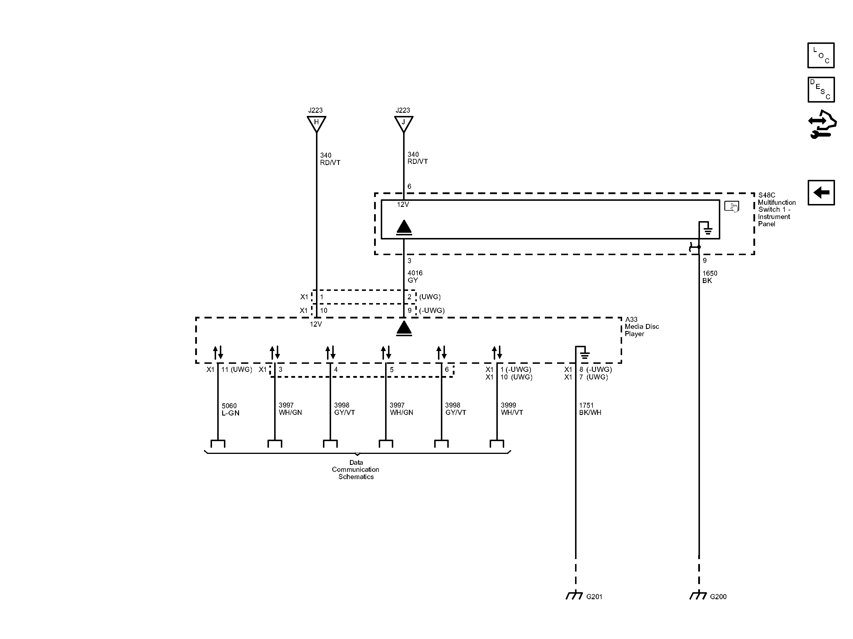
Media Disc Player Power, Ground, Data Communication, and Disc Eject Switch

Fig 1: Media Disc Player Power, Ground, Data Communication, and Disc Eject Switch Wiring Schematic
GM2837830Courtesy of GENERAL MOTORS COMPANY