LEMON Manuals: Even more car manuals for everyone: 1960-2025
Home >> Cadillac >> 2016 >> CTS Base, AWD >> Repair and Diagnosis >> External Pages >> Different car >> Section 160 (Keyless Entry System And Remote Functions - Sedan) >> Schematic Wiring Diagrams >> Remote Function Wiring Schematics >> Keyless Entry - Passive, and Keyless Start
April 5, 2026: LEMON Manuals is launched! Read the announcement.

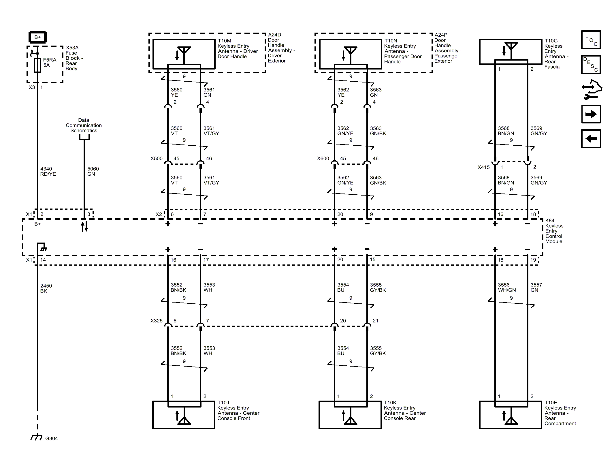
Keyless Entry - Passive, and Keyless Start

WARNING: This page is about a different car, the 2015 Cadillac CTS. However, it is still accessible from the selected car via links, so may be relevant.
Fig 1: Keyless Entry - Passive, and Keyless Start
GM3705776Courtesy of GENERAL MOTORS COMPANY