LEMON Manuals: Even more car manuals for everyone: 1960-2025
Home >> Chrysler >> 2005 >> Crossfire Base, 2D Convertible >> Repair and Diagnosis (Single Page) >> Accessories & Equipment >> Anti-Theft Systems >> Vehicle Theft Security System - Electrical Diagnostics >> Vehicle Theft Security - Electrical Diagnostics >> DTC Troubleshooting >> Siren Signal Output Circuit >> Notes
April 5, 2026: LEMON Manuals is launched! Read the announcement.

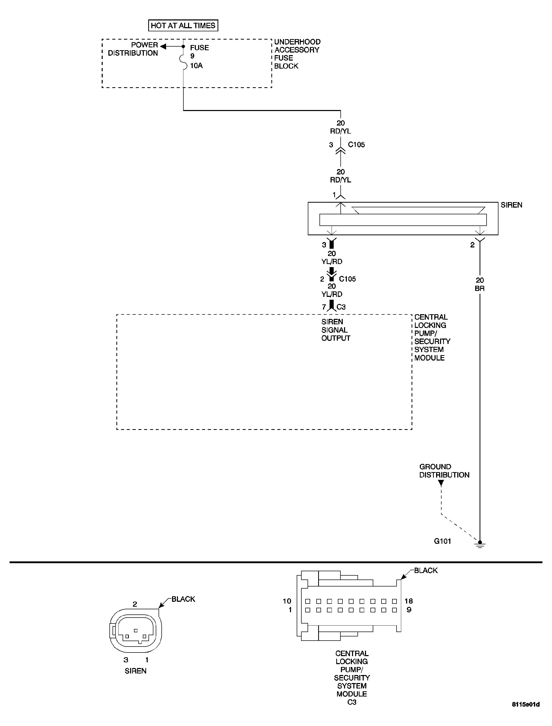
Siren Signal Output Circuit: Notes

Fig 1: Siren Signal Output Circuit Schematic
GC0035747Courtesy of DAIMLERCHRYSLER CORP.