LEMON Manuals: Even more car manuals for everyone: 1960-2025
Home >> Chrysler >> 2005 >> Crossfire Base, 2D Convertible >> Repair and Diagnosis (Single Page) >> Body & Frame >> Windows >> Interior & Exterior - Electrical Diagnostics >> Convertible Top >> DTC Troubleshooting >> DTC 9078: No Communication With Central Locking Pump/Security System Module (Cpl/SSM) >> Notes
April 5, 2026: LEMON Manuals is launched! Read the announcement.

DTC 9078: No Communication With Central Locking Pump/Security System Module (Cpl/SSM): Notes

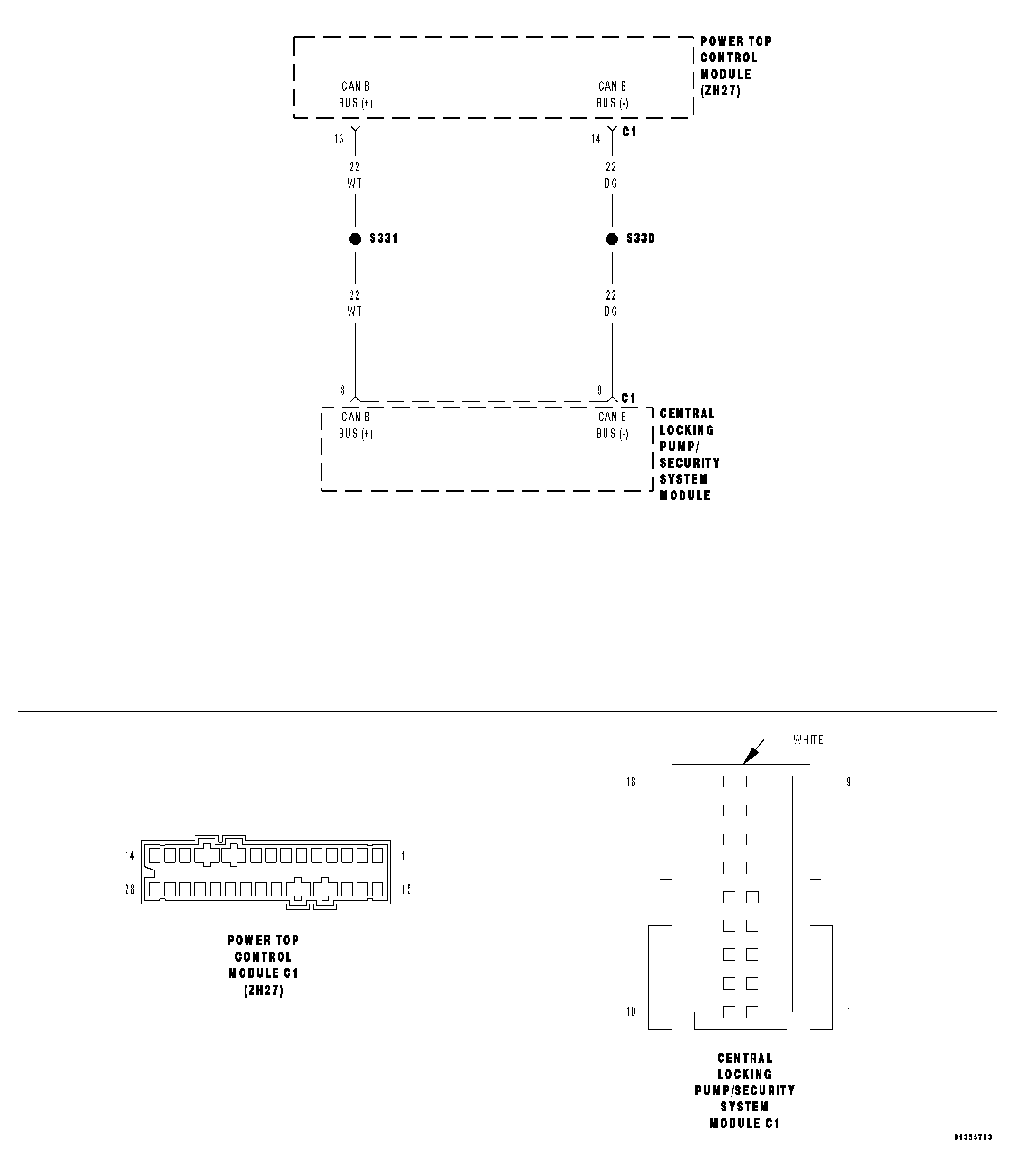
Fig 1: Central Locking Pump/Security System Module Communication Circuit Schematic
GC0033030Courtesy of DAIMLERCHRYSLER CORP.
  1. When Monitored: Continuous with the ignition on. 
  2. Set Condition: CAN Bus communication failure between the Central Locking Pump/Security System Module and the Power Top Control Module (PTCM). 
Possible Causes 
OPEN CAN B BUS (+) CIRCUIT
OPEN CAN B BUS (-) CIRCUIT
POWER TOP CONTROL MODULE

Always perform the Pre-Diagnostic Troubleshooting procedure before proceeding.