LEMON Manuals: Even more car manuals for everyone: 1960-2025
Home >> Chrysler >> 2005 >> Crossfire Base, 2D Convertible >> Repair and Diagnosis (Single Page) >> Engine Performance >> System >> DTCS P0600 To P2008 >> Diagnosis And Testing >> (P0600) Lost Comm With Electric Gear Shift Module (SLA) >> Notes
April 5, 2026: LEMON Manuals is launched! Read the announcement.

(P0600) Lost Comm With Electric Gear Shift Module (SLA): Notes

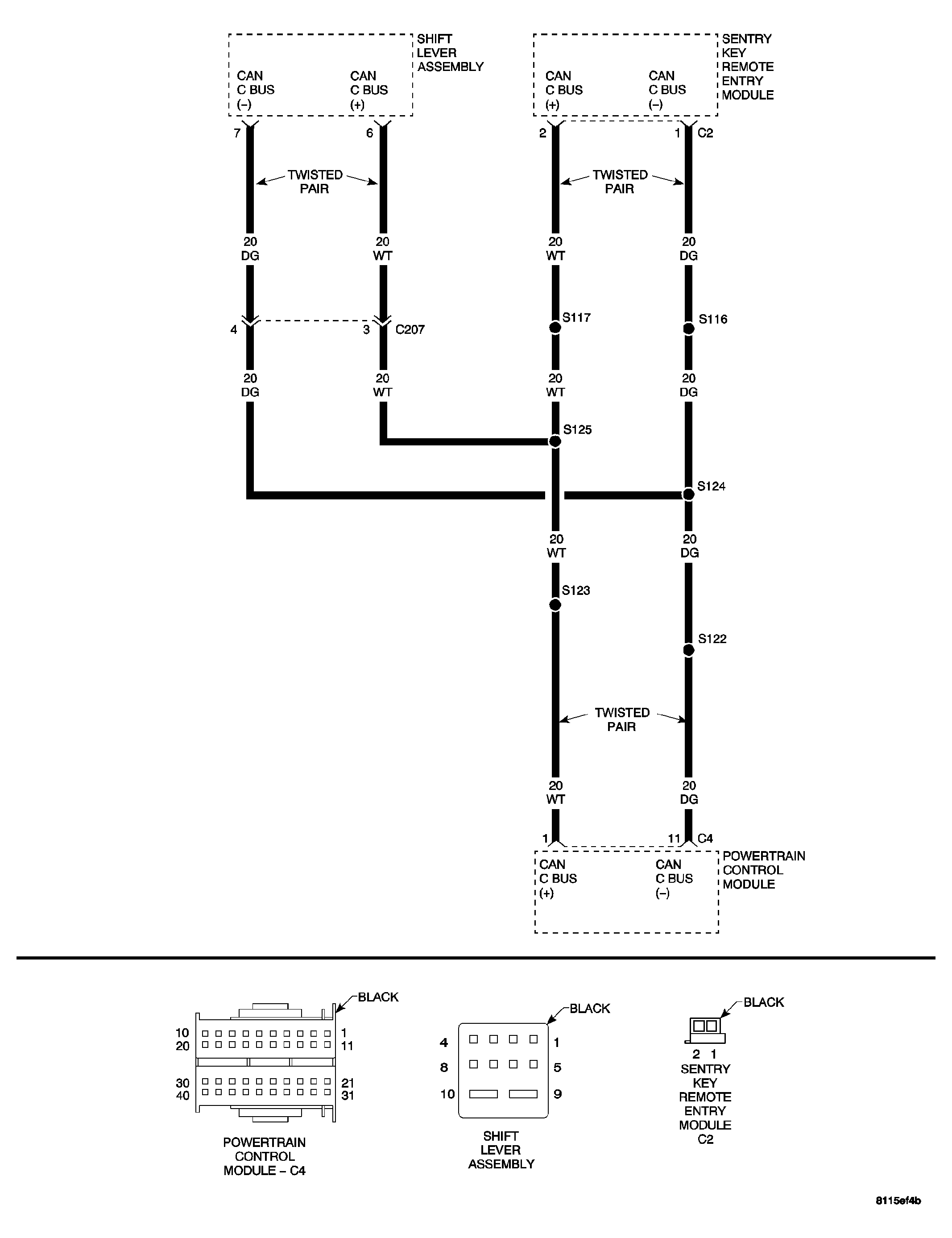
Fig 1: Shift Lever Assembly Communication Circuit Schematic
GC0034351Courtesy of DAIMLERCHRYSLER CORP.