LEMON Manuals: Even more car manuals for everyone: 1960-2025
Home >> GMC >> 2016 >> Terrain SL, Gas >> Repair and Diagnosis >> External Pages >> Different car >> Section 82 (Data Communication System) >> Schematic Wiring Diagrams >> Body Control System Wiring Schematics >> Module Power, Grounds, and Subsystem References (1 of 4)
April 5, 2026: LEMON Manuals is launched! Read the announcement.

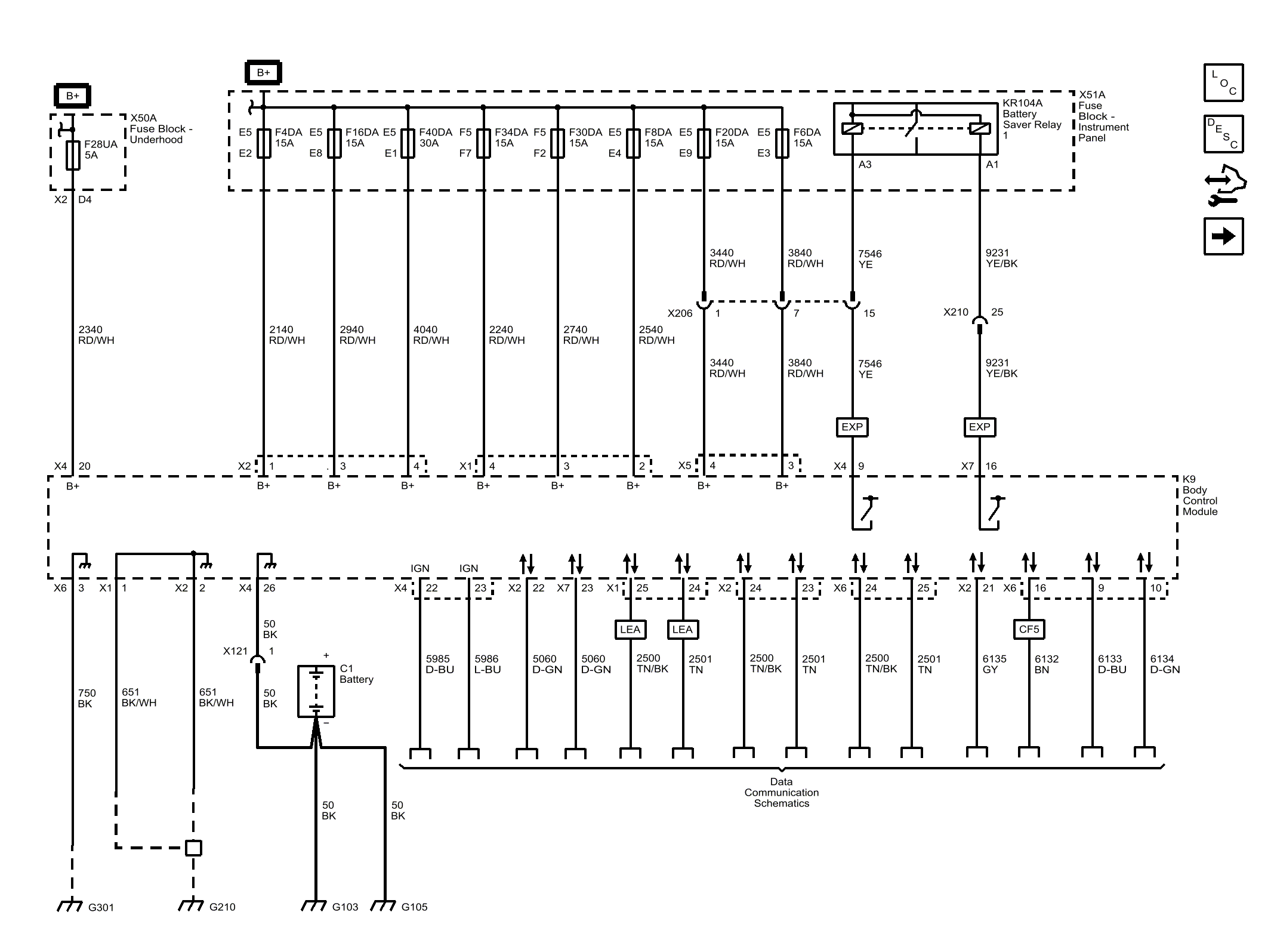
Module Power, Grounds, and Subsystem References (1 of 4)

WARNING: This page is about a different car, the 2015 GMC Terrain and 2015 Chevrolet Equinox. However, it is still accessible from the selected car via links, so may be relevant.
Fig 1: Module Power, Grounds, and Subsystem References (1 of 4)
GM3804496Courtesy of GENERAL MOTORS COMPANY