LEMON Manuals: Even more car manuals for everyone: 1960-2025
Home >> GMC >> 2016 >> Yukon Denali, 4WD >> Repair and Diagnosis >> External Pages >> Different car >> Section 91 (Object Detection System And Pedestrian Protection System) >> Schematic Wiring Diagrams >> Object Detection Wiring Schematics >> 360 Degree Vision - Power, Ground, and Serial Data (UVH)
April 5, 2026: LEMON Manuals is launched! Read the announcement.

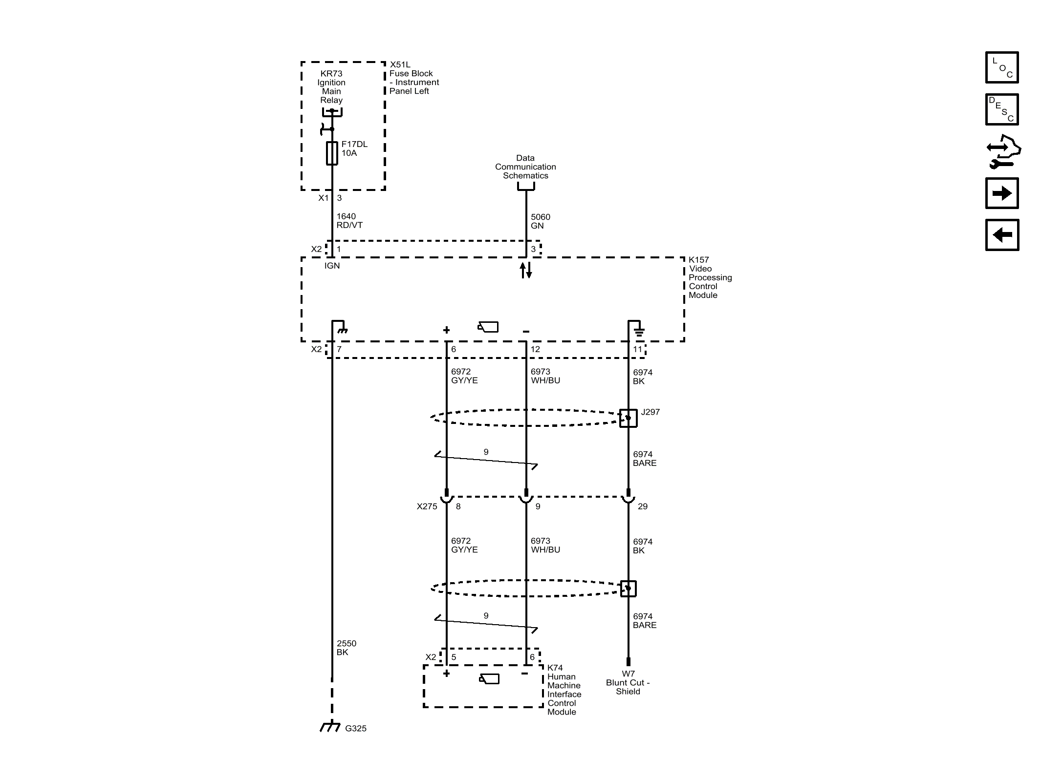
360 Degree Vision - Power, Ground, and Serial Data (UVH)

WARNING: This page does not describe the selected car, but rather 6 other vehicles, including the 2015 GMC Yukon XL, 2015 GMC Yukon, 2015 Chevrolet Tahoe, 2015 Chevrolet Suburban, and 2015 Cadillac Escalade ESV. However, it is still accessible from the selected car via links, so may be relevant.
Fig 1: 360 Degree Vision - Power, Ground, and Serial Data (UVH)
GM3640326Courtesy of GENERAL MOTORS COMPANY