LEMON Manuals: Even more car manuals for everyone: 1960-2025
Home >> GMC >> 2017 >> Terrain SL, Gas >> Repair and Diagnosis (Single Page) >> Engine Performance >> System >> Data Communication System >> Schematic Wiring Diagrams >> Body Control System Wiring Schematics >> Module Power, Grounds, and Subsystem References (1 of 4)
April 5, 2026: LEMON Manuals is launched! Read the announcement.

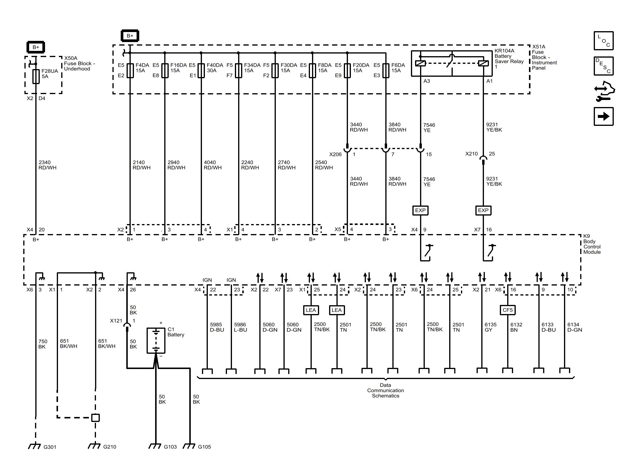
Module Power, Grounds, and Subsystem References (1 of 4)

Fig 1: Module Power, Grounds, and Subsystem References (1 of 4)
GM4404260Courtesy of GENERAL MOTORS COMPANY