LEMON Manuals: Even more car manuals for everyone: 1960-2025
Home >> GMC >> 2019 >> Terrain SL >> Repair and Diagnosis >> External Pages >> Different car >> Section 211 (Driver Assistance Systems) >> Schematic Wiring Diagrams >> Driver Assistance Systems Wiring Schematics >> Collision Avoidance - Module Power, Ground, and Serial Data (UGN)
April 5, 2026: LEMON Manuals is launched! Read the announcement.

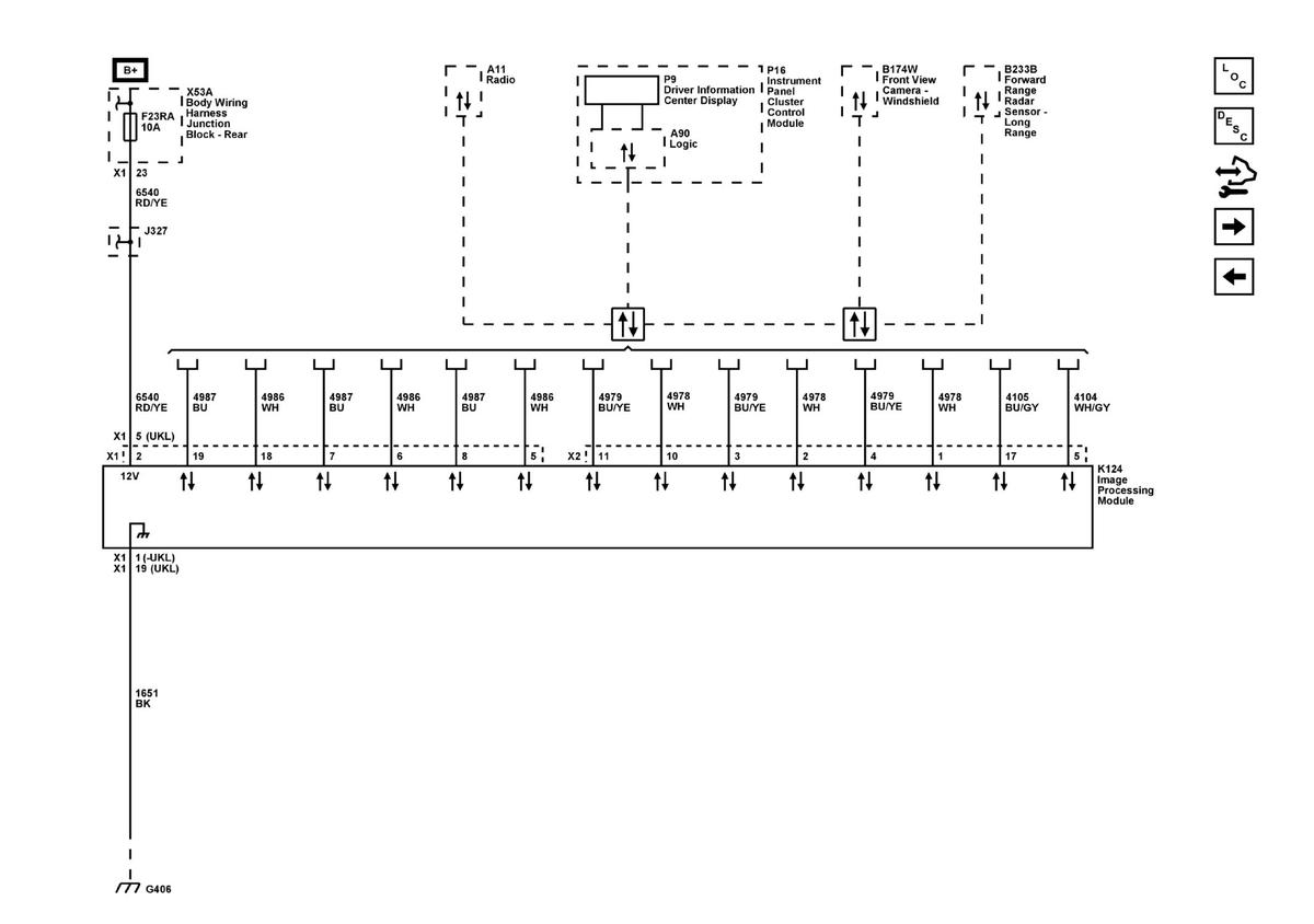
Collision Avoidance - Module Power, Ground, and Serial Data (UGN)

WARNING: This page is about a different car, the 2021 Cadillac CT4. However, it is still accessible from the selected car via links, so may be relevant.
GM5522734Courtesy of GENERAL MOTORS COMPANY