LEMON Manuals: Even more car manuals for everyone: 1960-2025
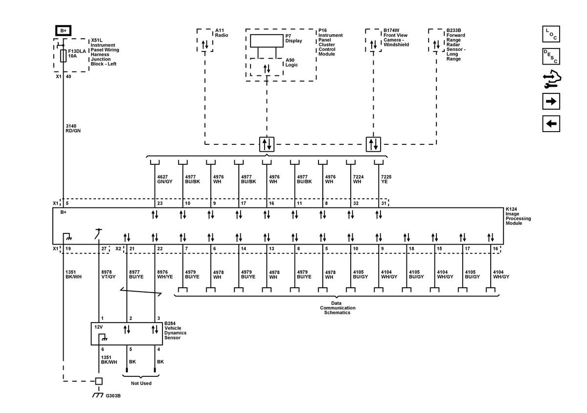
Home >> GMC >> 2022 >> Hummer EV >> Repair and Diagnosis (Single Page) >> Accessories & Equipment >> Drivers Assistance Systems - ADAS >> Driver Assistance Systems - Schematic Wiring Diagrams >> Schematic Wiring Diagrams >> Driver Assistance Systems Wiring Schematics >> Collision Mitigation - Image Processing Module and Vehicle Dynamic Sensor
April 5, 2026: LEMON Manuals is launched! Read the announcement.

Collision Mitigation - Image Processing Module and Vehicle Dynamic Sensor

GM5866208