LEMON Manuals: Even more car manuals for everyone: 1960-2025
Home >> Honda >> 2021 >> Pilot EX, AWD >> Repair and Diagnosis >> Transmission >> Automatic Trans >> Automatic Transaxle - Advanced Diagnostics >> Advanced Diagnostics >> DTC P2711
April 5, 2026: LEMON Manuals is launched! Read the announcement.

DTC P2711

DTC P2711:  Unexpected Mechanical Gear Disengagement

General Description 

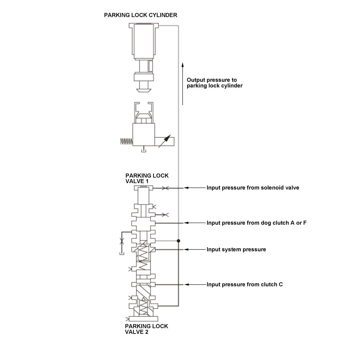
GHH305147Courtesy of HONDA, U.S.A., INC.

The purpose of the diagnostic is to detect a stuck position of one of the two parking lock valves in the hydraulic control unit. Parking lock valve 1 is actuated by the solenoid valve, and parking lock valve 2 is actuated by the pressure regulator of clutch C. The two parking lock valves provide or cut the hydraulic supply to the parking lock cylinder. The parking lock can only be disengaged if both parking lock valves are supplying hydraulic pressure. When the parking lock is engaged during engine off and one of the parking lock valves is stuck in the supply position, it could cause an unnecessary disengagement of the parking lock. If the park position sensor output shows that the parking lock is in disengagement position despite the shift position is in P position/mode, the transmission control module (TCM) detects a malfunction and stores a DTC.

Monitor Execution, Sequence, Duration, DTC Type 

Execution Continuous
Sequence None
Duration 1 second or more
DTC Type One drive cycle, MIL off, A/T gear position indicator blinks

Enable Conditions 

Condition Minimum Maximum
Elapsed time after starting the engine - 1 second
Other Engine speed signal sent by the F-CAN line must be normal
Leave at least 10 seconds after engine is stopped (enable condition before engine is started)
Shift position in P position/mode when vehicle is in ON mode (enable condition before engine is started)
Brake pedal pressed

Malfunction Threshold 

The park position sensor output is not in the condition of parking for at least 1 second while the shift position is in P position/mode.

Possible Cause 

NOTE:

The causes shown may not be a complete list of all potential problems, and it is possible that there may be other causes.

Confirmation Procedure 

Operating Condition 

With the HDS 

None.

Diagnosis Details 

Conditions for setting the DTC 

When a malfunction is detected, the A/T gear position indicator blinks and a Pending DTC, a Confirmed DTC, and the freeze data are stored in the TCM memory. The MIL does not come on.

Conditions for clearing the DTC 

The A/T gear position indicator comes off by turning the vehicle to the OFF (LOCK) mode. The Pending DTC, the Confirmed DTC, and the freeze data can be cleared with the scan tool Clear command.