LEMON Manuals: Even more car manuals for everyone: 1960-2025
Home >> Hummer >> 2008 >> H3 Base, Standard >> Repair and Diagnosis >> External Pages >> Different car >> Section 314 (Data Communication System) >> Schematic and Routing Diagrams >> Body Control System Schematics
April 5, 2026: LEMON Manuals is launched! Read the announcement.

Body Control System Schematics

WARNING: This page is about a different car, the 2009 GMC Canyon and 2009 Chevrolet Colorado. However, it is still accessible from the selected car via links, so may be relevant.
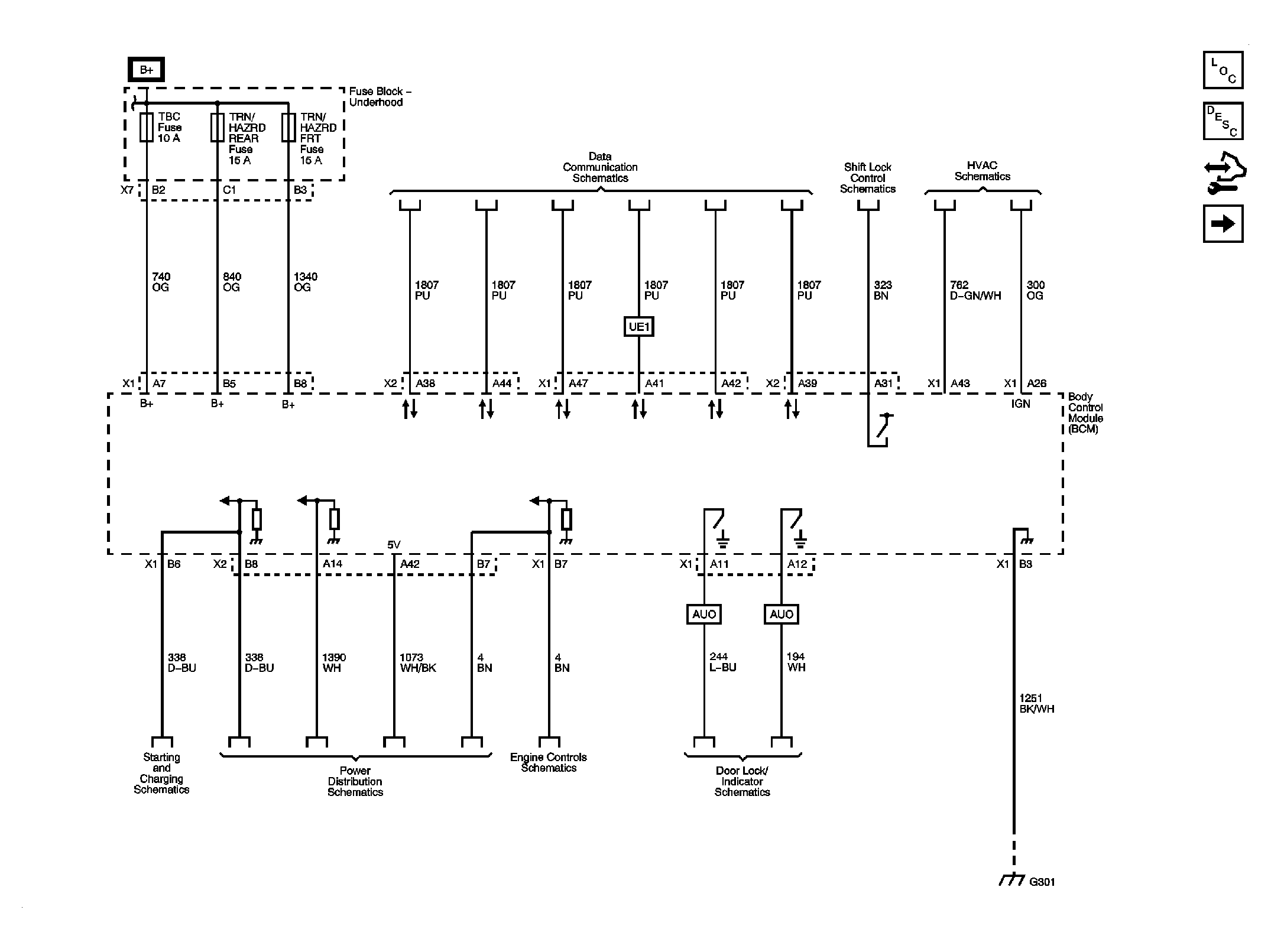
Fig 1: Power, Ground, Serial Data, and Controlled/Monitored Subsystem References
GM2082791Courtesy of GENERAL MOTORS CORP.
Fig 2: Theft, Horn, Mirror, Power Moding, Brake and Wiper/Washer System References
GM2082794Courtesy of GENERAL MOTORS CORP.
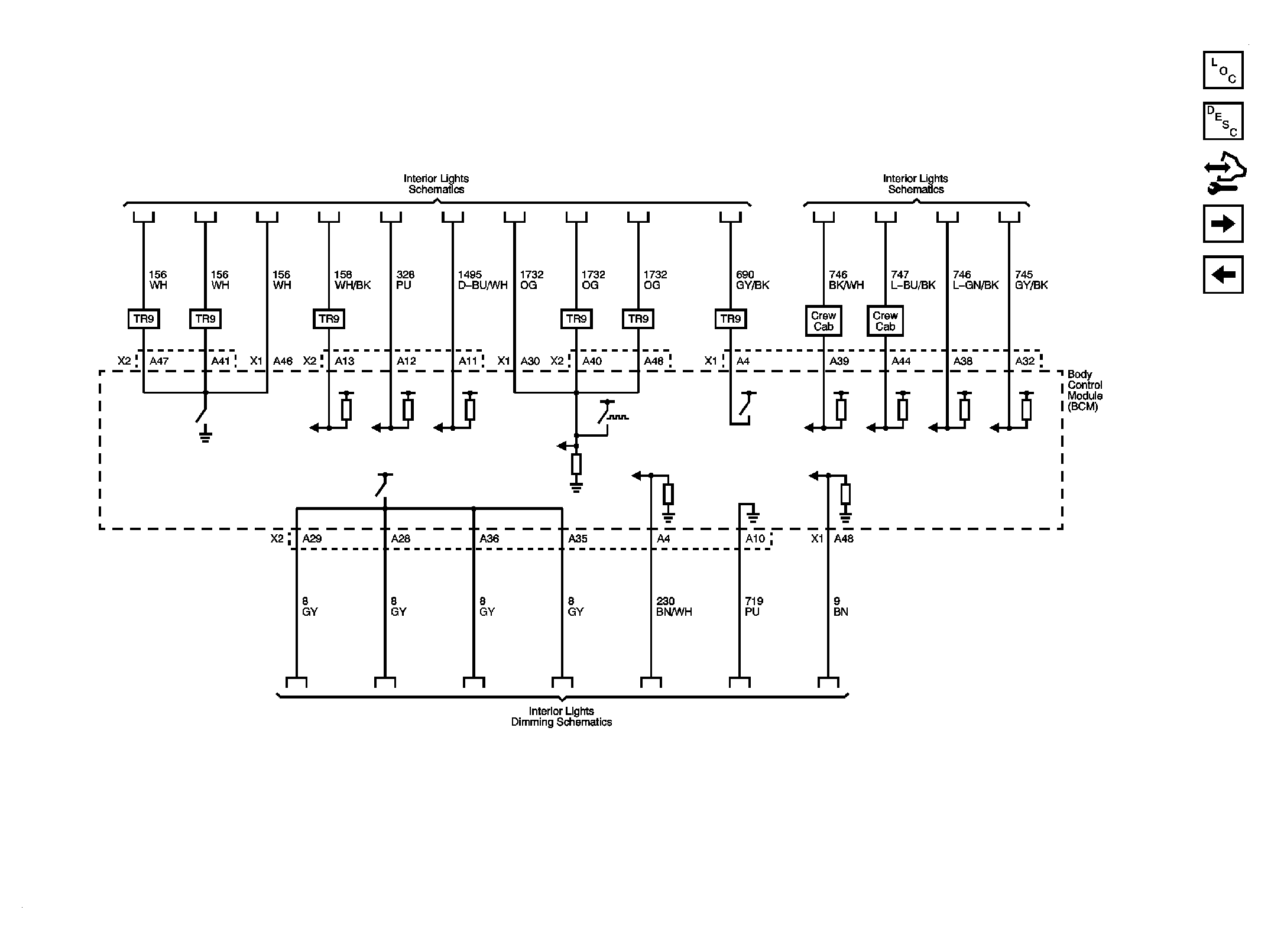
Fig 3: Interior Lights and Interior Lights Dimming References
GM2082796Courtesy of GENERAL MOTORS CORP.
Fig 4: Exterior Lighting References
GM2082800Courtesy of GENERAL MOTORS CORP.