LEMON Manuals: Even more car manuals for everyone: 1960-2025
Home >> Lexus >> 2009 >> IS F >> Repair and Diagnosis >> External Pages >> Different car >> Section 108 (OEM Junction Block, Ecu & Fuse/Relay Locations) >> Relay Block Identification >> Engine Room Relay Block No.2 AssemblyAnd Engine Room Junction Block No.2 Assembly
April 5, 2026: LEMON Manuals is launched! Read the announcement.

Engine Room Relay Block No.2 AssemblyAnd Engine Room Junction Block No.2 Assembly

WARNING: This page is about a different car, the 2008 Lexus IS F. However, it is still accessible from the selected car via links, so may be relevant.

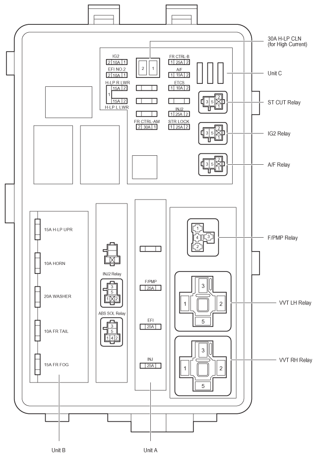
Left Engine Compartment  (See Figure)

Fig 1: Engine Room R/B And J/B No.2 Assembly Fuse/Relay Locations (1 Of 2)
G07592124Courtesy of © TOYOTA, LICENSE AGREEMENT TMS1002
ENGINE ROOM R/B AND J/B NO.2 RELAY IDENTIFICATION

RELAY DESCRIPTION
ST CUT Relay
IG2 Relay
A/F Relay
F/PMP Relay
VVT LH Relay
VVT RH Relay
ENGINE ROOM R/B AND J/B NO.2 FUSE IDENTIFICATION

Fuse System
10A EFI NO.2 Engine Control, Electronically Controlled Transmission and A/T Indicator
10A ETCS Cruise Control
Dynamic Radar Cruise Control
Engine Control, Electronically Controlled Transmission and A/T Indicator
10A FR TAIL Automatic Light Control and Light Auto Turn Off System
Headlight
Taillight
10A HORN Horn
Smart Access System with Push-Button Start and Theft Deterrent
10A IG2 Engine Control, Electronically Controlled Transmission and A/T Indicator
Ignition
15A A/F Engine Control, Electronically Controlled Transmission and A/T Indicator
15A FR FOG Front Fog Light
15A H-LP L LWR Headlight
15A H-LP R LWR Headlight
15A H-LP UPR Adaptive Front-Lighting System
Headlight
20A INJ Engine Control, Electronically Controlled Transmission and A/T Indicator
20A WASHER Front Wiper and Washer
Headlight Cleaner
25A EFI Cruise Control
Dynamic Radar Cruise Control
Engine Control, Electronically Controlled Transmission and A/T Indicator
25A F/PMP Engine Control, Electronically Controlled Transmission and A/T Indicator
25A INJ2 Engine Control, Electronically Controlled Transmission and A/T Indicator
25A STR LOCK Smart Access System with Push-Button Start and Theft Deterrent
30A H-LP CLN Headlight Cleaner
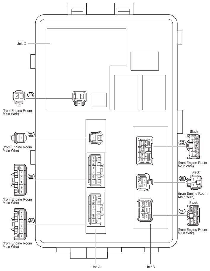
Fig 2: Engine Room R/B And J/B No.2 Assembly Connector Locations (2 Of 2)
G07592125Courtesy of © TOYOTA, LICENSE AGREEMENT TMS1002