LEMON Manuals: Even more car manuals for everyone: 1960-2025
Home >> Lexus >> 2019 >> UX 250h Base >> Repair and Diagnosis (Single Page) >> Electrical >> Fuses & Circuit Breakers >> OEM Junction Block, Ecu & Fuse/Relay Locations >> Relay Block Identification >> Engine Room Relay Block Assembly And Engine Room Junction Block Assembly No. 1 (M20A-FXS) - Front Fender Apron LH >> Notes
April 5, 2026: LEMON Manuals is launched! Read the announcement.

Engine Room Relay Block Assembly And Engine Room Junction Block Assembly No. 1 (M20A-FXS) - Front Fender Apron LH: Notes

For additional information, refer to Figure.

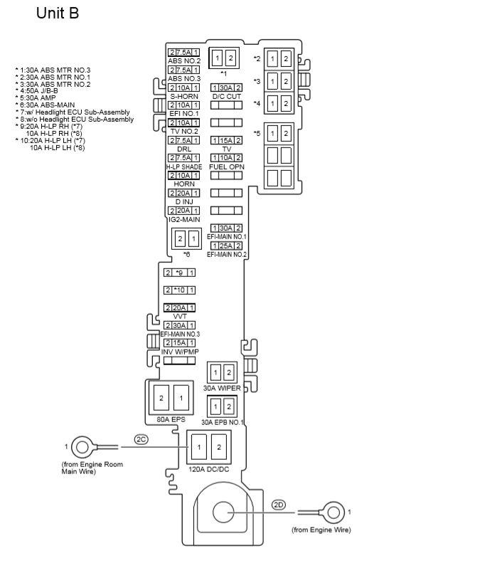
Fig 1: Engine Room R/B And J/B Assembly No. 1 (M20A-FXS) (1 Of 5)
G00586032Courtesy of © TOYOTA, LICENSE AGREEMENT TMS1002
Engine Room R/B And J/B No. 1 (M20-FXS) Relay Identification

RELAY DESCRIPTION
EFI-MAIN NO. 1 Relay
S-HORN
Engine Room R/B And J/B No. 1 (M20A-FXS) Fuse Identification Legend

FUSE
7.5A ABS NO. 2
7.5A ABS NO. 3
7.5A DRL
7.5A ECU-ACC NO. 2
7.5A ECU-IG2 NO. 1
7.5A EFI NO. 3
7.5A FOG FR
7.5A H-LP SHADE
10A ECU-IG1 NO. 5
10A EFI NO. 1
10A EFI NO. 2
10A EFI NO. 4
10A FUEL OPN
10A H-LP LH
10A H-LP RH
10A HORN
10A IGN
10A MIR HTR
10A S-HORN
10A STRG HTR
10A TV NO. 2
15A DEICER
15A INV W/PMP
15A TV
20A D INJ
20A H-LP LH
20A H-LP RH
20A P/OUTLET NO. 2
20A VVT
25A EFI MAIN NO. 2
30A ABS MTR NO. 1
30A ABS MTR NO. 2
30A ABS MTR NO. 3
30A ABS-MAIN
30A AMP
30A EFI-MAIN NO. 1
30A EFI-MAIN NO. 3
30A EPB NO. 1
30A FAN NO. 2
30A H-LP CLN
30A PBD
30A S/HTR-MAIN
30A WIPER
40A DEF
50A HTR
60A FAN NO. 1
80A EPS
80A J/B-AM
120A DC/DC
Fig 2: Engine Room R/B And J/B Assembly No. 1 (M20A-FXS) (2 Of 5)
G00586033Courtesy of © TOYOTA, LICENSE AGREEMENT TMS1002
Fig 3: Engine Room R/B And J/B Assembly No. 1 (M20A-FXS) (3 Of 5)
G00586034Courtesy of © TOYOTA, LICENSE AGREEMENT TMS1002
Fig 4: Engine Room R/B And J/B Assembly No. 1 (M20A-FXS) (4 Of 5)
G00586035Courtesy of © TOYOTA, LICENSE AGREEMENT TMS1002
Engine Room R/B And J/B No. 1 (M20-FXS) Relay Identification

RELAY DESCRIPTION
EFI-MAIN NO. 3 Relay
D INJ Relay
S-HORN Relay
INV W/PMP Relay
Fig 5: Engine Room R/B And J/B Assembly No. 1 (M20A-FXS) (5 Of 5)
G00586036Courtesy of © TOYOTA, LICENSE AGREEMENT TMS1002
Engine Room R/B And J/B No. 1 (M20-FXS) Relay Identification

RELAY DESCRIPTION
DEF Relay
EFI-MAIN NO. 1 Relay