LEMON Manuals: Even more car manuals for everyone: 1960-2025
Home >> Mercury >> 2009 >> Sable Base, AWD >> Repair and Diagnosis >> External Pages >> Different car >> Section 575 (Automatic Transmission External Controls) >> Description And Operation >> External Controls >> Pinpoint Tests >> Pinpoint Test A: The Shift Interlock System Does Not Release/Lock Correctly
April 5, 2026: LEMON Manuals is launched! Read the announcement.

Pinpoint Test A: The Shift Interlock System Does Not Release/Lock Correctly

WARNING: This page is about a different car, the 2006 Mercury Montego, 2006 Ford Freestyle, and 2006 Ford Five Hundred. However, it is still accessible from the selected car via links, so may be relevant.
  1. A1 TEST THE BRAKE LIGHTS 
    • Apply the brake pedal and view the brake lights.
    • Do the brake lights illuminate? 

    Yes:  GO to  A2.

    No:  REFER to EXTERIOR LIGHTING .

  2. A2 TEST FUSE C34 (30A) 
    • Check fuse: Fuse C34 (30A) Power Distribution Box.
    • Is the resistance of the fuse 5 ohms or less? 

    Yes:  GO to  A3.

    No:  REFER to STARTING SYSTEM .

  3. A3 TEST FUSE C18 (10A) 
    • Check fuse: Fuse C18 (10A) Smart Junction Box.
    • Is the resistance of the fuse 5 ohms or less? 

    Yes:  GO to  A4.

    No:  REFER to STARTING SYSTEM .

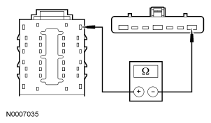
  4. A4 TEST CIRCUIT 1050 (LG/PK) FOR SHORT TO GROUND 
    • Disconnect: Ignition Switch C250.
    • Measure the resistance between ignition switch C250 pin 1, circuit 1050 (LG/PK) harness side and ground.
      Fig 1: Measuring Resistance Between Ignition Switch C250 Pin 1, Circuit 1050 (LG/PK) Harness Side & Ground
      G04657559Courtesy of FORD MOTOR CO.
    • Is the resistance greater than 10,000 ohms? 

    Yes:  GO to  A5.

    No:  REPAIR circuit 1050 (LG/PK). TEST the system for normal operation.

  5. A5 TEST CIRCUIT 1050 (LG/PK) FOR AN OPEN 
    • Disconnect: Ignition Switch C250.
    • Disconnect: Smart Junction Box (SJB) C2280b.
    • Measure the resistance between SJB C2280b pin 32, circuit 1050 (LG/PK), harness side and ignition switch C250 pin 1, harness side.
      Fig 2: Measuring Resistance Between SJB C2280b Pin 32, Circuit 1050 (LG/PK), Harness Side & Ignition Switch C250 Pin 1, Harness Side
      G04657560Courtesy of FORD MOTOR CO.
    • Is the resistance less than 5 ohms? 

    Yes:  GO to  A6.

    No:  REPAIR circuit 1050 (LG/PK). TEST the system for normal operation.

  6. A6 TEST CIRCUIT 1140e (PK) FOR BATTERY VOLTAGE 
    • Key in OFF position.
    • Disconnect: Brake Pedal Position (BPP) Switch C278.
    • Measure the voltage between BPP switch C278 pin 1, circuit 1140e (PK), harness side and ground.
      Fig 3: Measuring Voltage Between BPP Switch C278 Pin 1, Circuit 1140e (PK), Harness Side & Ground
      G04657561Courtesy of FORD MOTOR CO.
    • Is the voltage greater than 10 volts? 

    Yes:  GO to  A7.

    No:  REPAIR circuit 1140e (PK). TEST the system for normal operation.

  7. A7 TEST CIRCUIT 1140e (PK) FOR A SHORT TO GROUND 
    • Disconnect: Brake Pedal Position (BPP) Switch C278.
    • Measure the resistance between BPP switch C278 pin 2, circuit 1140e (PK), harness side and ground.
      Fig 4: Measuring Resistance Between BPP Switch C278 Pin 2, Circuit 1140e (PK), Harness Side & Ground
      G04657562Courtesy of FORD MOTOR CO.
    • Is the resistance greater than 10,000 ohms? 

    Yes:  GO to  A8.

    No:  REPAIR circuit 1140e (PK). TEST the system for normal operation.

  8. A8 TEST CIRCUIT 1140e (PK) FOR AN OPEN 
    • Disconnect: Smart Junction Box (SJB) C265.
    • Measure the resistance between SJB C2280a pin 27 and BPP switch C278 pin 2, circuit 1140e (PK), harness side.
      Fig 5: Measuring Resistance Between SJB C2280a Pin 27 & BPP Switch C278 Pin 2, Circuit 1140e (PK), Harness Side
      G04657563Courtesy of FORD MOTOR CO.
    • Is the resistance less than 5 ohms? 

    Yes:  GO to  A9.

    No:  REPAIR circuit 1140e (PK). TEST the system for normal operation.

  9. A9 TEST THE BRAKE PEDAL POSITION (BPP) SWITCH 
    • Measure the resistance between BPP switch C278 pin 1 and pin 2, while OPEN (off) and CLOSED (on).
      Fig 6: Measuring Resistance Between BPP Switch C278 Pin 1 & Pin 2, While OPEN (Off) & CLOSED (On)
      G04657564Courtesy of FORD MOTOR CO.
    • Is the resistance of the switch greater than 10,000 ohms while OFF and 5 ohms or less while ON? 

    Yes:  GO to  A10.

    No:  INSTALL a new BPP switch. TEST the system for normal operation.

  10. A10 TEST CIRCUIT 810 (RD/LG) FOR A SHORT TO GROUND 
    • Disconnect: Floor Shifter Harness Assembly C3245.
    • Measure the resistance between floor shifter harness assembly C3245 pin 1, circuit 810 (RD/LG), harness side and ground.
      Fig 7: Measuring Resistance Between Floor Shifter Harness Assembly C3245 Pin 1, Circuit 810 (RD/LG), Harness Side & Ground
      G04657565Courtesy of FORD MOTOR CO.
    • Is the resistance greater than 10,000 ohms? 

    Yes:  GO to  A11.

    No:  REPAIR circuit 810 (RD/LG). TEST the system for normal operation.

  11. A11 TEST CIRCUIT 810 (RD/LG) FOR AN OPEN 
    • Measure the resistance between BPP switch C278 pin 1, circuit 810 (RD/LG), harness side and floor shifter harness assembly C3245 pin 1, circuit 810 (RD/LG), harness side.
      Fig 8: Measuring Resistance Between BPP Switch C278 Pin 1, Circuit 810 (RD/LG), Harness Side & Floor Shifter Harness Assembly C3245 Pin 1, Circuit 810 (RD/LG), Harness Side
      G04657566Courtesy of FORD MOTOR CO.
    • Is the resistance less than 5 ohms? 

    Yes:  GO to  A12.

    No:  REPAIR circuit 810. TEST the system for normal operation.

  12. A12 TEST CIRCUIT 810 (RD/LG) FOR BATTERY VOLTAGE 
    • Connect: Brake Pedal Position (BPP) Switch C278.
    • Disconnect: Floor Shifter Harness Assembly C3245.
    • Depress the brake pedal.
    • Measure the voltage on floor shifter harness assembly C3245 pin 1, circuit 810 (RD/LG), harness side and ground.
      Fig 9: Measuring Voltage On Floor Shifter Harness Assembly C3245 Pin 1, Circuit 810 (RD/LG), Harness Side & Ground
      G04657567Courtesy of FORD MOTOR CO.
    • Is the voltage greater than 10 volts? 

    Yes:  REPAIR circuit 810 (RD/LG). TEST the system for normal operation.

    No:  GO to  A13.

  13. A13 TEST CIRCUIT 409 (TN/BK) FOR A SHORT TO GROUND 
    • Disconnect: Floor Shifter Harness Assembly C3245.
    • Measure the resistance between floor shifter harness assembly C3245 pin 8, circuit 409 (TN/BK), harness side and ground.
      Fig 10: Measure Resistance Between Floor Shifter Harness Assembly C3245 Pin 8, Circuit 409 (TN/BK), Harness Side & Ground
      G04657568Courtesy of FORD MOTOR CO.
    • Is the resistance less than 10,000 ohms? 

    Yes:  REPAIR circuit 409 (TN/BK). TEST the system for normal operation.

    No:  GO to  A14.

  14. A14 TEST CIRCUIT 409 (TN/BK) FOR AN OPEN 
    • Disconnect: Ignition Switch C250.
    • Disconnect: Floor Shifter Harness Assembly C3245.
    • Measure the resistance between floor shifter harness assembly C3245 pin 8, and ignition switch C250 pin 3, circuit 409 (TN/BK), harness side.
      Fig 11: Measuring Resistance Between Floor Shifter Harness Assembly C3245 Pin 8 & Ignition Switch C250 Pin 3, Circuit 409 (TN/BK), Harness Side
      G04657569Courtesy of FORD MOTOR CO.
    • Is the resistance less than 5 ohms? 

    Yes:  REPAIR circuit 409 (TN/BK). TEST the system for normal operation.

    No:  GO to  A15.

  15. A15 TEST CIRCUIT 1205NZ (BK) FOR A SHORT TO GROUND 

Yes:  INSTALL a new selector lever, REFER to SELECTOR LEVER . TEST the system for normal operation.

No:  REPAIR circuit 1205NZ (BK). TEST the system for normal operation.