LEMON Manuals: Even more car manuals for everyone: 1960-2025
Home >> Mitsubishi >> 2003 >> Eclipse GT, Automatic >> Repair and Diagnosis >> Brakes >> Traction Control >> Traction Control System (TCL) >> Traction Control System (TCL) Diagnosis >> Symptom Procedures >> INSPECTION PROCEDURE 4: The TCL Indicator Light Remains Illuminated after the Engine is Started. >> Notes
April 5, 2026: LEMON Manuals is launched! Read the announcement.

INSPECTION PROCEDURE 4: The TCL Indicator Light Remains Illuminated after the Engine is Started.: Notes

NOTE: This diagnosis procedure is limited to cases where communication with the scan tool is possible (ABS-ECU power supply is normal) and no diagnostic trouble code outputs.
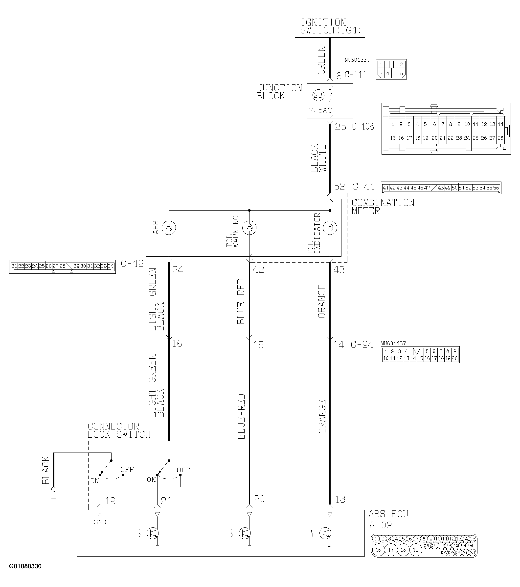
Fig 1: Circuit Diagram - TCL Warning Light And TCL Indicator Light (1 Of 2) - Inspection Procedure 4
G01880330Courtesy of MITSUBISHI MOTOR SALES OF AMERICA.
NOTE: CONNECTOR LOCK SWITCH.
  1. ON: The ABS-ECU connector A-02 is connected.
  2. OFF: The ABS-ECU connector A-02 is disconnected.
Fig 2: Circuit Diagram - TCL Warning Light And TCL Indicator Light (2 Of 2) - Inspection Procedure 4
G01880331Courtesy of MITSUBISHI MOTOR SALES OF AMERICA.