LEMON Manuals: Even more car manuals for everyone: 1960-2025
Home >> Mitsubishi >> 2004 >> Lancer Evolution >> Repair and Diagnosis >> External Pages >> Different variant/trim >> Section 53 (Combination Meter Assembly - Except Evolution & SPORTBACK) >> Combination Meter Assembly >> Symptom Procedures >> Inspection Procedure 2: Speedometer Does Not Work. < M/T > >> Notes
April 5, 2026: LEMON Manuals is launched! Read the announcement.

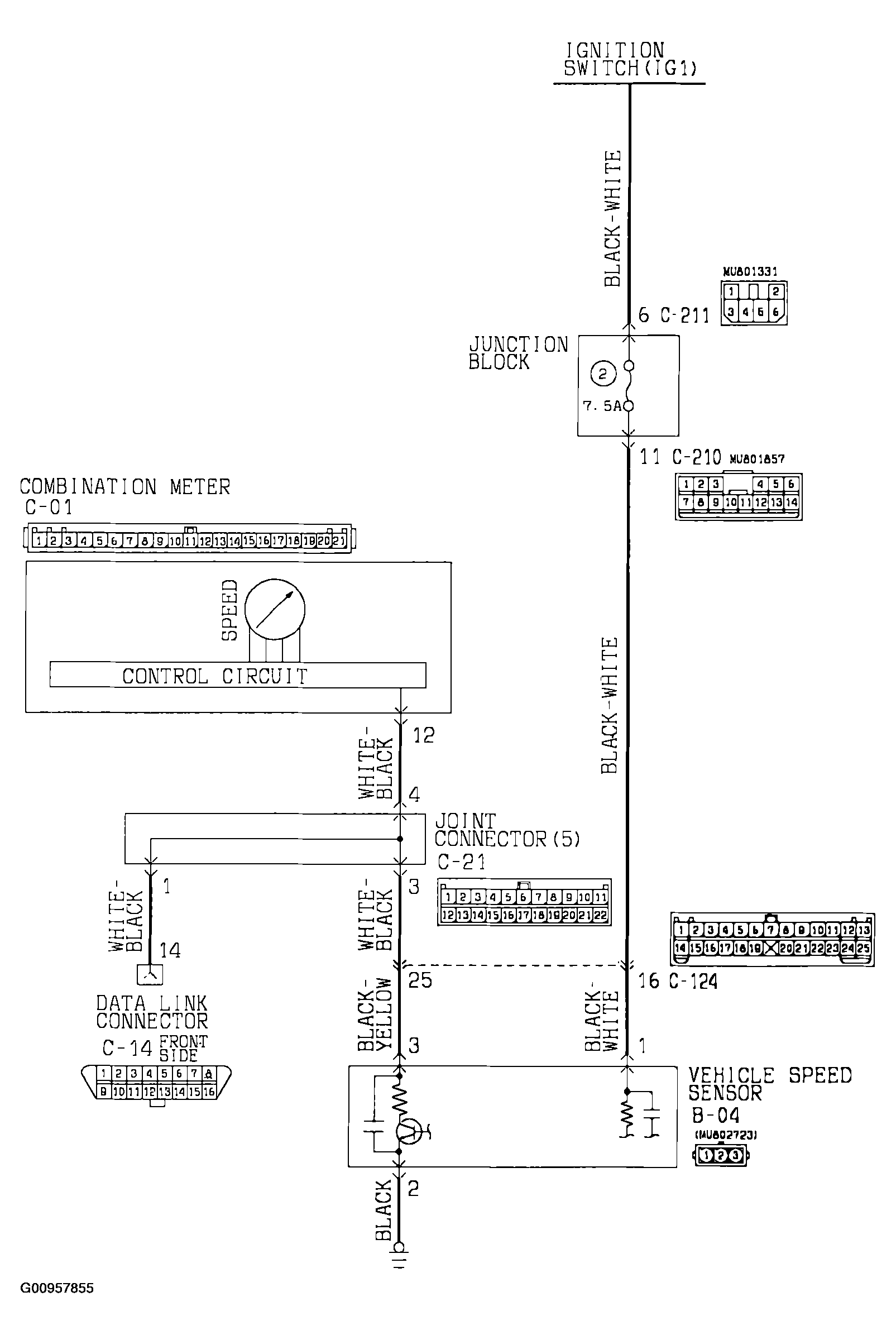
Inspection Procedure 2: Speedometer Does Not Work. < M/T >: Notes

WARNING: This page is about a different variant/trim than selected.
Fig 1: View Of Speedometer Circuit - M/T
G00957855Courtesy of MITSUBISHI MOTOR SALES OF AMERICA.
Fig 2: Identifying Connectors
G00957856Courtesy of MITSUBISHI MOTOR SALES OF AMERICA.