LEMON Manuals: Even more car manuals for everyone: 1960-2025
Home >> Pontiac >> 2008 >> Grand Prix Base >> Repair and Diagnosis >> External Pages >> Different car >> Section 329 (Cellular System, Entertainment System, And Navigation System) >> Schematic and Routing Diagrams >> Radio/Navigation System Schematics
April 5, 2026: LEMON Manuals is launched! Read the announcement.

Radio/Navigation System Schematics

WARNING: This page is about a different car, the 2008 Pontiac Vibe. However, it is still accessible from the selected car via links, so may be relevant.
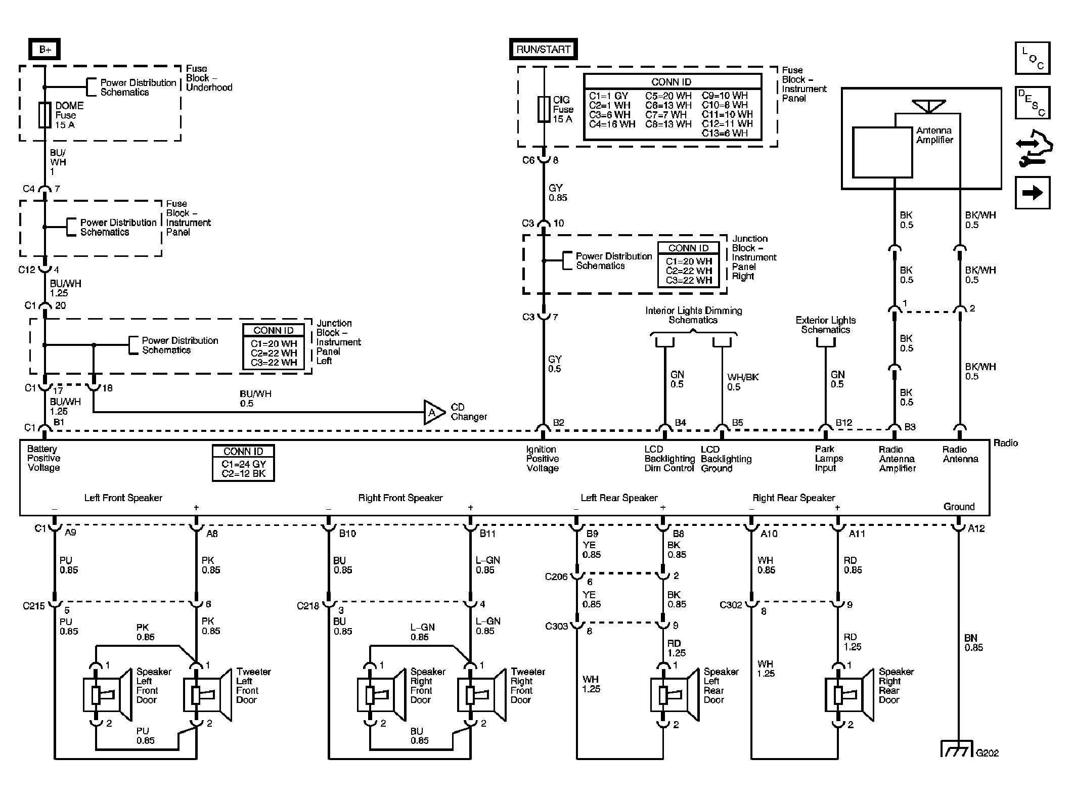
Fig 1: Radio UC6, US8, Speakers UW4
GM1725945Courtesy of GENERAL MOTORS CORP.
Fig 2: Radio U1P, Speakers UW4
GM1426723Courtesy of GENERAL MOTORS CORP.
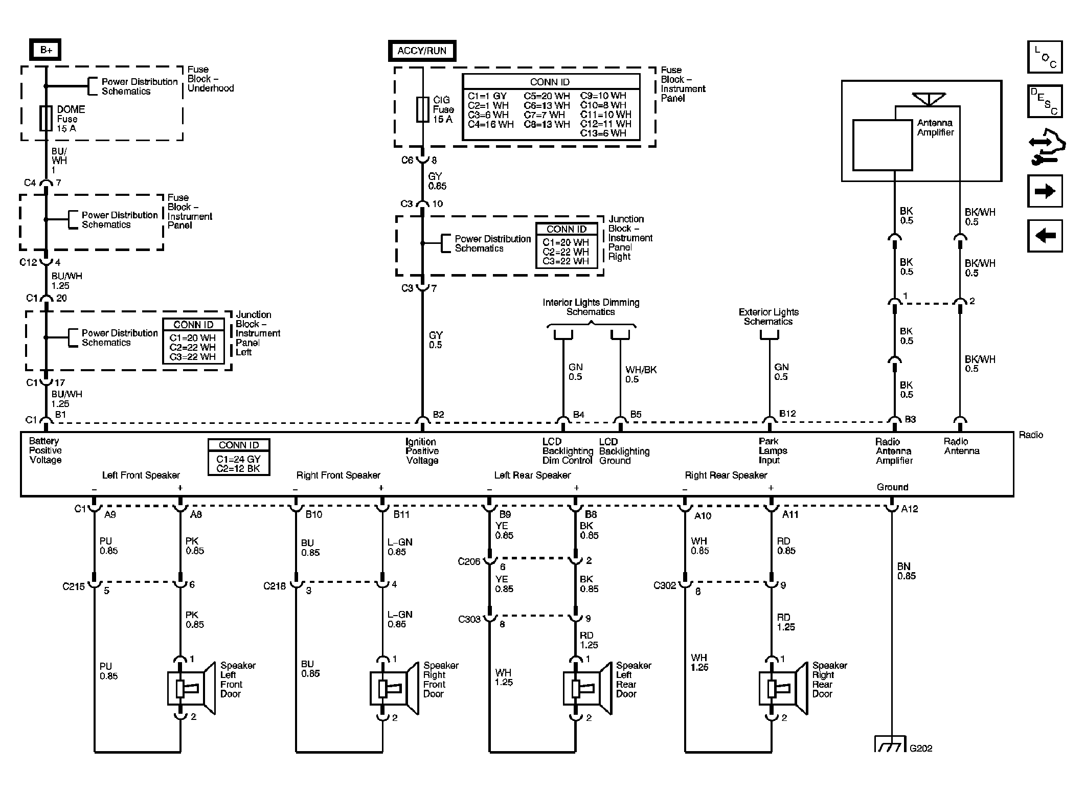
Fig 3: Radio Monsoon U1P, Speakers U65
GM1426725Courtesy of GENERAL MOTORS CORP.
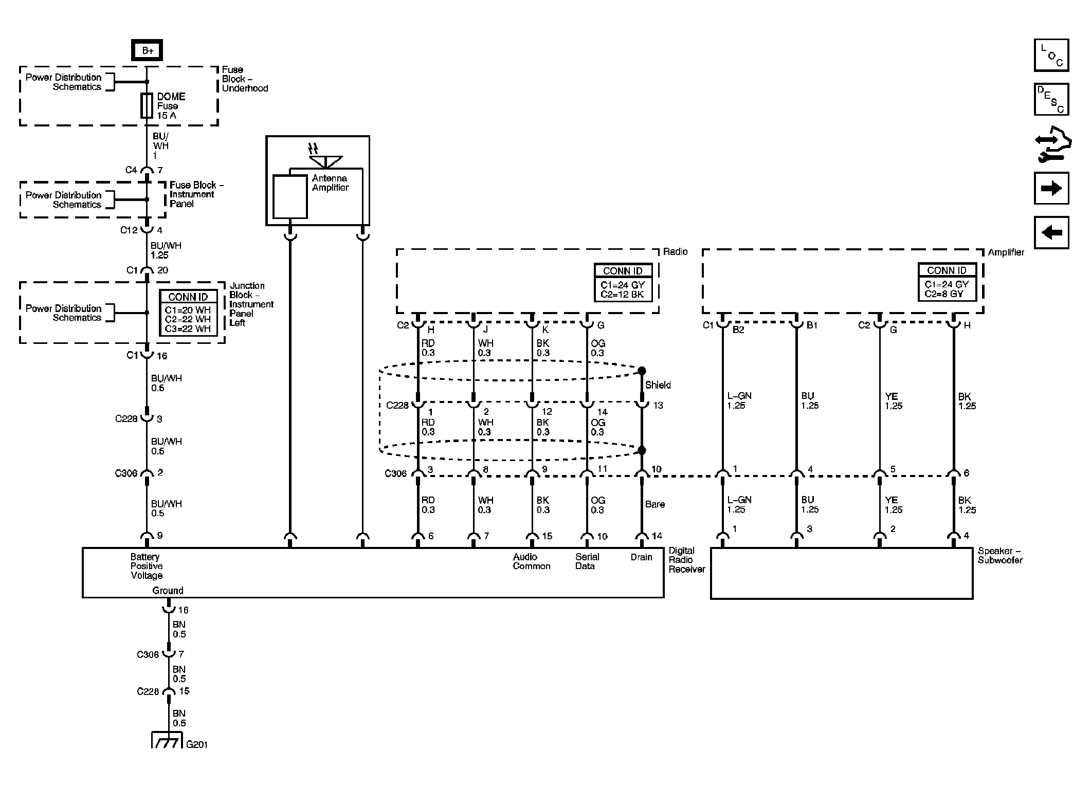
Fig 4: Digital Radio Receiver and Subwoofer U1P, U2K, U65
GM1426726Courtesy of GENERAL MOTORS CORP.
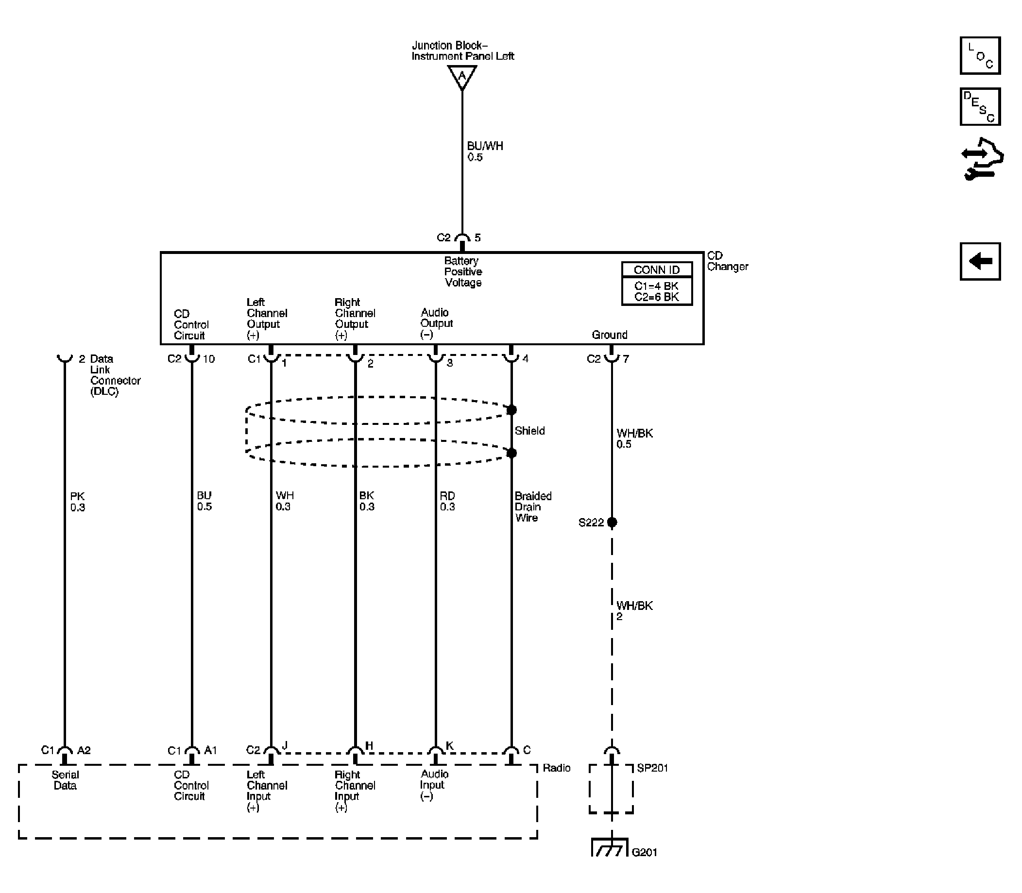
Fig 5: Radio and Remote CD Changer U1A, UC6
GM1725951Courtesy of GENERAL MOTORS CORP.