LEMON Manuals: Even more car manuals for everyone: 1960-2025
Home >> Suzuki >> 2009 >> Equator RMZ-4 >> Repair and Diagnosis (Single Page) >> Steering >> Steering Column >> Steering Wheel And Column >> Repair Inspection >> Steering Column: Disassembly and Assembly >> Inspection After Assembly
April 5, 2026: LEMON Manuals is launched! Read the announcement.

Inspection After Assembly

When the steering wheel does not turn smoothly, check as follows:

  1. Check the steering column for the following:
    • Damage to the column tube or bearings
    • Wear around the seal edges
    • Corrosion or pitting around the seal sliding area

      Replace the steering column as an assembly, if necessary.

      CAUTION:
      • Do not exert any axial load or impact to the steering column.
      • Replace the column if it is depleted of grease, worn, damaged, or if any scratches or coating separation is present on the shaft seal area.
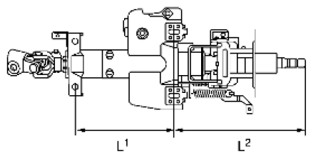
  2. If the vehicle has been in a collision, or if noises are heard coming from the steering column, check column length "L1" and "L2" as shown. If out of specification, replace the steering column as an assembly.
    Fig 1: Identifying Column Length L1 And L2
    G06445843Courtesy of SUZUKI OF AMERICA CORP.

    Steering column length 

    L1: 165.1 mm (6.500 in) 

    L2: 258.0 mm (10.16 in) 

  3. Check the tilt device for proper operation range.

    Range "A": 73.8 mm (2.906 in) 

    Fig 2: Checking Tilt Device For Proper Operation Range
    G06445844Courtesy of SUZUKI OF AMERICA CORP.