LEMON Manuals: Even more car manuals for everyone: 1960-2025
Home >> Toyota >> 2014 >> Corolla LE >> Repair and Diagnosis (Single Page) >> Steering >> Steering Column >> Steering Column (Service Information) (Model Code: ZRE172) >> Steering Column Assembly >> Reassembly [08/2013 - ] >> Procedure
April 5, 2026: LEMON Manuals is launched! Read the announcement.

Reassembly [08/2013 - ]: Procedure

  1. INSTALL POWER STEERING MOTOR ASSEMBLY 
    NOTE:
    • Do not drop the power steering motor assembly, strike it with tools or subject it to impacts.
    • If the power steering motor assembly is subjected to an impact, replace it with a new one.
    • Do not pull the wire harness of the power steering motor assembly.
    • Do not allow any moisture to come into contact with the power steering motor assembly.
    • Do not loosen any bolts not mentioned in the procedure.
    • Do not allow any foreign matter to contaminate the power steering motor assembly.
    1. Apply grease to the serrated part of the electric power steering column sub-assembly.
      GTY429304Courtesy of © TOYOTA, LICENSE AGREEMENT TMS1002
      Grease
      NOTE:

      First wipe off the existing grease from the serrated part, and then apply the dedicated grease supplied with a new power steering motor assembly or electric power steering column sub-assembly.

    2. Temporarily install the power steering motor assembly to the electric power steering column sub-assembly with the 2 bolts.
      NOTE:

      When temporarily installing the 2 bolts to the power steering motor assembly, do not tighten them all the way down.

    3. GTY441474Courtesy of © TOYOTA, LICENSE AGREEMENT TMS1002
      *a Cloth
      *b Wooden Block

      Secure the steering column assembly in a vise using aluminum plates, cloths and wooden blocks.

      NOTE:
      • Do not overtighten the vise, as the steering column assembly may become deformed.
      • Secure the power steering motor assembly so that it is upright.
      • Support the steering column assembly with wooden blocks or similar items to ensure that it does not fall.
    4. Using SST, turn the steering main shaft once 180 degrees to the left and then 180 degrees to the right at a speed of 60 rpm, and repeat 2 to 3 times to adjust the axis centering of the power steering motor assembly.
      GTY434169Courtesy of © TOYOTA, LICENSE AGREEMENT TMS1002
      • SST: 09616-00011 
    5. Tighten the 2 bolts.

      Torque: 18.5 N*m (189 kgf*cm, 14 ft.*lbf) 

    6. Using SST and a torque wrench, measure the turning torque of the steering main shaft.
      • SST: 09616-00011 

      Preload

      0.8 to 1.4 N*m (8 to 14 kgf*cm, 7 to 12 in.*lbf)

      NOTE:

      Ensure that there is no abnormal resistance during rotation.

      If the turning torque is not as specified, readjust the axis centering of the power steering motor assembly.

      GTY425859Courtesy of © TOYOTA, LICENSE AGREEMENT TMS1002
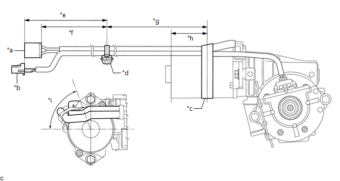
    7. Apply new tape and install a new clamp to the wire harness as shown in the illustration.
      GTY429281Courtesy of © TOYOTA, LICENSE AGREEMENT TMS1002
      *a Power Steering Motor Wire Harness *b Torque Sensor Wire Harness
      *c Tape *d Clamp
      *e 225 to 245 mm (8.86 to 9.64 in.) *f 240 to 260 mm (9.45 to 10.2 in.)
      *g 170 to 190 mm (6.70 to 7.48 in.) *h 50 to 70 mm (1.97 to 2.75 in.)
      *i 70° or less - -
      NOTE:
      • Wrap the tape at least 2 turns.
      • Secure the wire harness to the power steering motor assembly within the range indicated by *i.
    8. Cut off the excess length of the clamp.
  2. INSTALL UN-LOCK WARNING SWITCH ASSEMBLY (w/o Smart Key System) 
    1. Engage the 2 claws to install the un-lock warning switch assembly to the upper steering column bracket assembly.
  3. INSTALL IGNITION SWITCH LOCK CYLINDER ASSEMBLY (w/o Smart Key System) 
    1. Turn the ignition switch to ACC.
      GTY454288Courtesy of © TOYOTA, LICENSE AGREEMENT TMS1002
    2. Install the ignition switch lock cylinder assembly to the upper steering column bracket assembly.
    3. Make sure that the ignition switch lock cylinder assembly is securely installed into the upper steering column bracket assembly.
  4. INSTALL KEY INTERLOCK SOLENOID (w/o Smart Key System) 
    1. for Automatic Transaxle and CVT:
      1. Engage the claw to install the key interlock solenoid to the steering column upper bracket assembly.
      2. Install the screw.
  5. INSTALL IGNITION OR STARTER SWITCH ASSEMBLY (w/o Smart Key System) 
    1. Install the ignition or starter switch assembly to the upper steering column bracket assembly with the 2 screws.
  6. INSTALL TRANSPONDER KEY COIL (w/o Smart Key System) 
    1. Engage the 2 claws to install the transponder key coil.
  7. INSTALL UPPER STEERING COLUMN BRACKET WITH SWITCH ASSEMBLY (w/o Smart Key System) 
    1. Secure the steering column assembly in a vise between aluminum plates.
      NOTE:

      Do not overtighten the vise.

    2. GTY448727Courtesy of © TOYOTA, LICENSE AGREEMENT TMS1002

      Temporarily install the upper steering column bracket with switch assembly with a new steering lock set bolt.

    3. Tighten the steering lock set bolt until the bolt head breaks off.
  8. INSTALL STEERING LOCK ACTUATOR ASSEMBLY (w/ Smart Key System) 

    HINT: 

    • Perform the same procedure as for the upper steering column bracket with switch assembly.
    • When replacing the steering lock actuator assembly, perform initialization.

      Refer to REGISTRATION [08/2013 - ]