LEMON Manuals: Even more car manuals for everyone: 1960-2025
Home >> Acura >> 1992 >> Integra GS-R >> Repair and Diagnosis >> Electrical >> Charging Systems >> Alternator & Regulator >> Description
April 5, 2026: LEMON Manuals is launched! Read the announcement.

Alternator & Regulator: Description

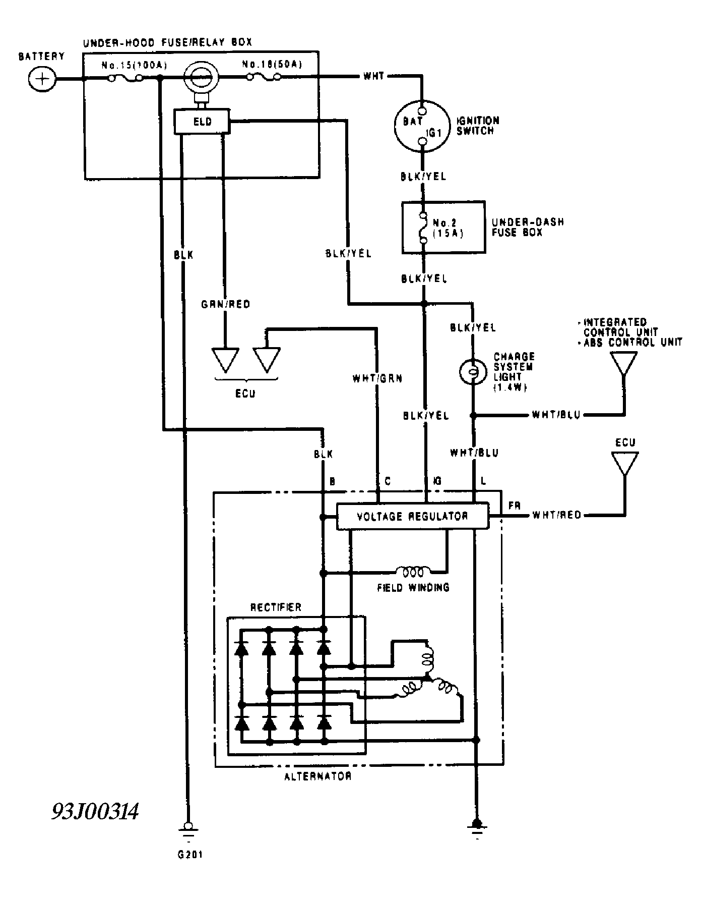
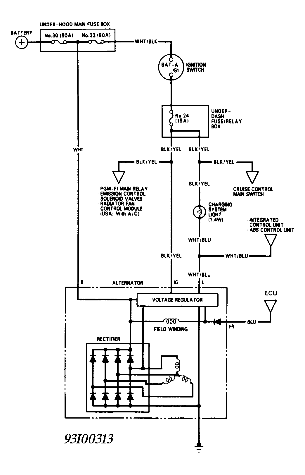
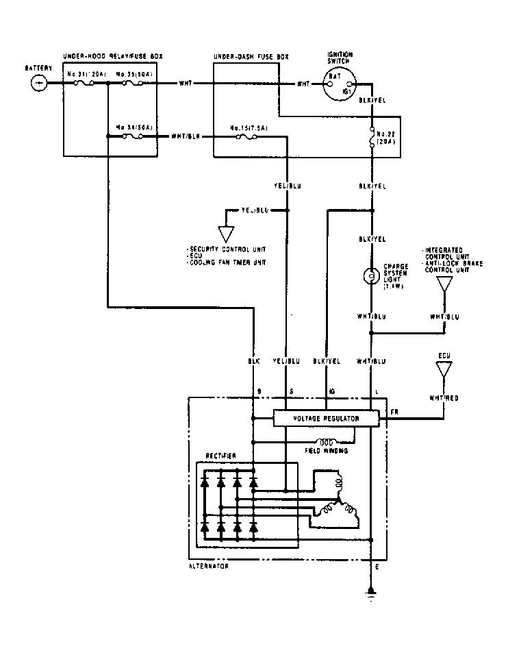
Nippondenso 3-phase alternators use 4 positive and 4 negative diodes to rectify current. An internal Integrated Circuit (IC) voltage regulator controls charging system voltage. See Fig 1-3 .

Fig 1: Charging System Wiring Schematic (Integra)
G93I00313Courtesy of AMERICAN HONDA MOTOR CO., INC.
Fig 2: Charging System Wiring Schematic (Legend)
G92J00071Courtesy of AMERICAN HONDA MOTOR CO., INC.
Fig 3: Charging System Wiring Schematic (Vigor)
G93J00314Courtesy of AMERICAN HONDA MOTOR CO., INC.