LEMON Manuals: Even more car manuals for everyone: 1960-2025
Home >> Acura >> 2009 >> CSX Base, Automatic >> Repair and Diagnosis >> External Pages >> Different car >> Section 29 (Frame) >> Frame Repair Chart >> Top View
April 5, 2026: LEMON Manuals is launched! Read the announcement.

Top View

WARNING: This page is about a different car, the 2011 Acura TL, 2010 Acura TL, and 2009 Acura TL. However, it is still accessible from the selected car via links, so may be relevant.
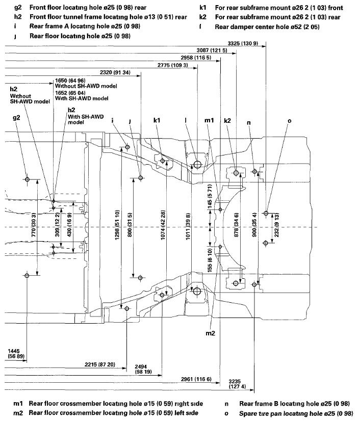
Fig 1: Frame Repair Chart - Top View (1 Of 2)
G05988531Courtesy of AMERICAN HONDA MOTOR CO., INC.
Fig 2: Frame Repair Chart - Top View (2 Of 2)
G05988532Courtesy of AMERICAN HONDA MOTOR CO., INC.