LEMON Manuals: Even more car manuals for everyone: 1960-2025
Home >> Cadillac >> 2003 >> Escalade EXT >> Repair and Diagnosis >> External Pages >> Different car >> Section 647 (Navigation Systems) >> Schematic and Routing Diagrams >> Navigation System Schematics
April 5, 2026: LEMON Manuals is launched! Read the announcement.

Navigation System Schematics

WARNING: This page is about a different car, the 2004 Cadillac CTS. However, it is still accessible from the selected car via links, so may be relevant.
Fig 1: TV Antenna Module and Amplifiers, TV Rear Glass Antenna and Auxiliary RCA Video Jacks (Export w/ U2Y/U2X)
GM1326500Courtesy of GENERAL MOTORS CORP.
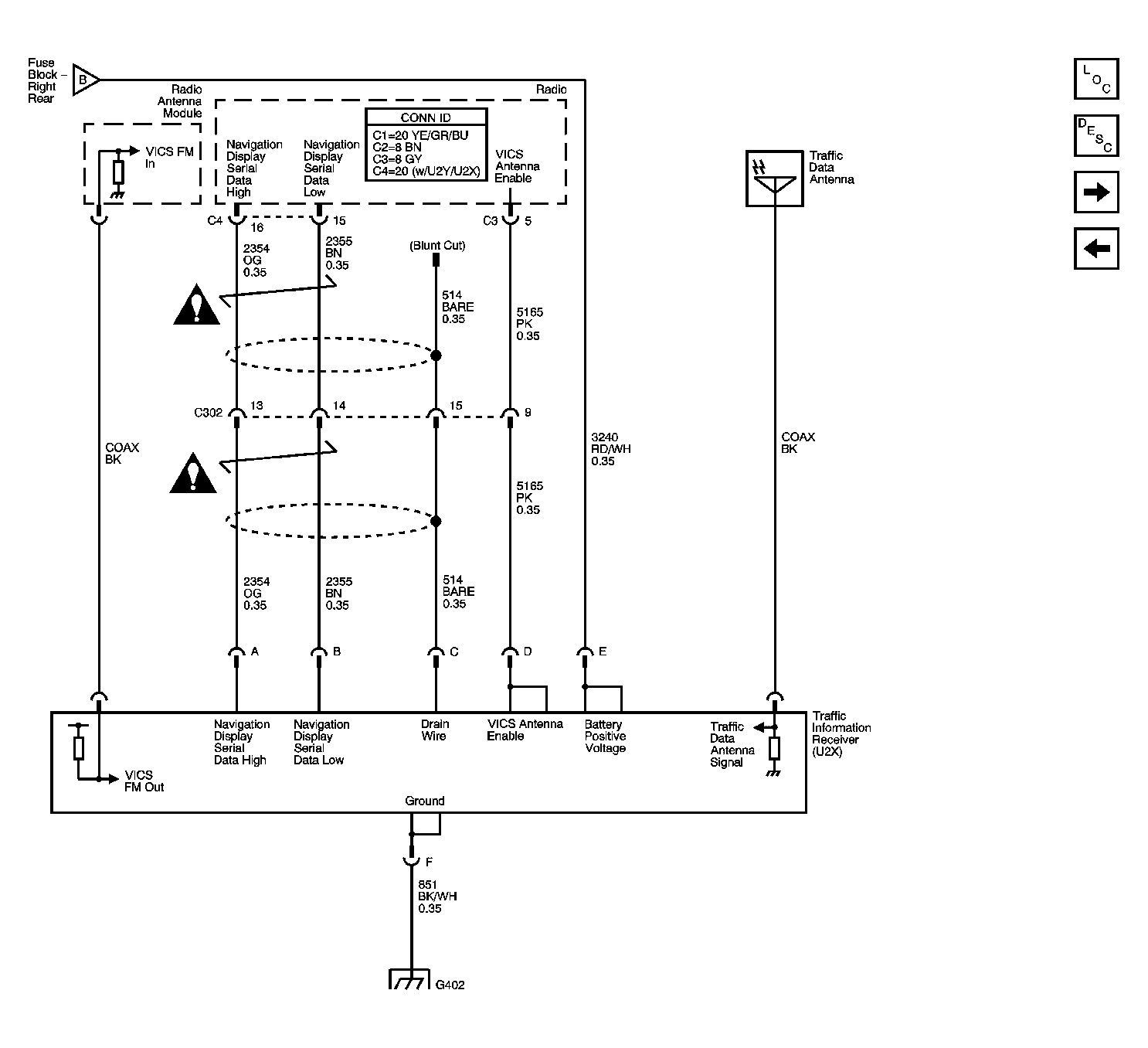
Fig 2: Traffic Information Receiver (Japan w/ U2X/U2Y)
GM1326503Courtesy of GENERAL MOTORS CORP.
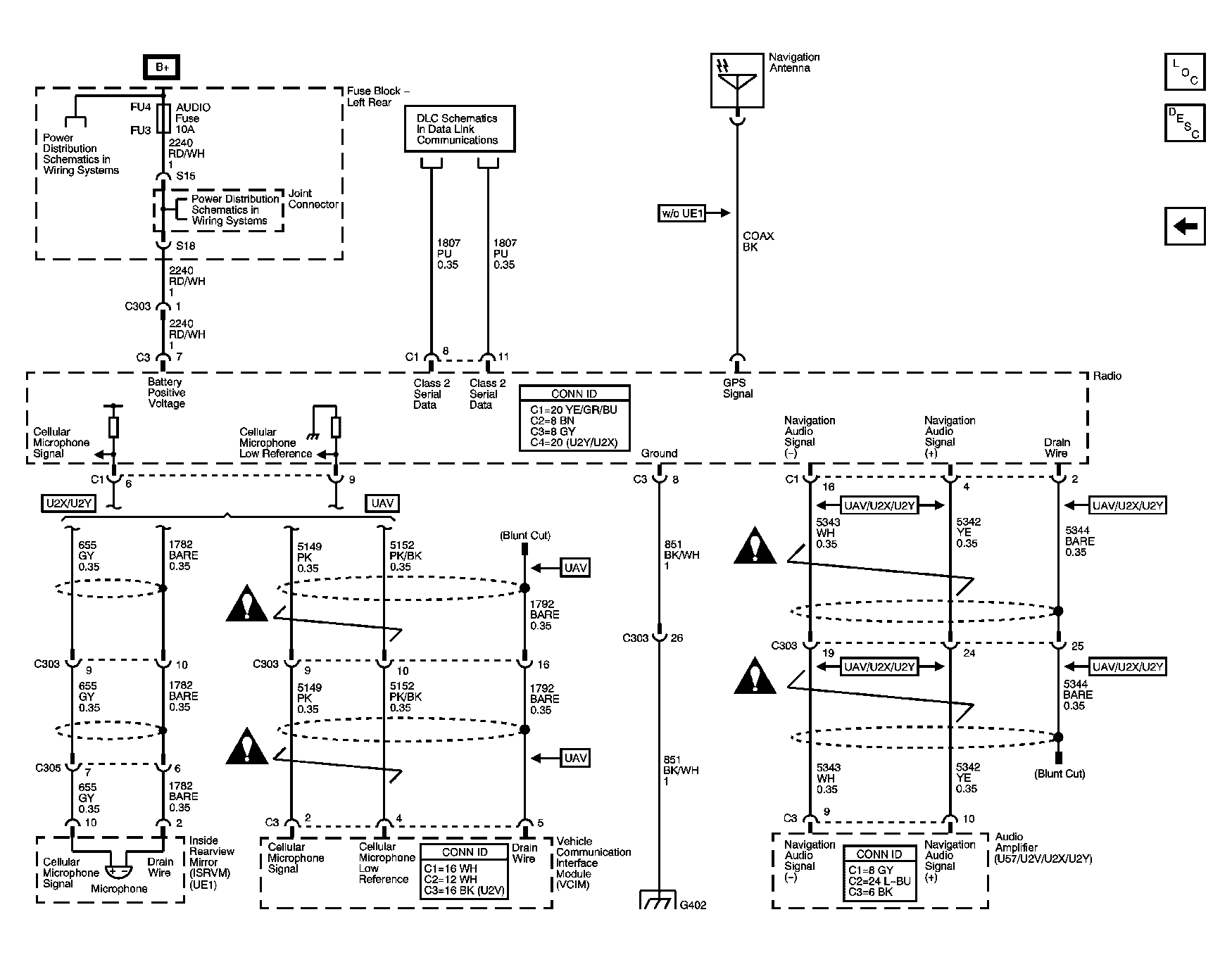
Fig 3: Navigation Antenna, Radio, Audio Amplifier, VCIM and ISRVM
GM1326505Courtesy of GENERAL MOTORS CORP.