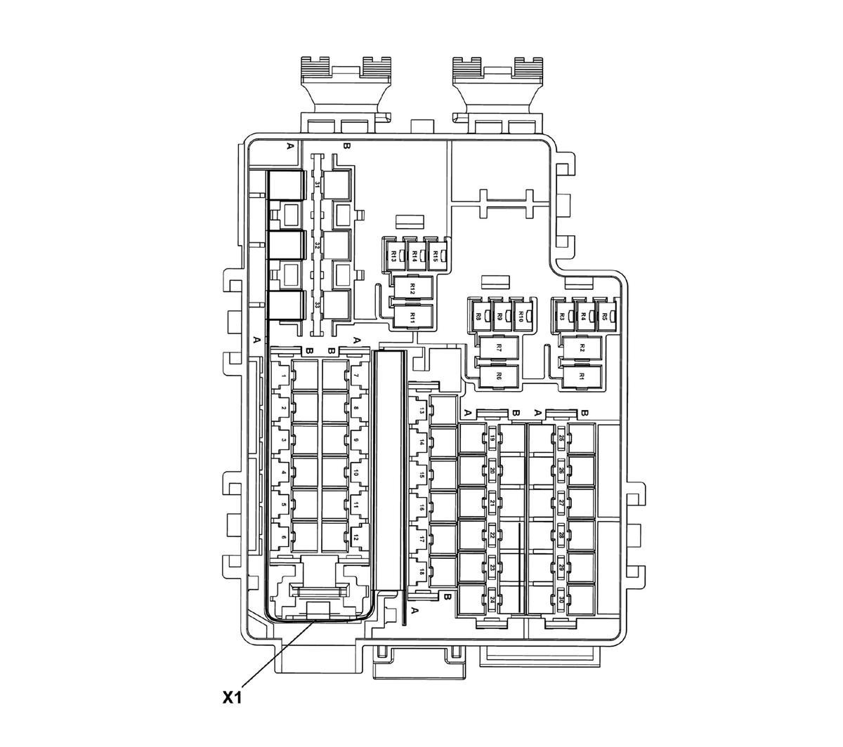
X51A Fuse Block - Instrument Panel Bottom View Bottom View
Connector Part Information
|
Terminal Part Information
| Terminal Type ID | Terminated Lead | Diagnostic Test Probe | Terminal Removal Tool | Service Terminal | Tray | Core Crimp | Insulation Crimp |
|---|---|---|---|---|---|---|---|
| I | 13575256 | J-35616-42 (RD) | J-38125-11A | 7116-2877 | 19 | F | G |
| II | 13580022 | J-35616-43 (RD) | J-38125-11A | Not Available | Not Available | Not Available | Not Available |
| III | 19118054 | J-35616-42 (RD) | J-38125-11A | 7116-2875 | 17 | E | B |
| IV | 19118054 | J-35616-42 (RD) | J-38125-11A | 7116-2875 | 17 | E | G |
| V | 19118165 | J-35616-42 (RD) | J-38125-11A | 7116-2876 | 18 | 4 | G |
| VI | 19119888 | J-35616-35 (VT) | J-38125-12A | Not Available | Not Available | Not Available | Not Available |
| VI | 19119888 | J-35616-35 (VT) | J-38125-12A | Not Available | Not Available | Not Available | Not Available |
| VII | 19119958 | J-35616-35 (VT) | J-38125-12A | Not Available | Not Available | Not Available | Not Available |
| VIII | 19119959 | J-35616-42 (RD) | J-38125-11A | Not Available | Not Available | Not Available | Not Available |
| IX | 19119960 | J-35616-35 (VT) | J-38125-12A | Not Available | Not Available | Not Available | Not Available |
| Pin | Size | Color | Circuit | Function | Terminal Type ID | Option |
|---|---|---|---|---|---|---|
| 1A | - | BUS BAR | 342 | Battery Positive Voltage | - | - |
| 1B | 1.5 | RD/BU | 42 | Battery Positive Voltage | VI | - |
| 2A | - | BUS BAR | 342 | Battery Positive Voltage | - | - |
| 2B | 0.35 | RD/BN | 4940 | Battery Positive Voltage | VI | - |
| 3A | - | BUS BAR | 342 | Battery Positive Voltage | - | - |
| 3B | 0.75 | RD/GY | 4140 | Battery Positive Voltage | VI | ULS |
| 4A | - | BUS BAR | 342 | Battery Positive Voltage | - | - |
| 4B | - | - | - | Not Occupied | - | - |
| 5A | - | BUS BAR | 342 | Battery Positive Voltage | - | - |
| 5B | - | - | - | Not Occupied | - | - |
| 6A | - | BUS BAR | 342 | Battery Positive Voltage | - | - |
| 6B | 1 | RD/BN | 3640 | Battery Positive Voltage | VI | N38 |
| 7A | - | BUS BAR | 342 | Battery Positive Voltage | - | - |
| 7B | - | - | - | Not Occupied | - | - |
| 8A | - | BUS BAR | 342 | Battery Positive Voltage | - | - |
| 8B | 0.35 | RD | 40 | Battery Positive Voltage | VI | - |
| 9A | - | BUS BAR | 342 | Battery Positive Voltage | - | - |
| 9B | 0.35 | RD/GY | 4840 | Battery Positive Voltage | VI | - |
| 10A | - | BUS BAR | 342 | Battery Positive Voltage | - | - |
| 10B | 3 1.5 |
RD/BU RD/BU |
1240 1240 |
Battery Positive Voltage Battery Positive Voltage |
VIII VI |
without VPH VPH |
| 11A | - | BUS BAR | 342 | Battery Positive Voltage | - | - |
| 11B | 0.75 | RD/VT | 4040 | Battery Positive Voltage | VI | - |
| 12A | - | BUS BAR | 342 | Battery Positive Voltage | - | - |
| 12B | 0.75 | RD/BN | 4240 | Battery Positive Voltage | VI | - |
| 13A | - | BUS BAR | 342 | Battery Positive Voltage | - | - |
| 13B | - | - | - | Not Occupied | - | - |
| 14A | - | BUS BAR | 342 | Battery Positive Voltage | - | - |
| 14B | - | - | - | Not Occupied | - | - |
| 15A | - | BUS BAR | 342 | Battery Positive Voltage | - | - |
| 15B | - | - | - | Not Occupied | - | - |
| 16A | - | BUS BAR | 342 | Battery Positive Voltage | - | - |
| 16B | - | - | - | Not Occupied | - | - |
| 17A | - | BUS BAR | 342 | Battery Positive Voltage | - | - |
| 17B | - | - | - | Not Occupied | - | - |
| 18A | - | BUS BAR | 342 | Battery Positive Voltage | - | - |
| 18B | - | - | - | Not Occupied | - | - |
| 19A | - | - | - | Not Occupied | - | - |
| 19B | - | - | - | Not Occupied | - | - |
| 20A | - | - | - | Not Occupied | - | - |
| 20B | - | - | - | Not Occupied | - | - |
| 21A | - | - | - | Not Occupied | - | - |
| 21B | - | - | - | Not Occupied | - | - |
| 22A | 0.35 0.5 |
RD/GN RD/GN |
4440 4440 |
Battery Positive Voltage Battery Positive Voltage |
VI | - - |
| 22B | - | BUS BAR | 1240 | Battery Positive Voltage | - | - |
| 23A | 0.5 | RD/VT | 3340 | Battery Positive Voltage | VI | (KL9+M5N)/(-KL9) |
| 23B | 3 3 |
RD/BU RD/BU |
1240 1240 |
Battery Positive Voltage Battery Positive Voltage |
IX | VPH without VPH |
| 24A | 0.5 | RD/BU | 3240 | Battery Positive Voltage | VI | - |
| 24B | - | BUS BAR | 1240 | Battery Positive Voltage | - | - |
| 25A | 0.75 | VT/GY | 1439 | Run/Crank Ignition 1 Voltage | VI | UVD |
| 25B | 0.5 | VT/WH | 239 | Run/Crank Ignition 1 Voltage | VI | UVD |
| 26A | 1 | VT | 1001 | Retained Accessory Power Ignition | VI | A1LL+K4C |
| 26B | 0.5 | VT | 4601 | Retained Accessory Power Fused Control | VI | K4C-A1SLS |
| 27A | 0.5 | RD/BU | 3240 | Battery Positive Voltage | VI | - |
| 27B | 0.35 | RD/YE | 3040 | Battery Positive Voltage | VI | - |
| 28A | - | - | - | Not Occupied | - | - |
| 28B | - | - | - | Not Occupied | - | - |
| 29A | 0.5 | WH/BN | 6815 | Inadvertent Power Control | VI | - |
| 29B | 0.5 | WH/BN | 6815 | Inadvertent Power Control | VI | - |
| 30A | - | - | - | Not Occupied | - | - |
| 30B | - | - | - | Not Occupied | - | - |
| 31A | - | BUS BAR | 342 | Battery Positive Voltage | - | - |
| 31B | - | - | - | Not Occupied | - | - |
| 32A | - | BUS BAR | 342 | Battery Positive Voltage | - | - |
| 32B | - | - | - | Not Occupied | - | - |
| 33A | - | BUS BAR | 342 | Battery Positive Voltage | - | - |
| 33B | 4 | RD/VT | 542 | Battery Positive Voltage | II | - |
| R1 | 1.5 | RD/BU | 42 | Battery Positive Voltage | V | - |
| R2 | 1.5 | VT | 1001 | Retained Accessory Power Ignition | V | A1LL+K4C |
| R3 | 0.35 | BK | 1350 | Ground | VII | - |
| R4 | - | - | - | Not Occupied | - | - |
| R5 | 0.35 | GY/GN | 4083 | RAP Relay 2 Coil Control | VII | - |
| R6 | 3 | RD/BU | 1240 | Battery Positive Voltage | I | VPH |
| R7 | 1.5 | RD/BU | 1240 | Battery Positive Voltage | V | VPH |
| R8 | 0.35 | GY/VT | 3264 | Logistic Mode Relay Close Control | VII | VPH |
| R9 | 0.35 | BK | 1350 | Ground | VII | VPH |
| R10 | 0.35 | VT/BU | 3263 | Logistic Mode Relay Open Control | VII | VPH |
| R11 | 0.35 | RD/GY | 4840 | Battery Positive Voltage | III | - |
| R12 | 0.5 | BN/GY | 4048 | Glove Box Door Release Control | IV | - |
| R13 | 0.35 | BK | 1350 | Ground | VII | - |
| R14 | - | - | - | Not Occupied | - | - |
| R15 | 0.35 | BN/WH | 4046 | Glove Box Door Release Relay Control | VII | - |