LEMON Manuals: Even more car manuals for everyone: 1960-2025
Home >> Chevrolet >> 2007 >> Impala SS >> Repair and Diagnosis >> External Pages >> Different car >> Section 837 (Data Communication System) >> Schematic and Routing Diagrams >> Body Control System Schematics
April 5, 2026: LEMON Manuals is launched! Read the announcement.

Body Control System Schematics

WARNING: This page is about a different car, the 2008 Chevrolet Malibu. However, it is still accessible from the selected car via links, so may be relevant.
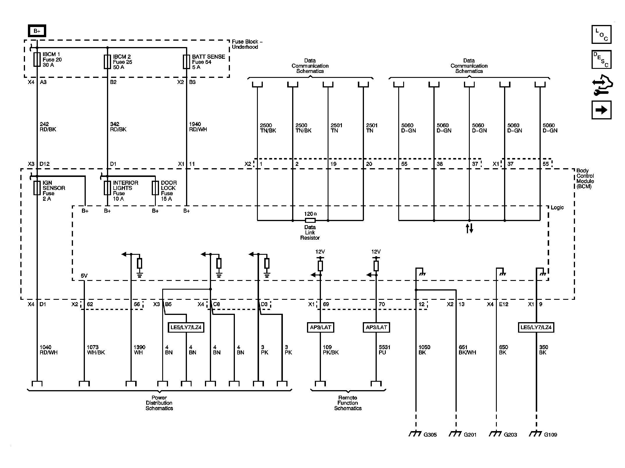
Fig 1: Power, Ground & DLC Schematic
GM1987240Courtesy of GENERAL MOTORS CORP.
Fig 2: Controlled/Monitored Subsystem References Schematic (1 Of 3)
GM1987247Courtesy of GENERAL MOTORS CORP.
Fig 3: Controlled/Monitored Subsystem References Schematic (2 Of 3)
GM1987249Courtesy of GENERAL MOTORS CORP.
Fig 4: Controlled/Monitored Subsystem References Schematic (3 Of 3)
GM1987251Courtesy of GENERAL MOTORS CORP.