LEMON Manuals: Even more car manuals for everyone: 1960-2025
Home >> Chevrolet >> 2008 >> HHR SS, Automatic >> Repair and Diagnosis >> External Pages >> Different car >> Section 249 (Cellular Systems, Entertainment Systems & Navigation Systems) >> Schematic and Routing Diagrams >> Video System Schematics
April 5, 2026: LEMON Manuals is launched! Read the announcement.

Video System Schematics

WARNING: This page is about a different car, the 2010 Chevrolet HHR. However, it is still accessible from the selected car via links, so may be relevant.
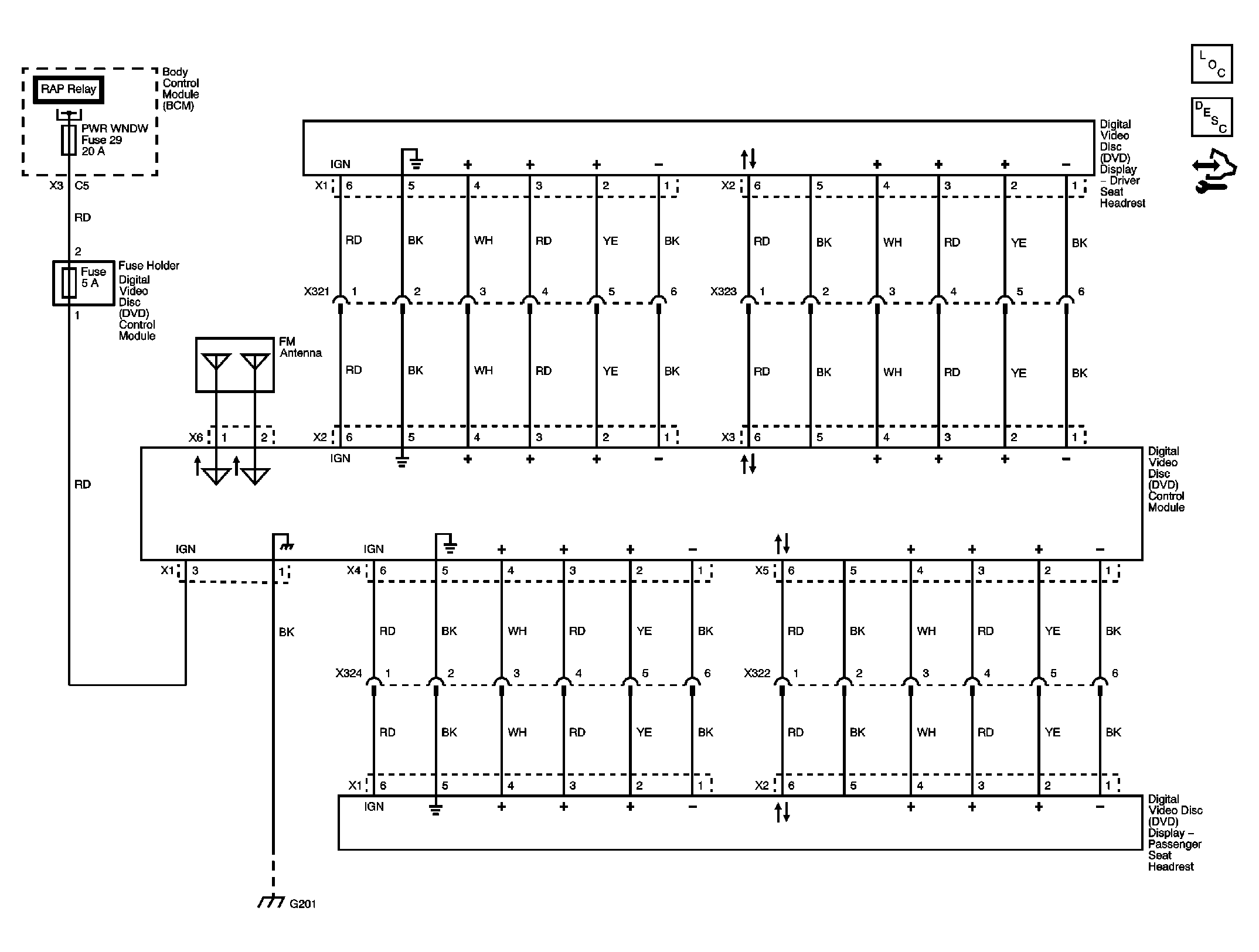
Fig 1: Headrest DVD (SPO Accessory)
GM2286025Courtesy of GENERAL MOTORS CORP.