LEMON Manuals: Even more car manuals for everyone: 1960-2025
Home >> Chevrolet >> 2012 >> Traverse LS, AWD >> Repair and Diagnosis >> External Pages >> Different car >> Section 401 (Cellular System, Entertainment System, And Navigation System) >> Schematic Wiring Diagrams >> Radio/Navigation System Wiring Schematics >> Rear Audio Controls, Lighting, Data Communication, and Infrared Module
April 5, 2026: LEMON Manuals is launched! Read the announcement.

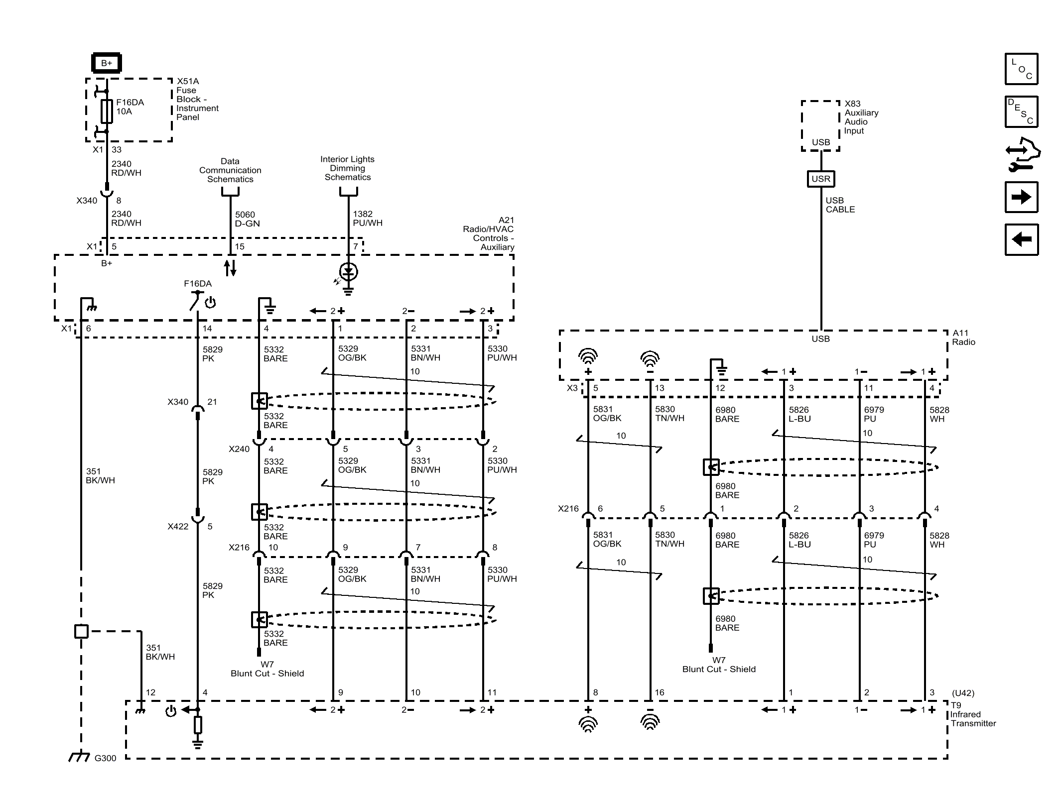
Rear Audio Controls, Lighting, Data Communication, and Infrared Module

WARNING: This page is about a different car, the 2016 GMC Acadia, 2016 Chevrolet Traverse, and 2016 Buick Enclave. However, it is still accessible from the selected car via links, so may be relevant.
Fig 1: Rear Audio Controls, Lighting, Data Communication, and Infrared Module
GM4073764Courtesy of GENERAL MOTORS COMPANY