LEMON Manuals: Even more car manuals for everyone: 1960-2025
Home >> Chevrolet >> 2013 >> Sonic RS, Automatic Trans >> Repair and Diagnosis >> External Pages >> Different car >> Section 637 (Keyless Entry System And Remote Functions) >> Schematic Wiring Diagrams >> Remote Function Wiring Schematics >> Keyless Entry
April 5, 2026: LEMON Manuals is launched! Read the announcement.

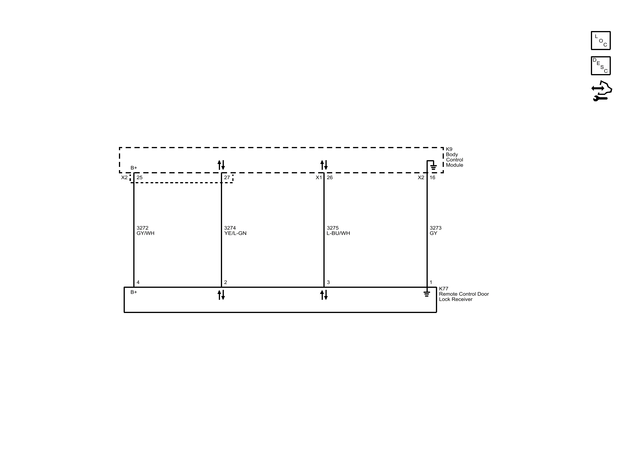
Keyless Entry

WARNING: This page is about a different car, the 2014 Chevrolet Sonic. However, it is still accessible from the selected car via links, so may be relevant.
Fig 1: Keyless Entry Wiring Schematic
GM3394679Courtesy of GENERAL MOTORS COMPANY