LEMON Manuals: Even more car manuals for everyone: 1960-2025
Home >> Chevrolet >> 2015 >> Spark EV >> Repair and Diagnosis >> Hybrid/Electric Powertrain >> Electric Converters and Controllers >> Hybrid/EV Control System >> Schematic Wiring Diagrams >> Hybrid/EV Controls Wiring Schematics >> Hybrid/EV Powertrain Control Module 1/Power Inverter Module Power, Ground and Data Communication
April 5, 2026: LEMON Manuals is launched! Read the announcement.

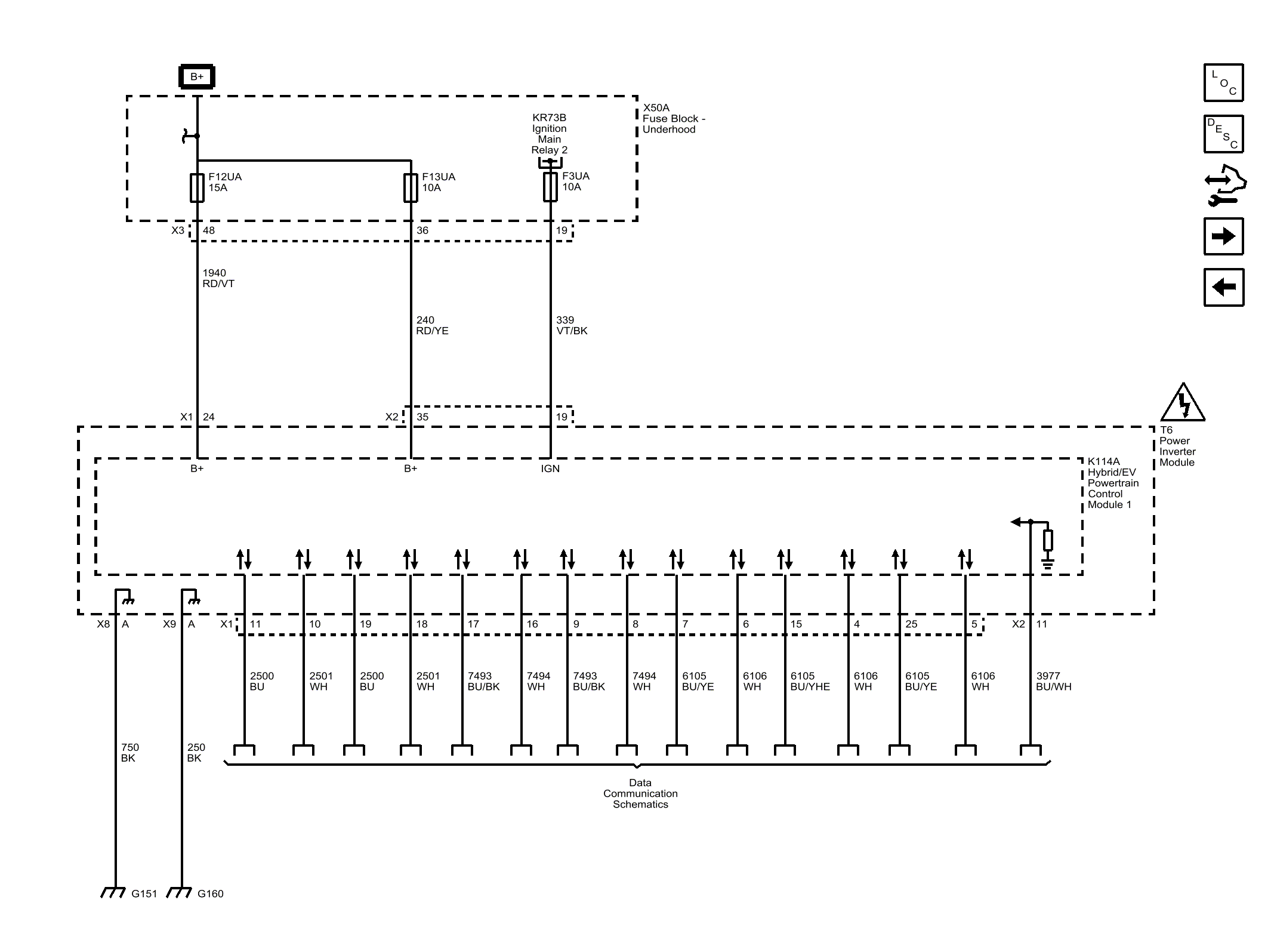
Hybrid/EV Powertrain Control Module 1/Power Inverter Module Power, Ground and Data Communication

Fig 1: Hybrid/EV Powertrain Control Module 1/Power Inverter Module Power, Ground and Data Communication
GM3666201Courtesy of GENERAL MOTORS COMPANY