LEMON Manuals: Even more car manuals for everyone: 1960-2025
Home >> Chevrolet >> 2017 >> Sonic Premier, 4D Hatchback, Automatic Trans >> Repair and Diagnosis >> Body & Frame >> Door Locks >> Keyless Entry System And Remote Functions >> Schematic Wiring Diagrams >> Remote Function Wiring Schematics >> Keyless Entry - Passive Start (ATH)
April 5, 2026: LEMON Manuals is launched! Read the announcement.

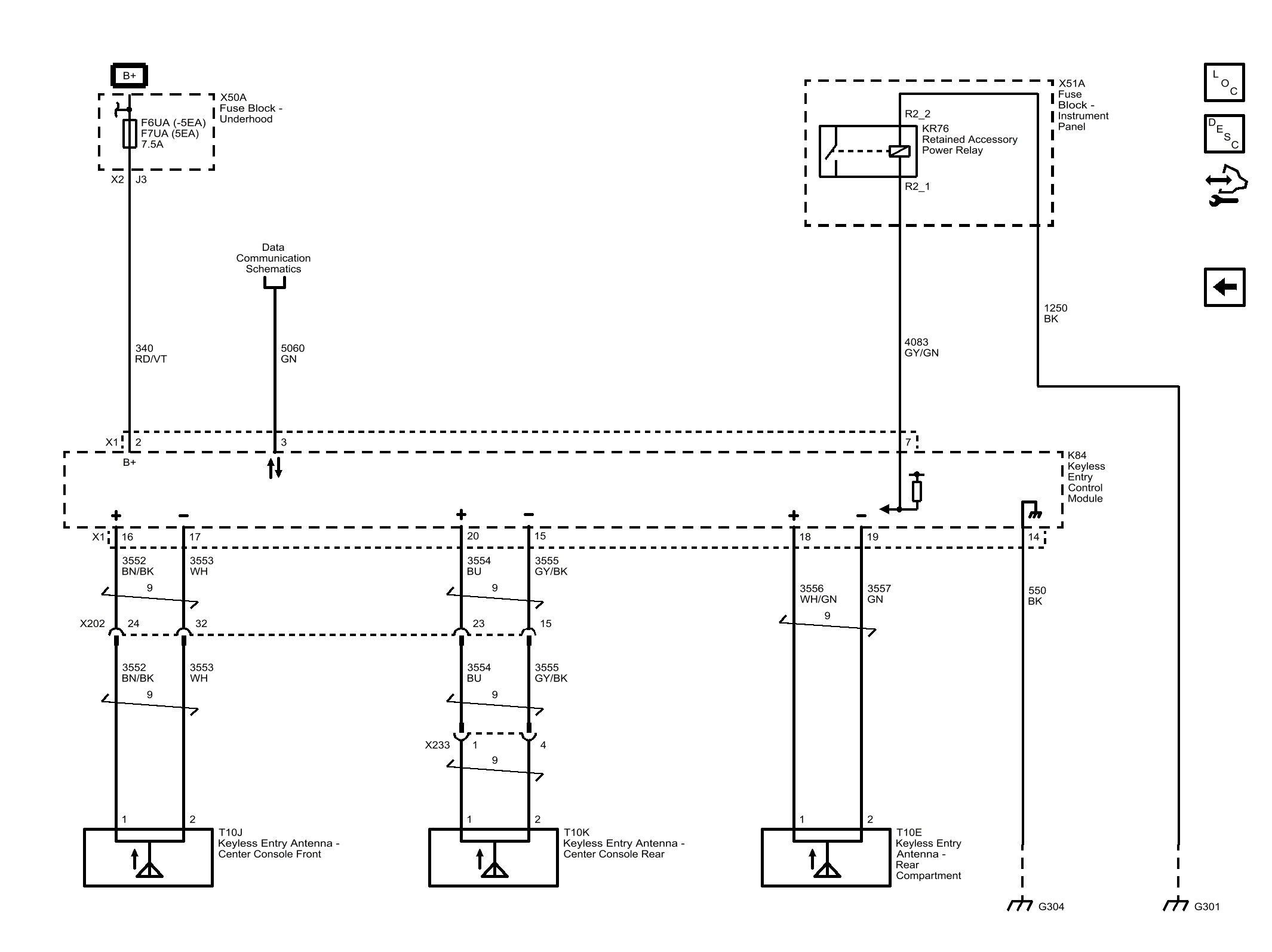
Keyless Entry - Passive Start (ATH)

Fig 1: Keyless Entry Wiring Schematics - Passive Start (ATH)
GM4448103Courtesy of GENERAL MOTORS COMPANY