LEMON Manuals: Even more car manuals for everyone: 1960-2025
Home >> Chrysler >> 2006 >> Crossfire Base, 2D Convertible >> Repair and Diagnosis (Single Page) >> Body & Frame >> Windows >> Power Windows - Electrical Diagnostics >> Electrical Diagnostics >> DTC Troubleshooting >> *Both Power Windows Inoperative >> Notes
April 5, 2026: LEMON Manuals is launched! Read the announcement.

*Both Power Windows Inoperative: Notes

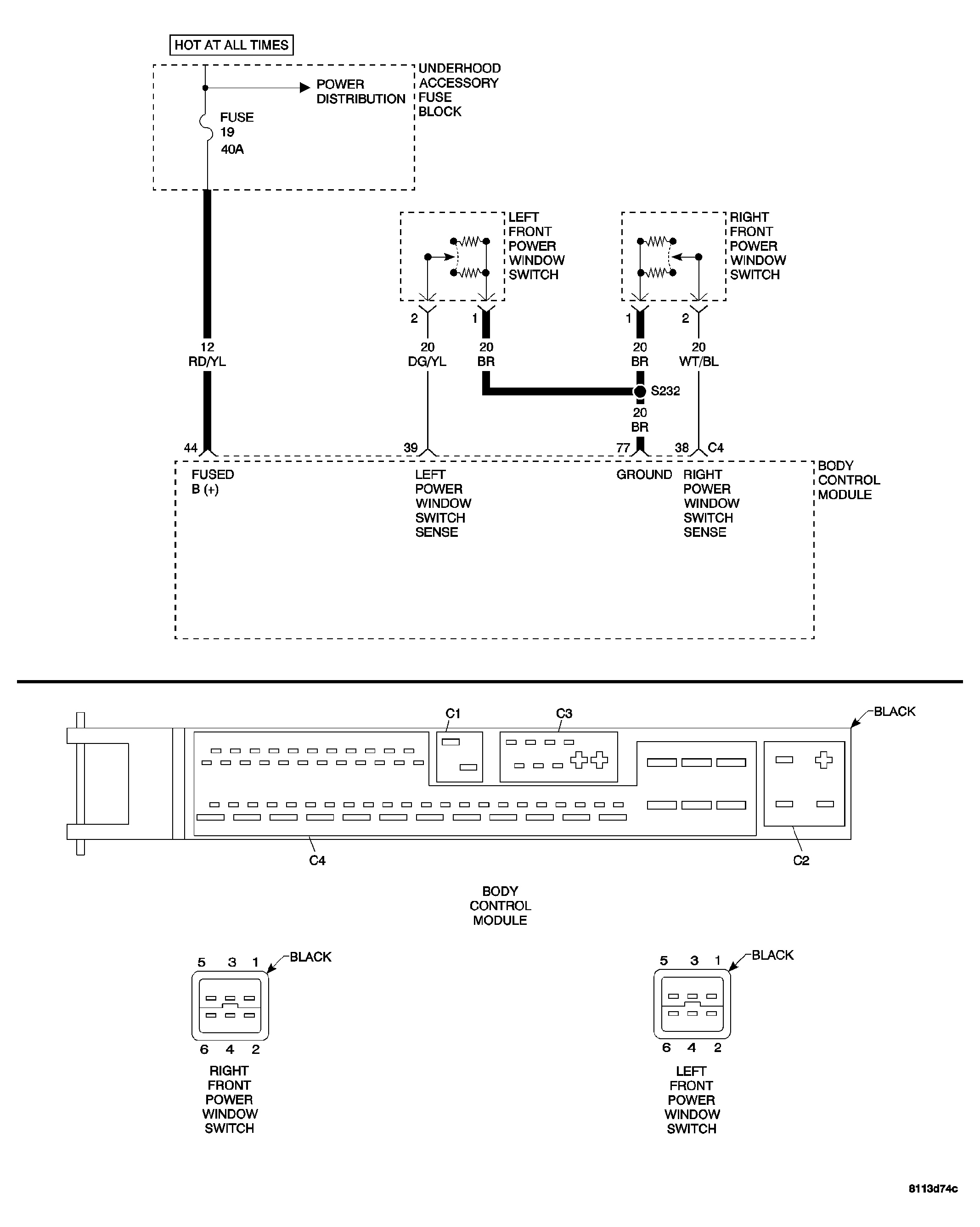
Fig 1: Power Windows Circuit Schematic
GC0035566Courtesy of DAIMLERCHRYSLER CORP.
POSSIBLE CAUSES 
FUSED B(+) CIRCUIT OPEN
POWER WINDOW SWITCH GROUND CIRCUIT OPEN
BODY CONTROL MODULE

For a complete Power Windows Circuit Diagram, (Refer to ELECTRICAL/POWER WINDOWS - SCHEMATICS AND DIAGRAMS) .