LEMON Manuals: Even more car manuals for everyone: 1960-2025
Home >> Chrysler >> 2010 >> Sebring Convertible L4-2.4L >> Repair and Diagnosis >> Powertrain Management >> Computers and Control Systems >> Manifold Pressure/Vacuum Sensor >> Testing and Inspection
April 5, 2026: LEMON Manuals is launched! Read the announcement.

Manifold Pressure/Vacuum Sensor: Testing and Inspection






CHECKING THE MAP SENSOR OPERATION - GPEC





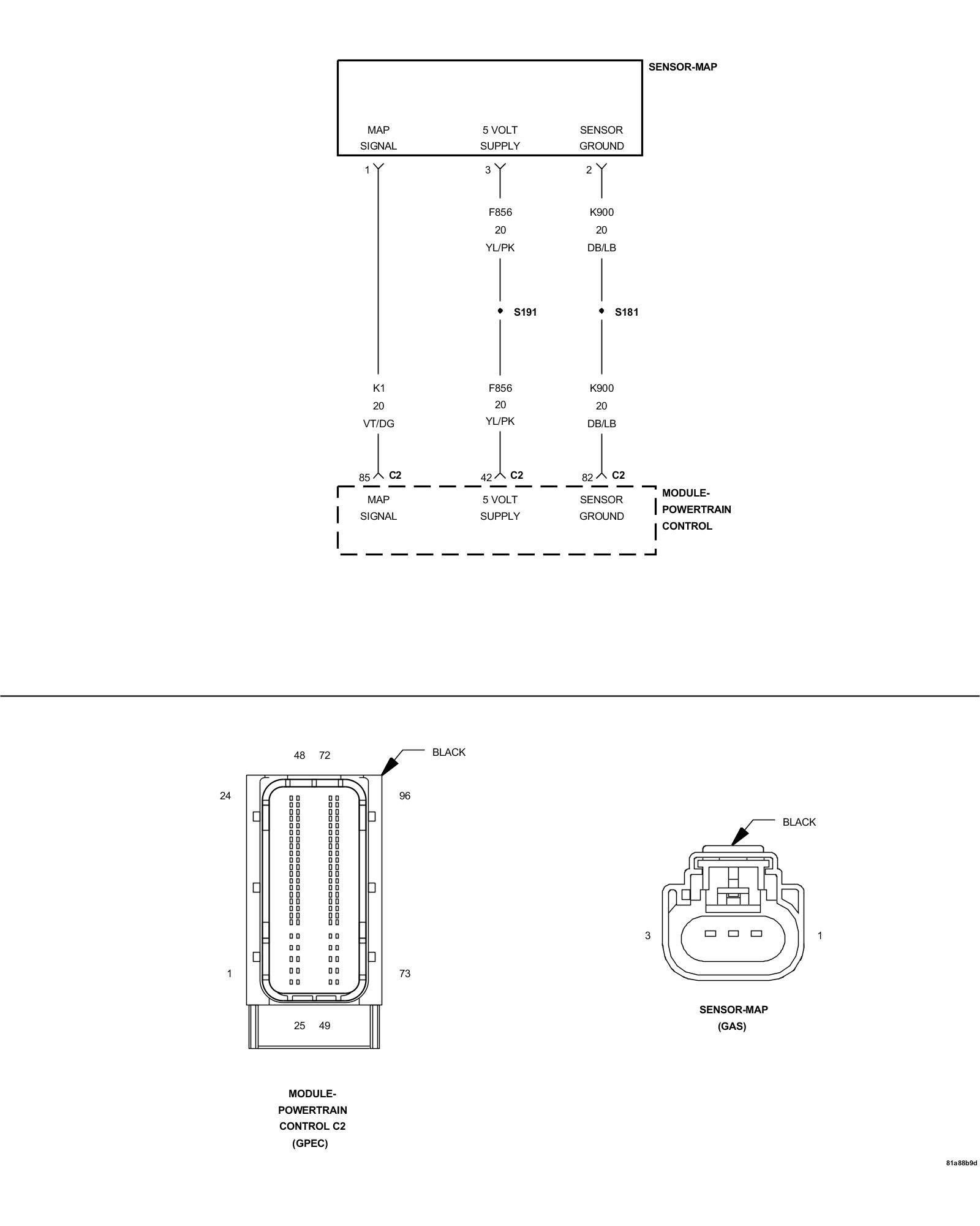
For a complete wiring diagram, refer to the Wiring Information .

1. MAP SENSOR WIRING OR CONNECTORS

NOTE: Diagnose and repair any MAP Sensor circuit DTCs before proceeding with this test.

NOTE: Diagnose and repair any sensor supply or system voltage DTCs before proceeding with this test.

1. Turn the ignition off.
2. Using the wiring diagram/schematic as a guide, inspect the wiring and connectors between the MAP Sensor and the PCM.
3. Look for any chafed, pierced, pinched, or partially broken wires.
4. Look for broken, bent, pushed out or corroded terminals.
5. Turn the ignition on.
6. Monitor the scan tool data relative to the sensor and wiggle test the wiring and connectors.
7. Look for the data to change or for a DTC to set during the wiggle test. If necessary, check each sensor circuit for high resistance or a shorted condition.

Were any problems found?

Yes

- Repair as necessary.
- Perform the PCM Verification Test. PCM Verification Test.

No

- Go To 2

2. MAP VACUUM/BAROMETRIC PRESSURE
1. With a scan tool, read the Barometric Pressure.

NOTE: The Barometric Pressure should be approximately equal to the actual barometric pressure. If necessary, compare the Barometric Pressure value of the tested vehicle to the value of a known good vehicle of a similar make and model.

2. Connect a vacuum gauge to a manifold vacuum source.
3. Start the engine.

NOTE: If engine will not idle, maintain a constant RPM above idle.

WARNING: When the engine is operating, do not stand in direct line with the fan. Do not put your hands near the pulleys, belts or fan. Do not wear loose clothing. Failure to follow these instructions may result in possible serious or fatal injury.

4. With the scan tool, read the MAP Sensor vacuum.

NOTE: The scan tool reading for MAP vacuum should be within 1" of the vacuum gauge reading.

Were any problems found?

Yes

- Go To 4

No

- Go To 3

3. MAP SENSOR VOLTAGE
1. With the scan tool, monitor the MAP Sensor signal voltage.
2. With the engine idling in neutral or park, snap the throttle.

NOTE: The MAP Sensor signal voltage should change from below 2.0 volts at idle to above 3.5 volts at wide open throttle.

Were any problems found?

Yes

- Go To 4

No

- Test complete.

4. (F856) 5 VOLT SUPPLY CIRCUIT HIGH RESISTANCE
1. Turn the ignition off.

NOTE: When checking circuits at the Powertrain Control Module (PCM), be careful not to damage or distort the connector terminals. Improper measurement technique could result in poor pin to terminal contact.

2. Using a voltmeter, perform a voltage drop test by backprobing the (F856) 5 Volt Supply circuit at the MAP Sensor harness connector and at the PCM. Make sure the voltmeter leads are connected so that positive polarity is displayed on the voltmeter.

WARNING: When the engine is operating, do not stand in direct line with the fan. Do not put your hands near the pulleys, belts or fan. Do not wear loose clothing. Failure to follow these instructions may result in possible serious or fatal injury.

3. Start the engine.

Is the voltage below 0.5 volts?

Yes

- Go To 5

No

- Repair the (F856) 5 Volt Supply circuit for excessive resistance.
- Perform the PCM Verification Test. PCM Verification Test.

5. (K1) MAP SIGNAL CIRCUIT HIGH RESISTANCE
1. Turn the ignition off.

NOTE: When checking circuits at the Powertrain Control Module (PCM), be careful not to damage or distort the connector terminals. Improper measurement technique could result in poor pin to terminal contact.

2. Using a voltmeter, perform a voltage drop test by backprobing the (K1) MAP Signal circuit at the MAP Sensor harness connector and at the PCM. Make sure the voltmeter leads are connected so that positive polarity is displayed on the voltmeter.

WARNING: When the engine is operating, do not stand in direct line with the fan. Do not put your hands near the pulleys, belts or fan. Do not wear loose clothing. Failure to follow these instructions may result in possible serious or fatal injury.

3. Start the engine.

Is the voltage below 0.5 volts?

Yes

- Go To 6

No

- Repair the (K1) MAP Signal circuit for excessive resistance.
- Perform the PCM Verification Test. PCM Verification Test.

6. (K900) SENSOR GROUND CIRCUIT HIGH RESISTANCE
1. Turn the ignition off.

NOTE: When checking circuits at the Powertrain Control Module (PCM), be careful not to damage or distort the connector terminals. Improper measurement technique could result in poor pin to terminal contact.

2. Using a voltmeter, perform a voltage drop test by backprobing the (K900) Sensor Ground circuit at the MAP Sensor harness connector and at the PCM. Make sure the voltmeter leads are connected so that positive polarity is displayed on the voltmeter.

WARNING: When the engine is operating, do not stand in direct line with the fan. Do not put your hands near the pulleys, belts or fan. Do not wear loose clothing. Failure to follow these instructions may result in possible serious or fatal injury.

3. Start the engine.

Is the voltage below 0.5 volts?

Yes

- Go To 7

No

- Repair the (K900) Sensor Ground circuit for excessive resistance.
- Perform the PCM Verification Test. PCM Verification Test.

7. MAP SENSOR
1. Using the wiring diagram/schematic as a guide, inspect the wiring and connectors between the MAP Sensor and the Powertrain Control Module (PCM).
2. Look for any chafed, pierced, pinched, or partially broken wires.
3. Look for broken, bent, pushed out or corroded terminals.
4. Search for any Technical Service Bulletins that may apply.

Were any problems found?

Yes

- Repair as necessary.
- Perform the PCM Verification Test. PCM Verification Test.

No

- Replace the MAP Sensor.
- Perform the PCM Verification Test. PCM Verification Test.