LEMON Manuals: Even more car manuals for everyone: 1960-2025
Home >> GMC >> 2002 >> Jimmy 4D Utility, 4WD, Part Time >> Repair and Diagnosis >> External Pages >> Different car >> Section 1410 (Door System, Mirror System & Window System) >> Schematic and Routing Diagrams >> Door Control Module Schematics
April 5, 2026: LEMON Manuals is launched! Read the announcement.

Door Control Module Schematics

WARNING: This page does not describe the selected car, but rather 6 other vehicles, including the 2004 Oldsmobile Bravada, 2004 GMC Envoy XUV, 2004 GMC Envoy XL, 2004 GMC Envoy, and 2004 Chevrolet TrailBlazer. However, it is still accessible from the selected car via links, so may be relevant.
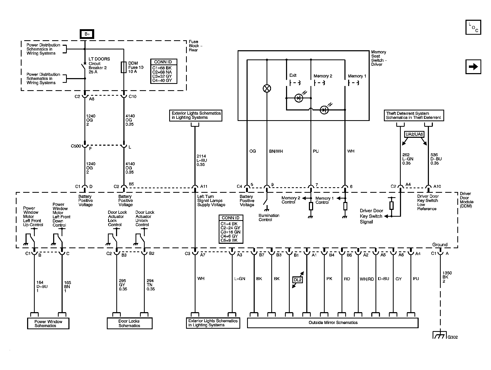
Fig 1: Driver - Power, Ground, and Subsystem References Schematic
GM1332966Courtesy of GENERAL MOTORS CORP.
Fig 2: Driver - Serial Data and Subsystem References Schematic
GM1332970Courtesy of GENERAL MOTORS CORP.
Fig 3: Front Passenger Schematic
GM1332972Courtesy of GENERAL MOTORS CORP.