LEMON Manuals: Even more car manuals for everyone: 1960-2025
Home >> GMC >> 2007 >> Acadia SLE, AWD >> Repair and Diagnosis >> External Pages >> Different car >> Section 441 (Data Communication System) >> Schematic and Routing Diagrams >> Body Control System Schematics
April 5, 2026: LEMON Manuals is launched! Read the announcement.

Body Control System Schematics

WARNING: This page is about a different car, the 2007 Cadillac XLR. However, it is still accessible from the selected car via links, so may be relevant.
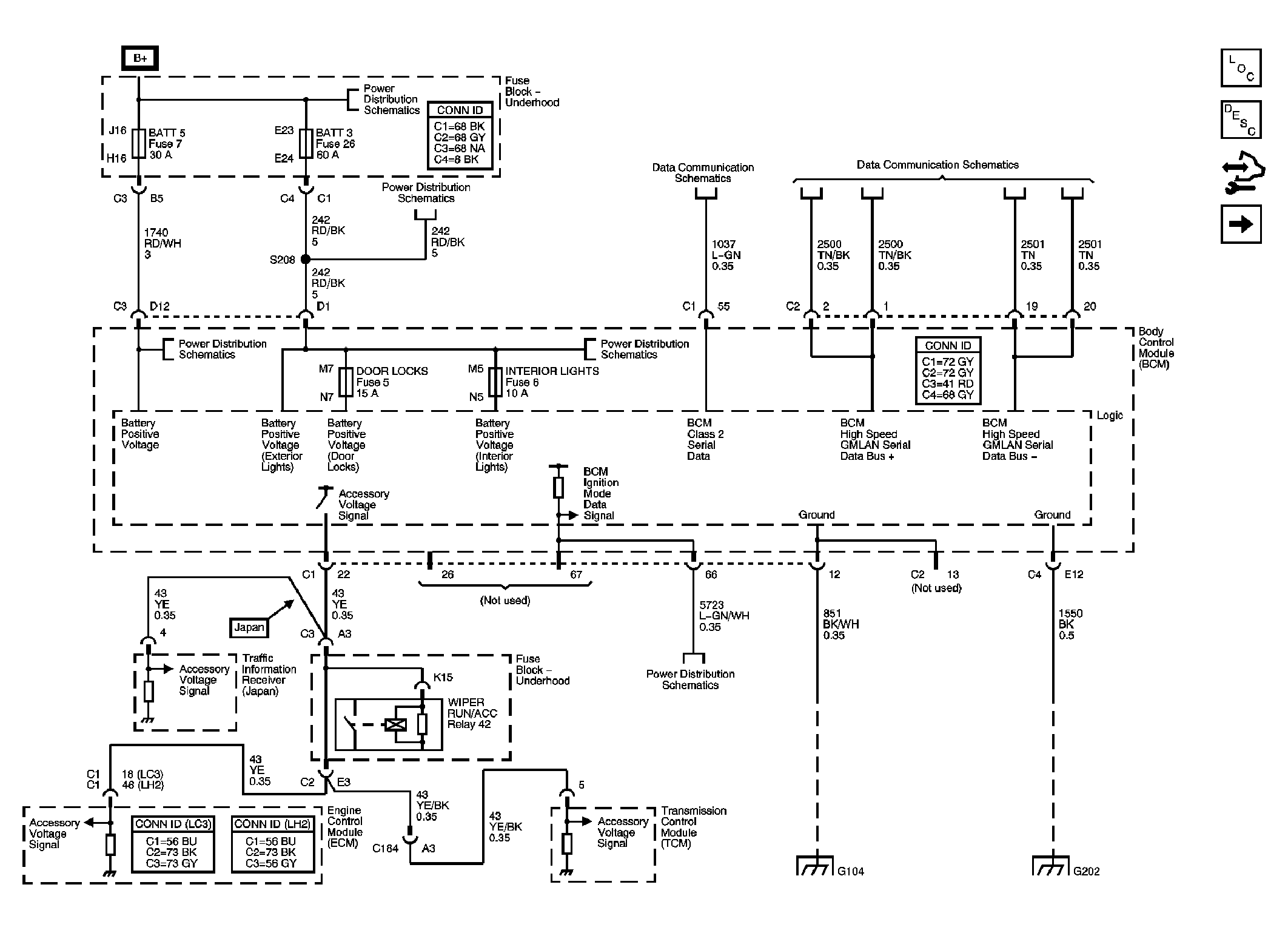
Fig 1: Power, Ground & DLC Schematic
GM1757488Courtesy of GENERAL MOTORS CORP.
Fig 2: Headlights/DRL & Exterior Lights References Schematic
GM1757490Courtesy of GENERAL MOTORS CORP.
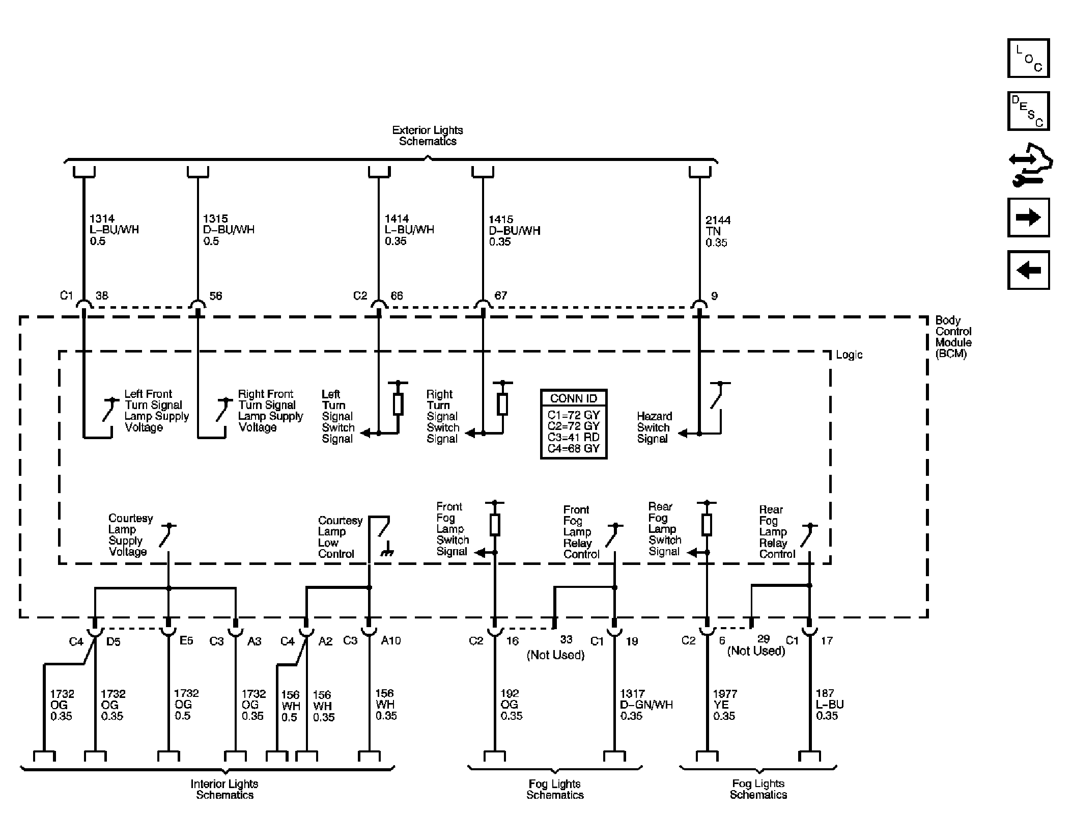
Fig 3: Exterior Lights Continued, Interior Lights & Fog Lights References Schematic
GM1757492Courtesy of GENERAL MOTORS CORP.
Fig 4: Other Subsystem References Schematic
GM1757495Courtesy of GENERAL MOTORS CORP.