LEMON Manuals: Even more car manuals for everyone: 1960-2025
Home >> GMC >> 2007 >> Acadia SLE, AWD >> Repair and Diagnosis >> External Pages >> Different car >> Section 638 (Data Communication System) >> Schematic and Routing Diagrams >> Body Control System Schematics
April 5, 2026: LEMON Manuals is launched! Read the announcement.

Body Control System Schematics

WARNING: This page is about a different car, the 2008 Saturn Outlook, 2008 GMC Acadia, and 2008 Buick Enclave. However, it is still accessible from the selected car via links, so may be relevant.
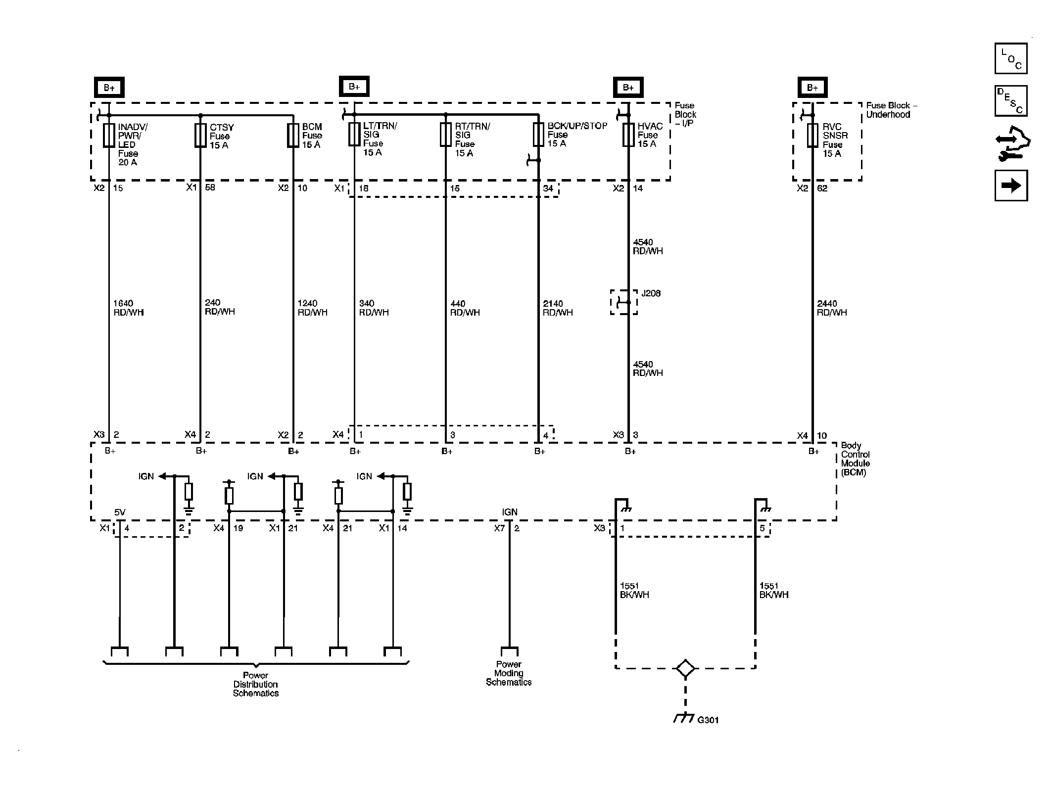
Fig 1: Module Power, Ground, and References to Power Distribution and Power Moding
GM1883264Courtesy of GENERAL MOTORS CORP.
Fig 2: Subsystem References 1 of 3
GM1883265Courtesy of GENERAL MOTORS CORP.
Fig 3: Subsystem References 2 of 3
GM1883266Courtesy of GENERAL MOTORS CORP.
Fig 4: Subsystem References 3 of 3
GM1883267Courtesy of GENERAL MOTORS CORP.