LEMON Manuals: Even more car manuals for everyone: 1960-2025
Home >> GMC >> 2014 >> Terrain SLE, 4D Utility >> Repair and Diagnosis >> External Pages >> Different car >> Section 45 (Keyless Entry System And Remote Functions) >> Schematic and Routing Diagrams >> Remote Function Schematics
April 5, 2026: LEMON Manuals is launched! Read the announcement.

Remote Function Schematics

WARNING: This page is about a different car, the 2010 GMC Terrain and 2010 Chevrolet Equinox. However, it is still accessible from the selected car via links, so may be relevant.
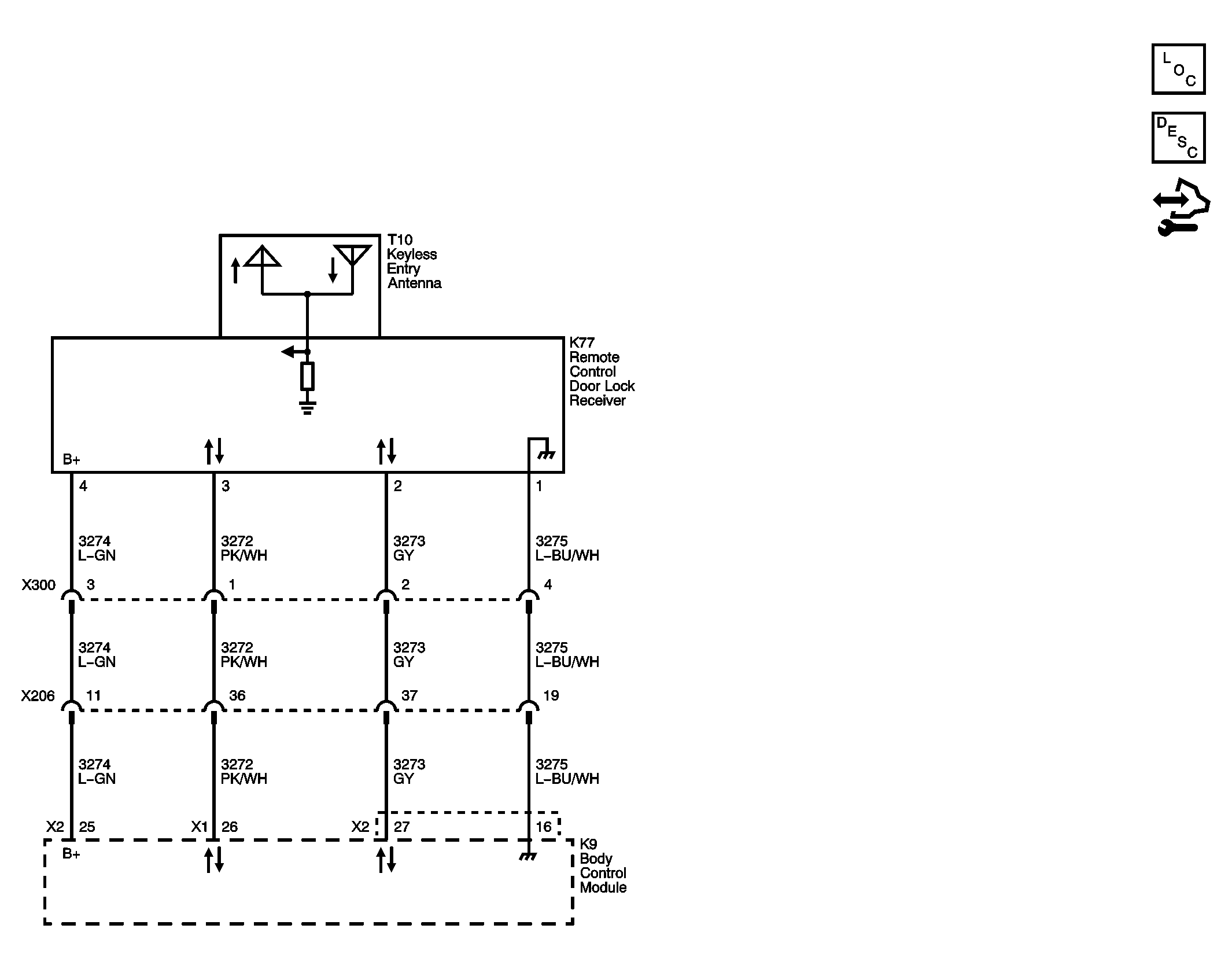
Fig 1: View Of Remote Function Schematic
GM2233277Courtesy of GENERAL MOTORS CORP.