LEMON Manuals: Even more car manuals for everyone: 1960-2025
Home >> Hummer >> 2010 >> H3T Base, Standard >> Repair and Diagnosis >> External Pages >> Different car >> Section 37 (Antilock Brake System With Traction Control System & Stability Control System) >> Schematic and Routing Diagrams >> Antilock Brake System Schematics
April 5, 2026: LEMON Manuals is launched! Read the announcement.

Antilock Brake System Schematics

WARNING: This page is about a different car, the 2010 GMC Canyon and 2010 Chevrolet Colorado. However, it is still accessible from the selected car via links, so may be relevant.
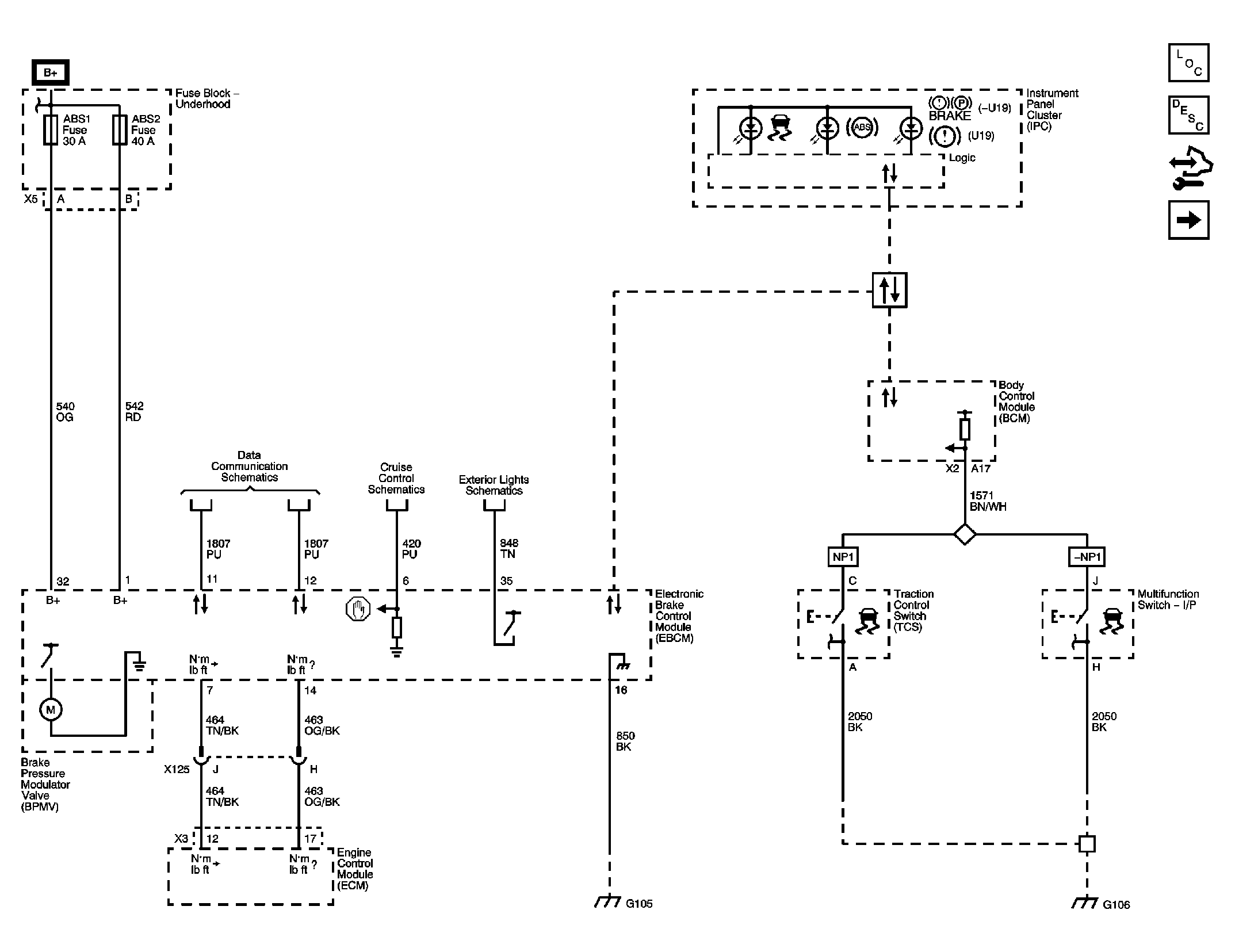
Fig 1: Power, Ground, Serial Data, Traction Control, and Vehicle Inputs
GM2242654Courtesy of GENERAL MOTORS CORP.
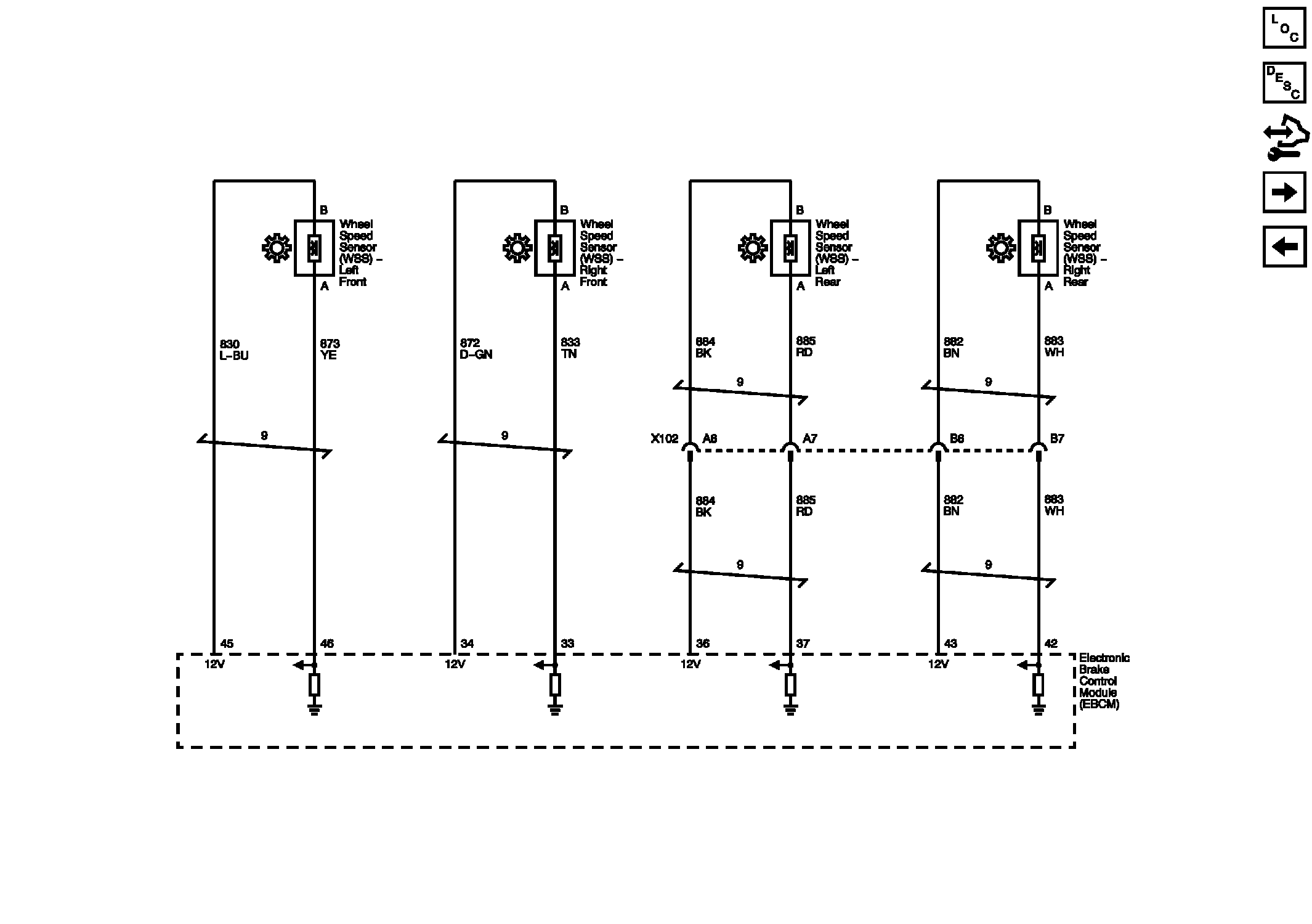
Fig 2: Wheel Speed Signals
GM2242655Courtesy of GENERAL MOTORS CORP.
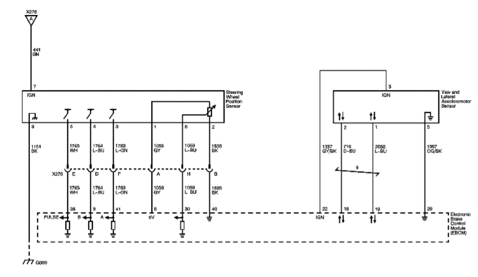
Fig 3: Vehicle Stability
G00599668Courtesy of GENERAL MOTORS CORP.