LEMON Manuals: Even more car manuals for everyone: 1960-2025
Home >> Infiniti >> 2004 >> FX45 >> Repair and Diagnosis >> Engine Performance >> Engine Control System >> DTC P1102 MAF Sensor >> Diagnostic Procedure
April 5, 2026: LEMON Manuals is launched! Read the announcement.

Diagnostic Procedure

  1. Check Ground Connections 
    1. Turn ignition switch OFF.
    2. Loosen and retighten three ground screws on the body. See Figure .

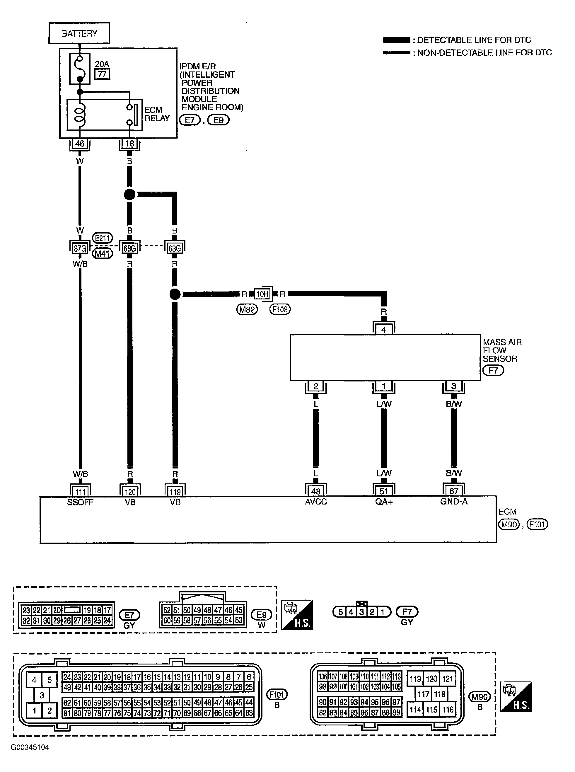
      Refer to GROUND INSPECTION  .

    OK or NG

    1. OK: go to 2.
    2. NG: Repair or replace ground connections.

  2. Check MAF Sensor Power Supply Circuit 
    1. Disconnect mass air flow (MAF) sensor harness connector.
    2. Turn ignition switch ON.

      For mass air flow sensor & intake air temperature sensor location, see Figure .

    3. Check voltage between MAF sensor terminals 2, 4 and ground with CONSULT-II or tester.
      Fig 1: MAF Sensor Terminals 2 & 4 Specifications
      G00345108Courtesy of NISSAN MOTOR CO., U.S.A.

    OK or NG

    1. OK: go to  4 .
    2. NG: go to 3.
      Fig 2: Checking Voltage Between MAF Sensor Terminals 2, 4 & Ground (W/DVOM)
      G00345109Courtesy of NISSAN MOTOR CO., U.S.A.

  3. Detect Malfunctioning Part 

    Check the following.

    • Harness connectors E211, M41
    • Harness connectors M82, F102
    • Harness for open or short between IPDM E/R and mass air flow sensor
    • Harness for open or short between mass air flow sensor and ECM
      1. Repair open circuit or short to ground or short to power in harness or connectors.

  4. Check MAF Sensor Ground Circuit For Open And Short 
    1. Turn ignition switch OFF.
    2. Disconnect ECM harness connector.
    3. Check harness continuity between MAF sensor terminal 3 and ECM terminal 67. Refer to wiring diagram. See Figure .
      1. Continuity should exist  .
    4. Also check harness for short to ground and short to power.

    OK or NG

    1. OK: go to 5.
    2. NG: Repair open circuit or short to ground or short to power in harness or connectors.

  5. Check MAF Sensor Input Signal Circuit For Open And Short 
    1. Check harness continuity between MAF sensor terminal 1 and ECM terminal 51.

      Refer to wiring diagram. See Figure .

      1. Continuity should exist  .
    2. Also check harness for short to ground and short to power.

    OK or NG

    1. OK: go to 6.
    2. NG: Repair open circuit or short to ground or short to power in harness or connectors.

  6. Check Mass Air Flow Sensor 

    Refer to COMPONENT INSPECTION  .

    OK or NG

    1. OK: go to 7.
    2. NG: Replace mass air flow sensor.

  7. Check Intermittent Incident 

    Refer to TROUBLE DIAGNOSIS FOR INTERMITTENT INCIDENT  .

    1. Inspection end