LEMON Manuals: Even more car manuals for everyone: 1960-2025
Home >> Kia >> 2012 >> Optima LX, Automatic Trans >> Repair and Diagnosis >> External Pages >> Different variant/trim >> Section 40 (Body Control Module (BCM) - HEV) >> Description and Operation >> Function >> Wiper Control >> Washer Control Coupled With Wiper
April 5, 2026: LEMON Manuals is launched! Read the announcement.

Washer Control Coupled With Wiper

WARNING: This page is about a different variant/trim than selected.
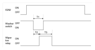
Fig 1: Washer Control Communication Diagram (Coupled With Wiper)
G08309141Courtesy of KIA MOTORS AMERICA, INC.
  1. Under IGN2 = ON, wiper LOW relay is turned ON after T2 from Washer switch ON if washer switch is ON for T1 and wiper LOW relay is turned OFF after T3.
    Fig 2: Ignition 2, Washer Switch And Wiper Low Relay Blinking Pattern
    G08309142Courtesy of KIA MOTORS AMERICA, INC.

    T1: 0.06s~0.2s, T2: 0.3s ±0.1s, T3: 0.7s ±0.1s

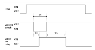
  2. Under IGN2 switch ON, wiper LOW relay is turned ON after T2 from Washer switch ON if washer switch is ON for at least T1, and wiper LOW relay is turned OFF after T3 from the moment that Washer switch is turned OFF.
    Fig 3: Ignition 2, Washer Switch And Wiper Low Relay Blinking Pattern (Washer Switch Turned OFF)
    G08309143Courtesy of KIA MOTORS AMERICA, INC.

    T1: 0.2s(MIN), T2: 0.3s ±0.1s

    T3: 2.5s~3.8s(2~3 Turn)

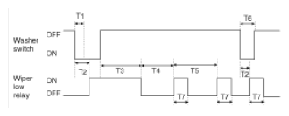
  3. Operation in Item (2) is performed if Washer switch is ON for at least T1 during WIPER operation with Wiper int switch. Operation in Item (1) is performed if Washer switch is ON for T6.
    Fig 4: Washer Switch And Wiper Low Relay Blinking Pattern
    G08309144Courtesy of KIA MOTORS AMERICA, INC.

    T1: 0.2s(MIN), T2: 0.3s ±0.1s

    T3: 2.5s~3.8s(2~3 Turn), T4: T5 - 0.7s

    T5: INT TIME, T6: 0.06s ~0.2s, T7: 0.7s ±0.1s

  4. Operation is cancelled in case of IGN OFF during T3.
  5. Give priority to WASHER interlocking WIPER than Speed sensing INT WIPER function.
  6. Washer switch signal input shall be ignored at start-up (IGN1 ON & IGN2 OFF states).
  7. Switch ON time includes chattering time