LEMON Manuals: Even more car manuals for everyone: 1960-2025
Home >> Lincoln >> 2011 >> Navigator 4WD V8-5.4L >> Repair and Diagnosis >> Relays and Modules >> Relays and Modules - Accessories and Optional Equipment >> Communications Control Module >> Service and Repair >> Removal and Replacement >> Audio Digital Signal Processing (DSP) Module
April 5, 2026: LEMON Manuals is launched! Read the announcement.

Audio Digital Signal Processing (DSP) Module




Audio Digital Signal Processing (DSP) Module

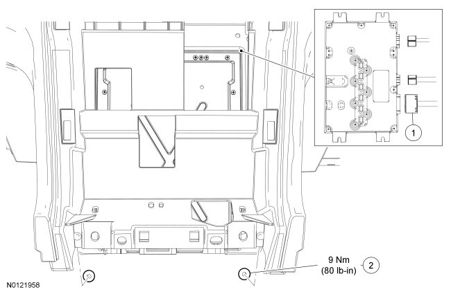
Audio Digital Signal Processing (DSP) Module Lower Attachment









Audio DSP Module Upper Attachment









Audio DSP Module Removal Routing









Removal and Installation

1. NOTE: Module configuration is required when a new audio Digital Signal Processing (DSP) module is being installed.

Upload the audio DSP module configuration information to the scan tool. For additional information, refer to Programmable Module Installation (PMI) in Module Configuration Programmable Module Installation (PMI).

2. Remove the Audio Control Module (ACM). For additional information, refer to Audio Control Module (ACM) Audio Control Module (ACM).

3. Remove the necessary attachments and move the center console 5 cm (2.0 in) towards the rear of the vehicle. For additional information, refer to Instrument Panel and Console Console - Front, Floor Console - Front, Floor.

4. Disconnect the audio DSP module electrical connectors.

5. Remove the 2 lower audio DSP module nuts.
- To install, tighten to 9 Nm (80 lb-in).

6. NOTICE: The audio Digital Signal Processing (DSP) module is heavy. Be sure to support the amplifier during removal, or damage to the vehicle may occur.

Remove the 2 upper audio DSP module nuts.

- To install, tighten to 9 Nm (80 lb-in).

7. Remove the audio DSP module.
- Route the audio DSP module down and towards the passenger side of the vehicle.

8. To install, reverse the removal procedure.
- Download the configuration information to the audio DSP module. For additional information, refer to PMI in Module Configuration Programmable Module Installation (PMI).