LEMON Manuals: Even more car manuals for everyone: 1960-2025
Home >> Mitsubishi >> 2002 >> Lancer LS L4-2.0L SOHC >> Repair and Diagnosis >> Relays and Modules >> Relays and Modules - Powertrain Management >> Relays and Modules - Computers and Control Systems >> Engine Control Module >> Technical Service Bulletins >> ECM/PCM - Service Manual Corrections
April 5, 2026: LEMON Manuals is launched! Read the announcement.

ECM/PCM - Service Manual Corrections

NO.: TSB-02-13-008

DATE: May, 2002

MODEL: 2002 Lancer

SUBJECT:
CORRECTED ECM/PCM BACKUP POWER SUPPLY CIRCUITS (LANCER)
- SERVICE MANUAL REVISION

PURPOSE

This bulletin contains corrections to the backup power supply circuit for the engine control module (ECM) and powertrain control module (PCM). These corrections affect both the manual transmission (ECM) and automatic transmission (PCM) equipped vehicles.

Write the TSB revision number of this bulletin in the "TSB Revision" box at the bottom of the affected service manual page.

AFFECTED VEHICLES

2002 Lancer

AFFECTED SERVICE MANUALS

2002 Lancer Service Manual, Volume 1, Pages 13A-436, 427, 429, 501, 502, 507

2002 Lancer Service Manual, Volume 2, Pages 23A-232 through 235

2002 Lancer Service Manual, Volume 3, Pages 90-36, 37, 44, 45, 53

SERVICE MANUAL REVISIONS

2002 Lancer, Volume 1, Page 13A-426





Delete the indicated information and replace it with the new information in this bulletin.

2002 Lancer, Volume 1, Page 13A-426





Replace the deleted information from the original page with the new information shown.

2002 Lancer, Volume 1, Page 13A-427





Delete the indicated text and correct the illustrations as shown.

2002 Lancer, Volume 1, Page 13A-429





Correct the connector numbers as shown.

2002 Lancer, Volume 1, Page 13A-501





Delete the indicated information and replace it with the new information.

2002 Lancer, Volume 1, Page 13A-501





Replace the deleted information from the original page with the new information:

2002 Lancer, Volume 1, Page 13A-502





Delete the indicated illustrations.

2002 Lancer, Volume 1, Page 13A-507





Correct the connector number and fuse number as shown.

2002 Lancer, Volume 2, Page 23A-232





Delete the indicated information and replace it with the new information.

2002 Lancer, Volume 2, Page 23A-232





Replace the deleted information from the original page with the new information shown.

2002 Lancer, Volume 2, Page 23A-233





Delete the indicated illustrations.

2002 Lancer, Volume 2, Page 23A-234





Revise Step 3 as shown:

2002 Lancer, Volume 2, Page 23A-235





Revise Step 4 as shown:

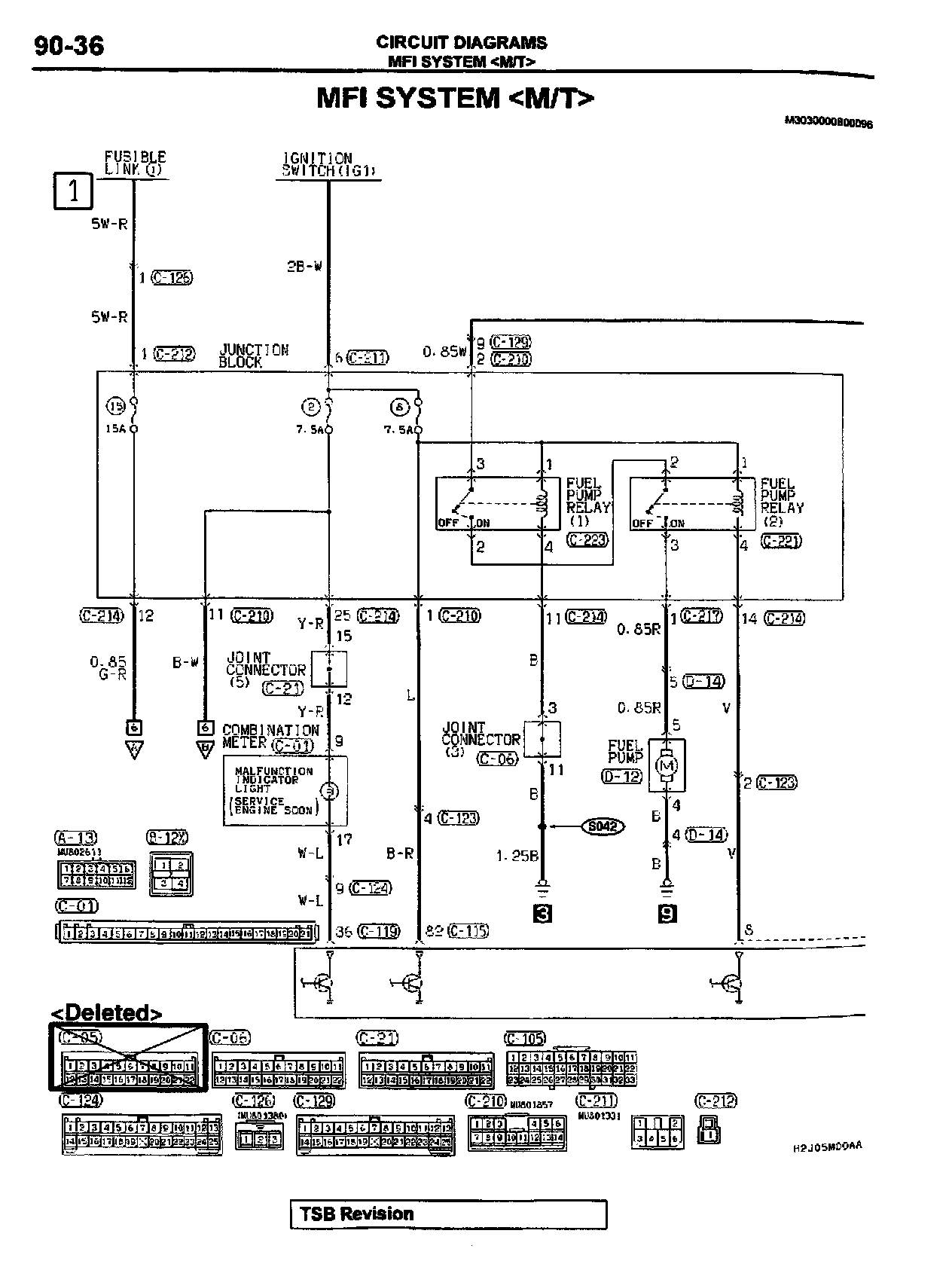
2002 Lancer, Volume 3, Page 90-36





Delete reference to connector 0-05 as shown:

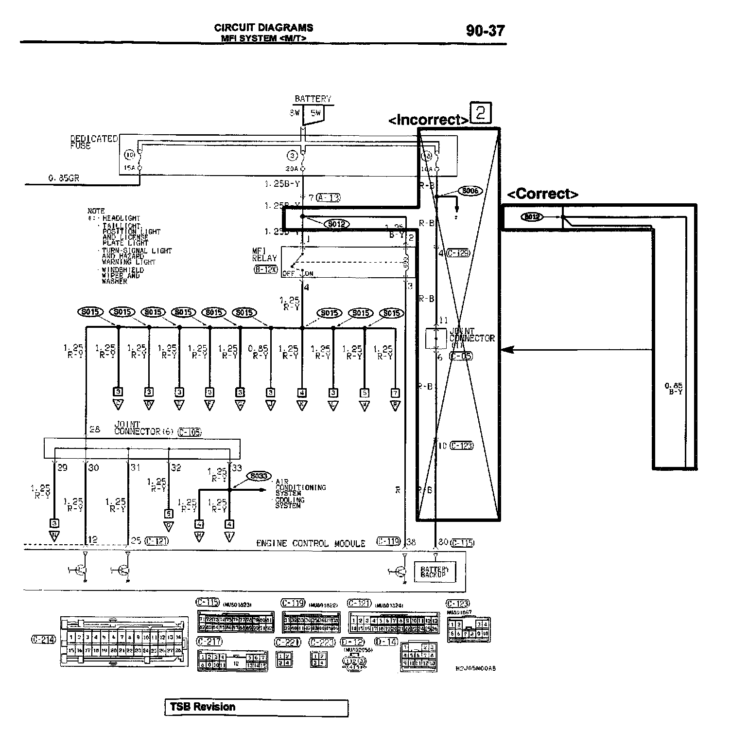
2002 Lancer, Volume 3, Page 90-37





Correct the circuit diagram as shown:

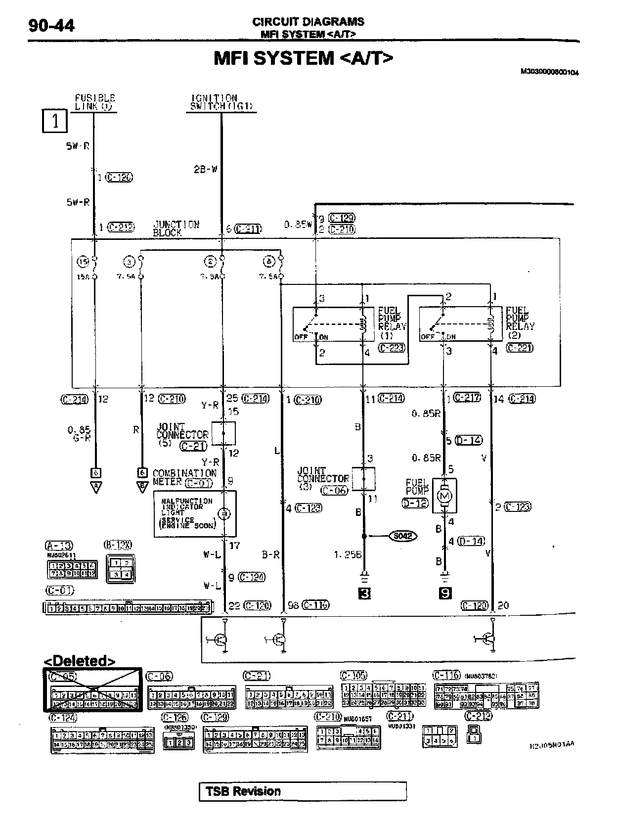
2002 Lancer, Volume 3, Page 90-44





Delete reference to connector C-05 as shown:

2002 Lancer, Volume 3, Page 90-45





Correct the circuit diagram as shown:

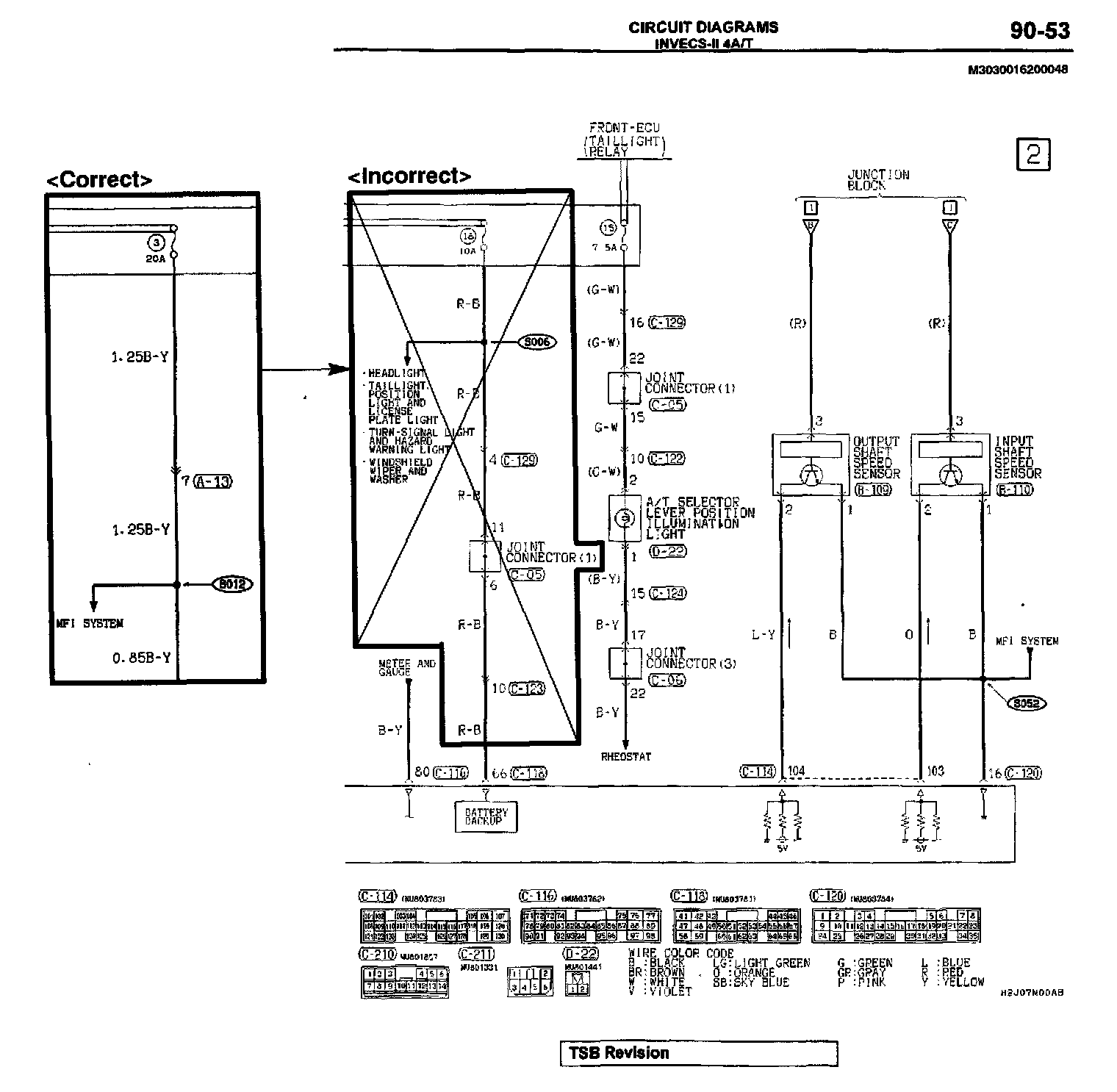
2002 Lancer, Volume 3, Page 90-53





Correct the circuit diagram as shown: