LEMON Manuals: Even more car manuals for everyone: 1960-2025
Home >> Mitsubishi >> 2004 >> Lancer Evolution >> Repair and Diagnosis >> External Pages >> Different car >> Section 21 (Auto-Cruise Control System) >> Auto-Cruise Control System Diagnosis >> Diagnostic Trouble Code Procedures >> DTC 17: Throttle Position Sensor and Idle Position Signal System >> Notes
April 5, 2026: LEMON Manuals is launched! Read the announcement.

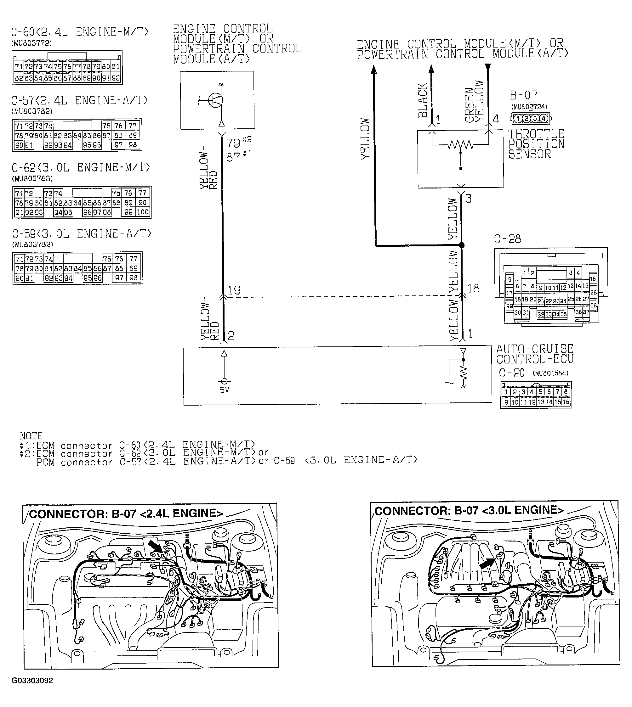
DTC 17: Throttle Position Sensor and Idle Position Signal System: Notes

WARNING: This page is about a different car, the 2004 Mitsubishi Eclipse. However, it is still accessible from the selected car via links, so may be relevant.
Fig 1: Throttle Position Sensor System Circuit (1 Of 2)
G03303092Courtesy of MITSUBISHI MOTOR SALES OF AMERICA.
Fig 2: Throttle Position Sensor System Circuit (2 Of 2)
G03303093Courtesy of MITSUBISHI MOTOR SALES OF AMERICA.