LEMON Manuals: Even more car manuals for everyone: 1960-2025
Home >> Oldsmobile >> 1974 >> Toronado >> Repair and Diagnosis >> General Information >> Basic Trouble Shooting >> Automatic Temperature Control - Testing >> Programmer Servicing >> Programmer Component Replacement >> Blower Wiper Arm or Feedback Potentiometer
April 5, 2026: LEMON Manuals is launched! Read the announcement.

Blower Wiper Arm or Feedback Potentiometer

Remove vacuum valve and spring, and vacuum motor and power spring (see above). Lift blower resistor wiper arm and feedback potentiometer arm off the blower resistor circuit board

CAUTION: (Take care not to lose single ball bearing located in bearing cup on resistor board).

Separate blower resistor wiper arm from feedback potentiometer arm

CAUTION: (Take care not to lose two single ball bearings and make certain they are properly located in bearing cups on wiper arm).

Install these parts by reversing removal procedure and make certain that all ball bearings are properly located in bearing cups.

Fig 1: BLOWER WIPER ARM & FEEDBACK POTENTIOMETER REMOVAL
G09312469Courtesy of GENERAL MOTORS COMPANY
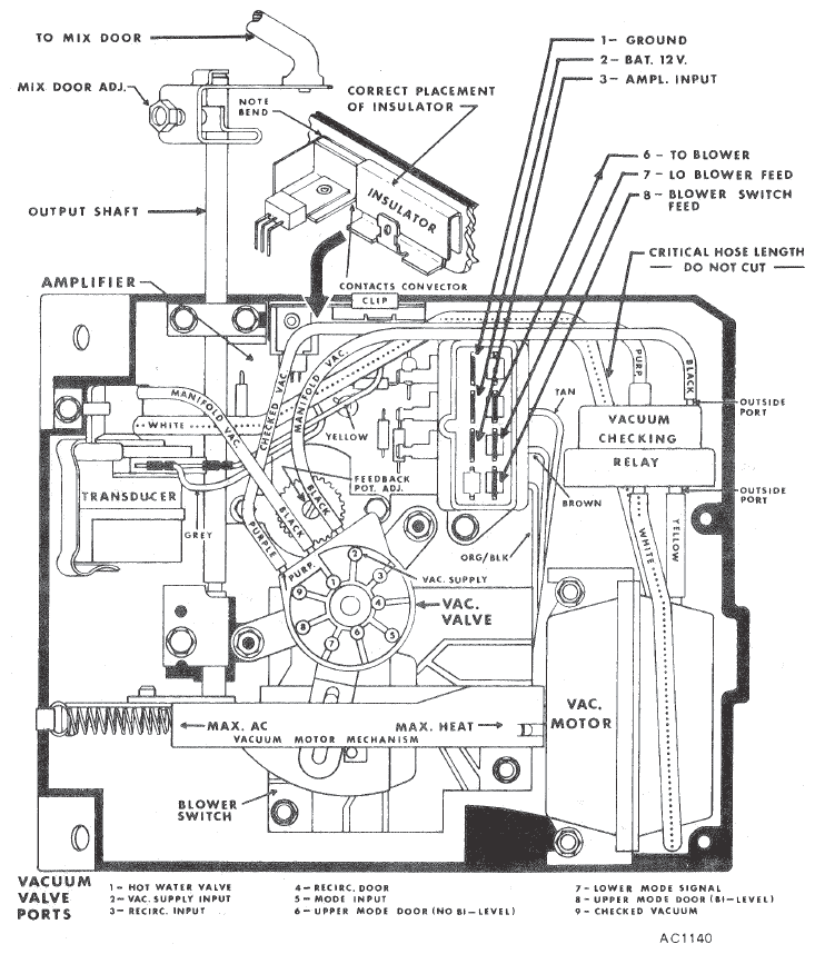
Fig 2: AUTOMATIC TEMPERATURE CONTROL PROGRAMMER ASSEMBLY
G09312470Courtesy of GENERAL MOTORS COMPANY