LEMON Manuals: Even more car manuals for everyone: 1960-2025
Home >> Oldsmobile >> 2003 >> Bravada AWD >> Repair and Diagnosis (Single Page) >> Body & Frame >> Windows >> Door System, Mirror System & Window System >> Schematic and Routing Diagrams >> Door Control Module Schematics >> Serial Data and Subsystem References
April 5, 2026: LEMON Manuals is launched! Read the announcement.

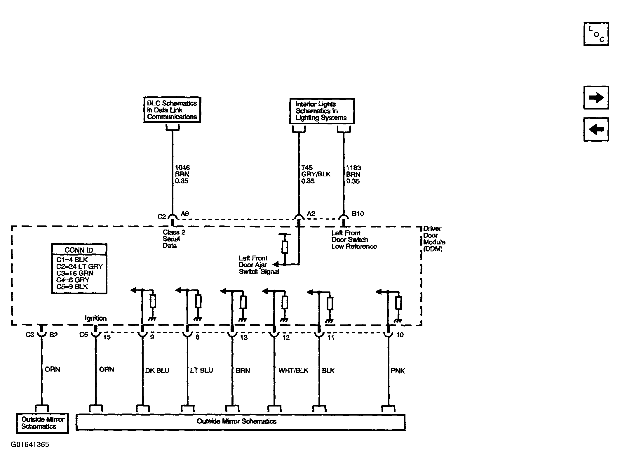
Serial Data and Subsystem References

Fig 1: Serial Data And Subsystem References
G01641365Courtesy of GENERAL MOTORS CORP.