LEMON Manuals: Even more car manuals for everyone: 1960-2025
Home >> Oldsmobile >> 2003 >> Bravada AWD >> Repair and Diagnosis >> External Pages >> Different car >> Section 1611 (Body Control System) >> Schematic and Routing Diagrams >> Body Control System Schematics
April 5, 2026: LEMON Manuals is launched! Read the announcement.

Body Control System Schematics

WARNING: This page is about a different car, the 2002 Oldsmobile Bravada, 2002 GMC Envoy XL, 2002 GMC Envoy, and 2002 Chevrolet TrailBlazer. However, it is still accessible from the selected car via links, so may be relevant.
Fig 1: Power & Ground Schematics
GM743538Courtesy of GENERAL MOTORS CORP.
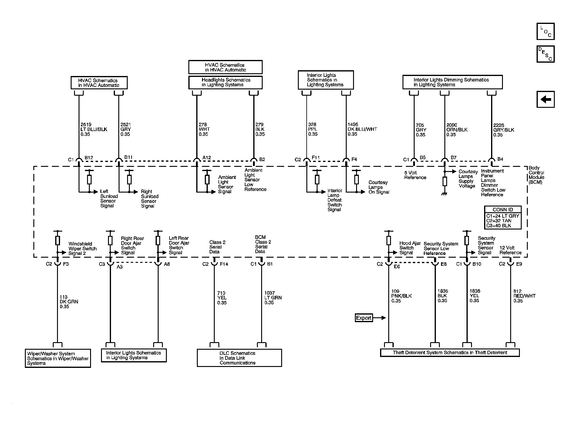
Fig 2: Controlled/Monitored Subsystem References Schematics - 1 Of 3
GM743539Courtesy of GENERAL MOTORS CORP.
Fig 3: Controlled/Monitored Subsystem References Schematics - 2 Of 3
GM743542Courtesy of GENERAL MOTORS CORP.
Fig 4: Controlled/Monitored Subsystem References Schematics - 3 Of 3
GM743537Courtesy of GENERAL MOTORS CORP.