LEMON Manuals: Even more car manuals for everyone: 1960-2025
Home >> Pontiac >> 2004 >> Aztek Base, AWD >> Repair and Diagnosis >> External Pages >> Different car >> Section 328 (Wiring Systems - Specifications, Component Views And Connector End Views) >> Schematic and Routing Diagrams >> Power Distribution Schematics
April 5, 2026: LEMON Manuals is launched! Read the announcement.

Power Distribution Schematics

WARNING: This page is about a different car, the 2004 Chevrolet Corvette. However, it is still accessible from the selected car via links, so may be relevant.
Fig 1: Fuse Block Schematic - Underhood Bussing (1 of 2)
GM689171Courtesy of GENERAL MOTORS CORP.
Fig 2: Fuse Block Schematic - Underhood Bussing (2 of 2)
GM689174Courtesy of GENERAL MOTORS CORP.
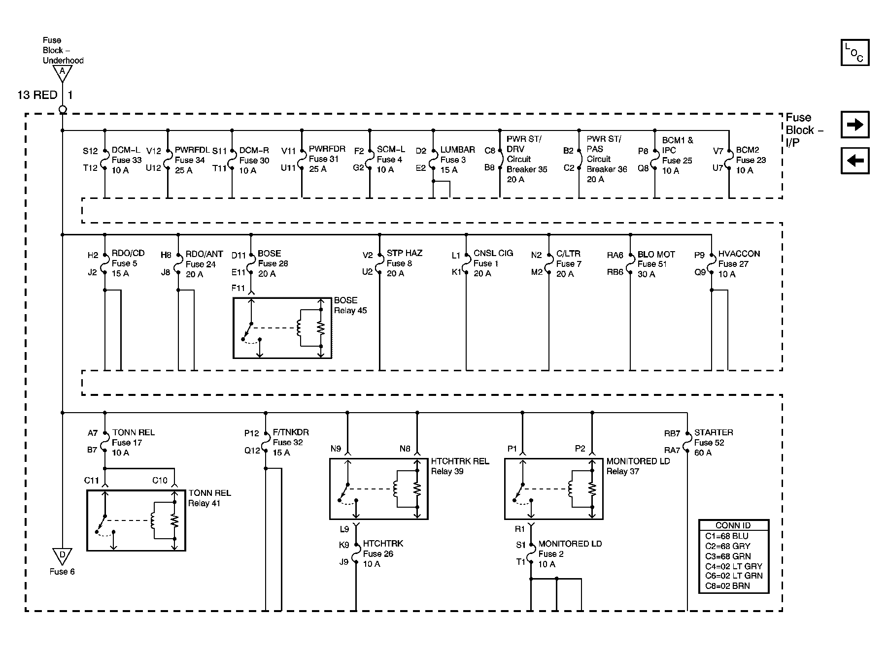
Fig 3: Fuse Block Schematic - I/P Bussing (1 of 2)
GM689178Courtesy of GENERAL MOTORS CORP.
Fig 4: Fuse Block Schematic - I/P Bussing (2 of 2)
GM689185Courtesy of GENERAL MOTORS CORP.
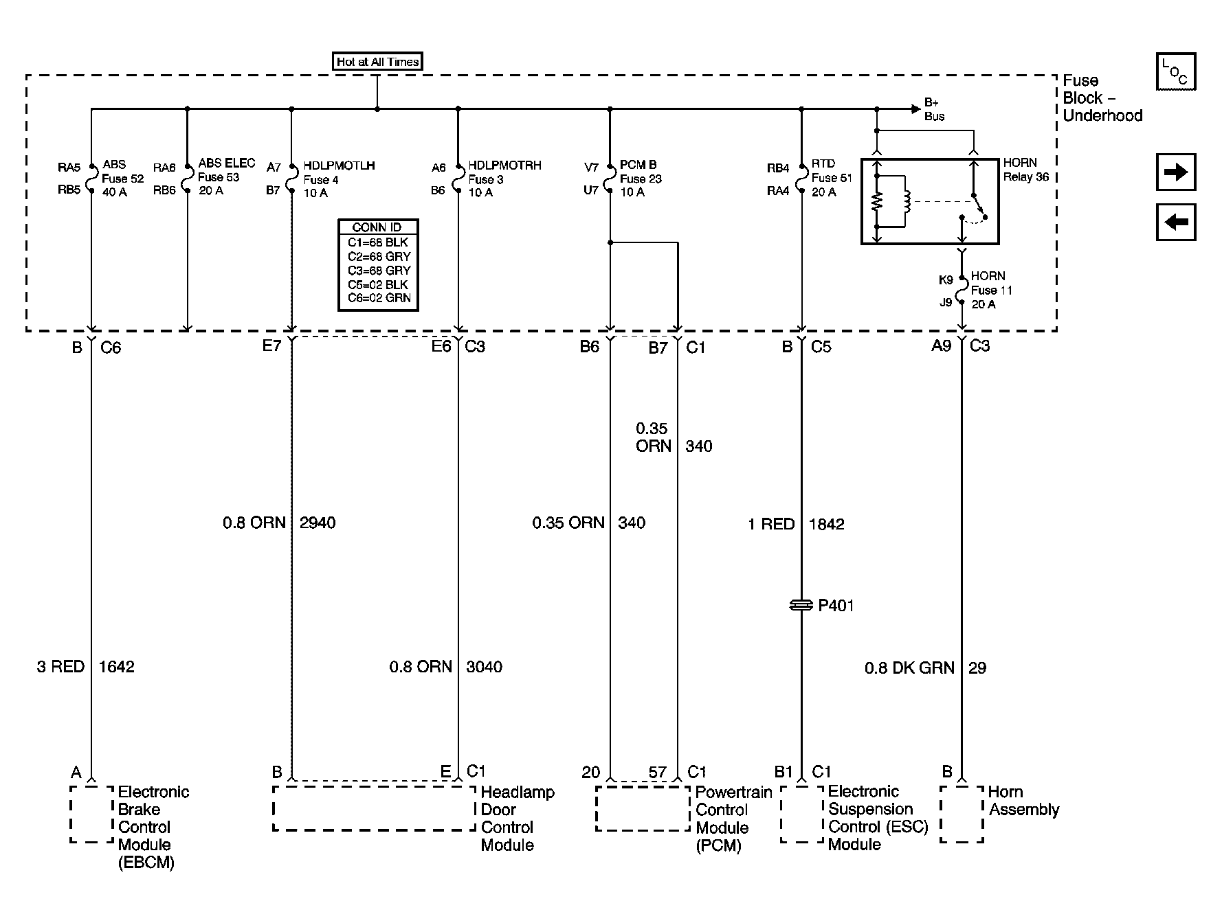
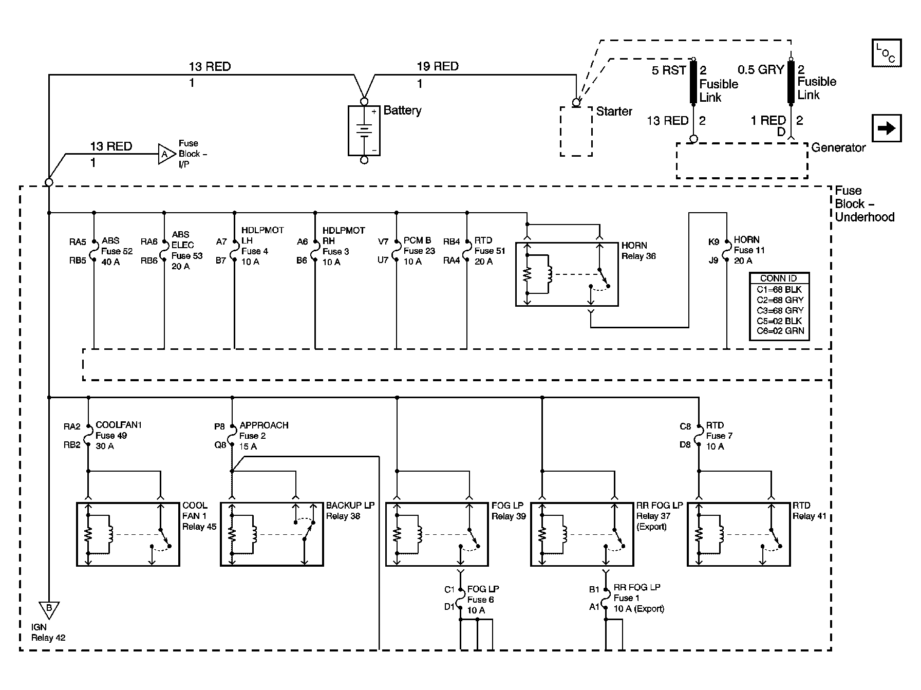
Fig 5: Fuse Block Schematic - Underhood Fuses 52, 53, 4, 3, 23, 51, 11 And Relay 36
GM689186Courtesy of GENERAL MOTORS CORP.
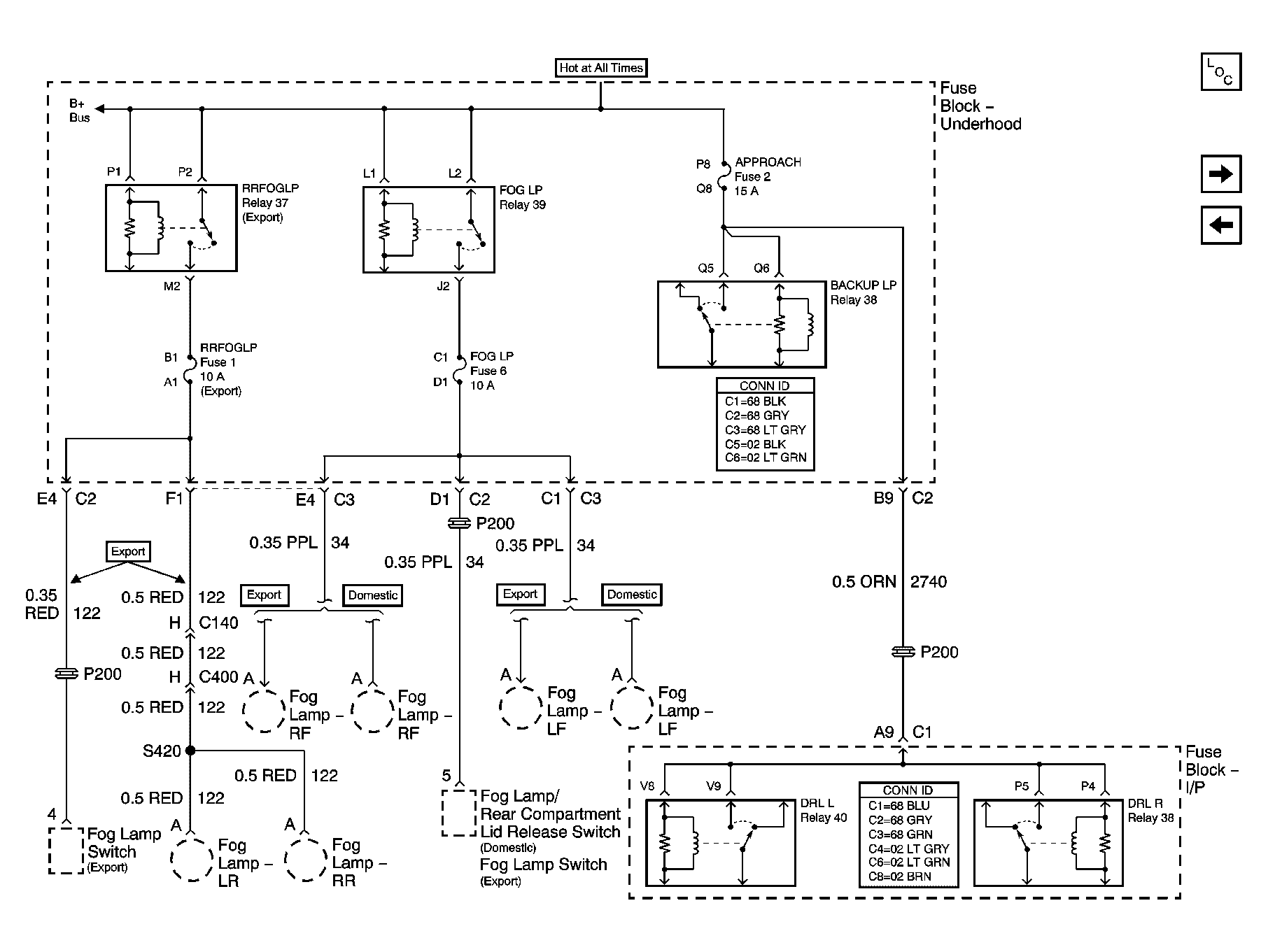
Fig 6: Fuse Block Schematic - Underhood Fuses 1, 6, 2 And Relays 37, 39, 38 And Instrument Panel Electrical Center Relays 40 And 38
GM689198Courtesy of GENERAL MOTORS CORP.
Fig 7: Fuse Block Schematic - Underhood Fuse 19 And Relay 33
GM689200Courtesy of GENERAL MOTORS CORP.
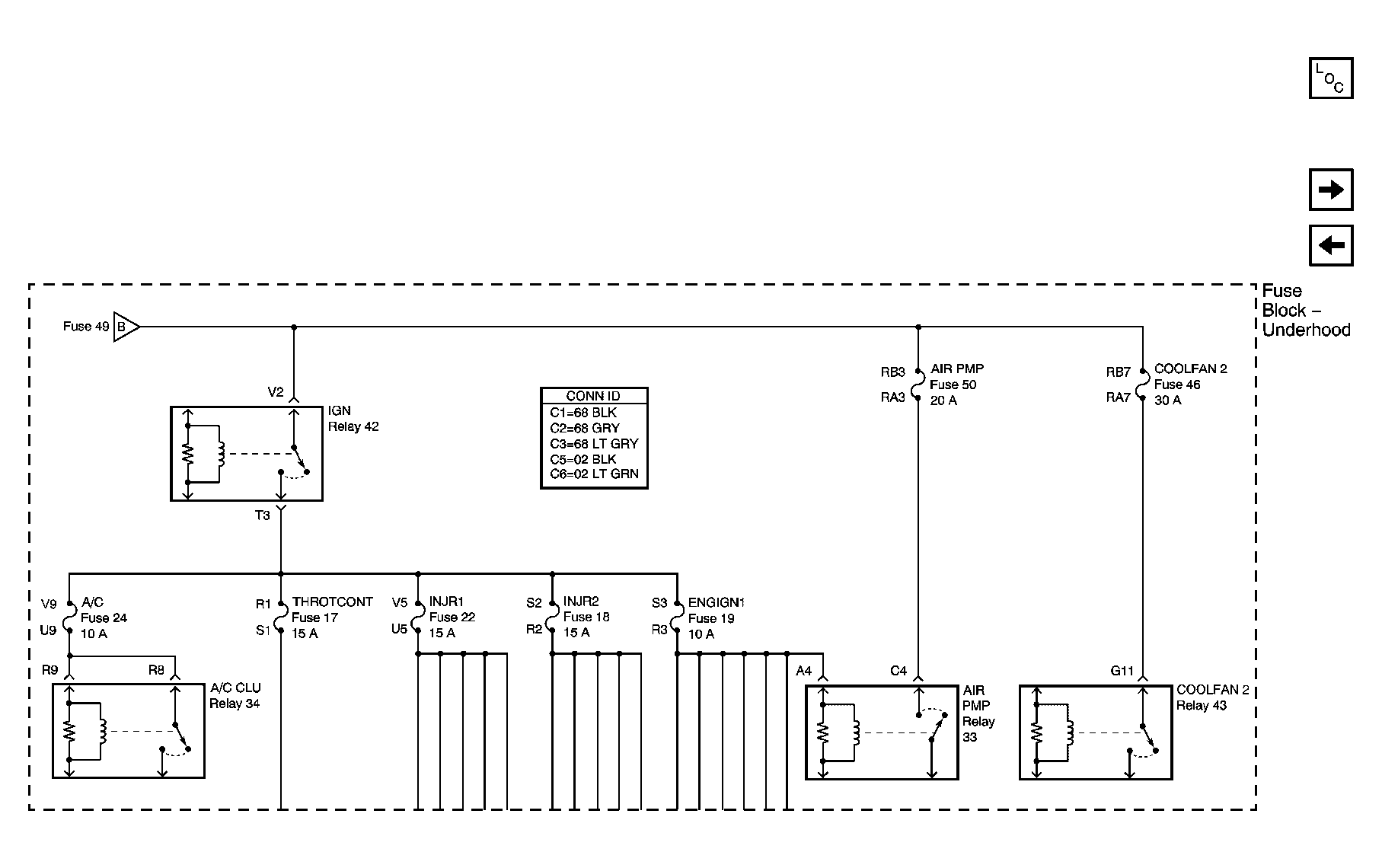
Fig 8: Fuse Block Schematic - Underhood Fuses 18, 17 And 22
GM689202Courtesy of GENERAL MOTORS CORP.
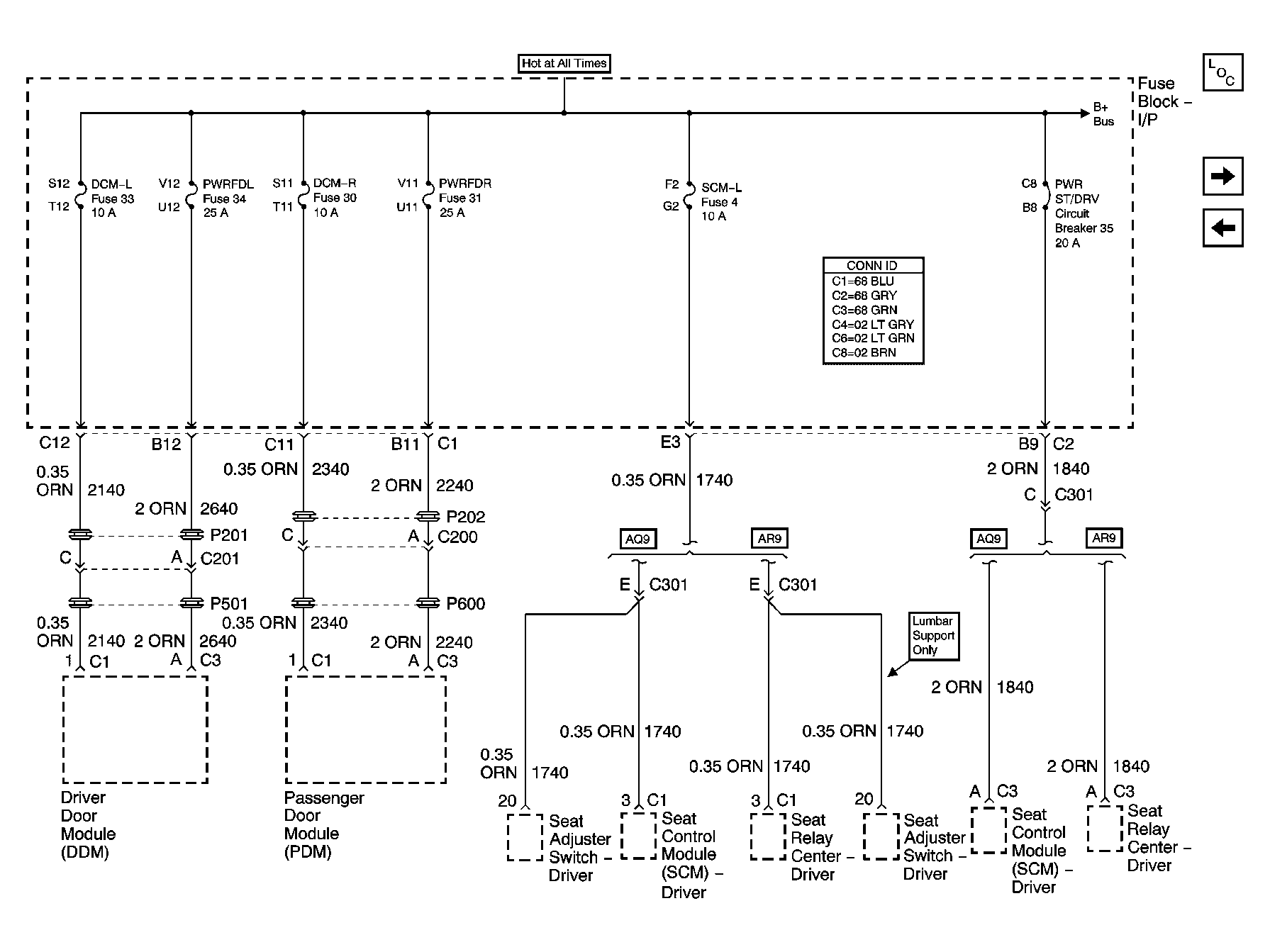
Fig 9: Fuse Block Schematic - I/P Fuses 33, 34, 30, 31, 4 And Circuit Breaker 35
GM689206Courtesy of GENERAL MOTORS CORP.
Fig 10: Fuse Block Schematic - I/P Fuses 3, 5, 24 And Circuit Breaker 36
GM689283Courtesy of GENERAL MOTORS CORP.
Fig 11: Fuse Block Schematic - I/P Fuses 51, 27, 8, 1 And 7
GM1221413Courtesy of GENERAL MOTORS CORP.
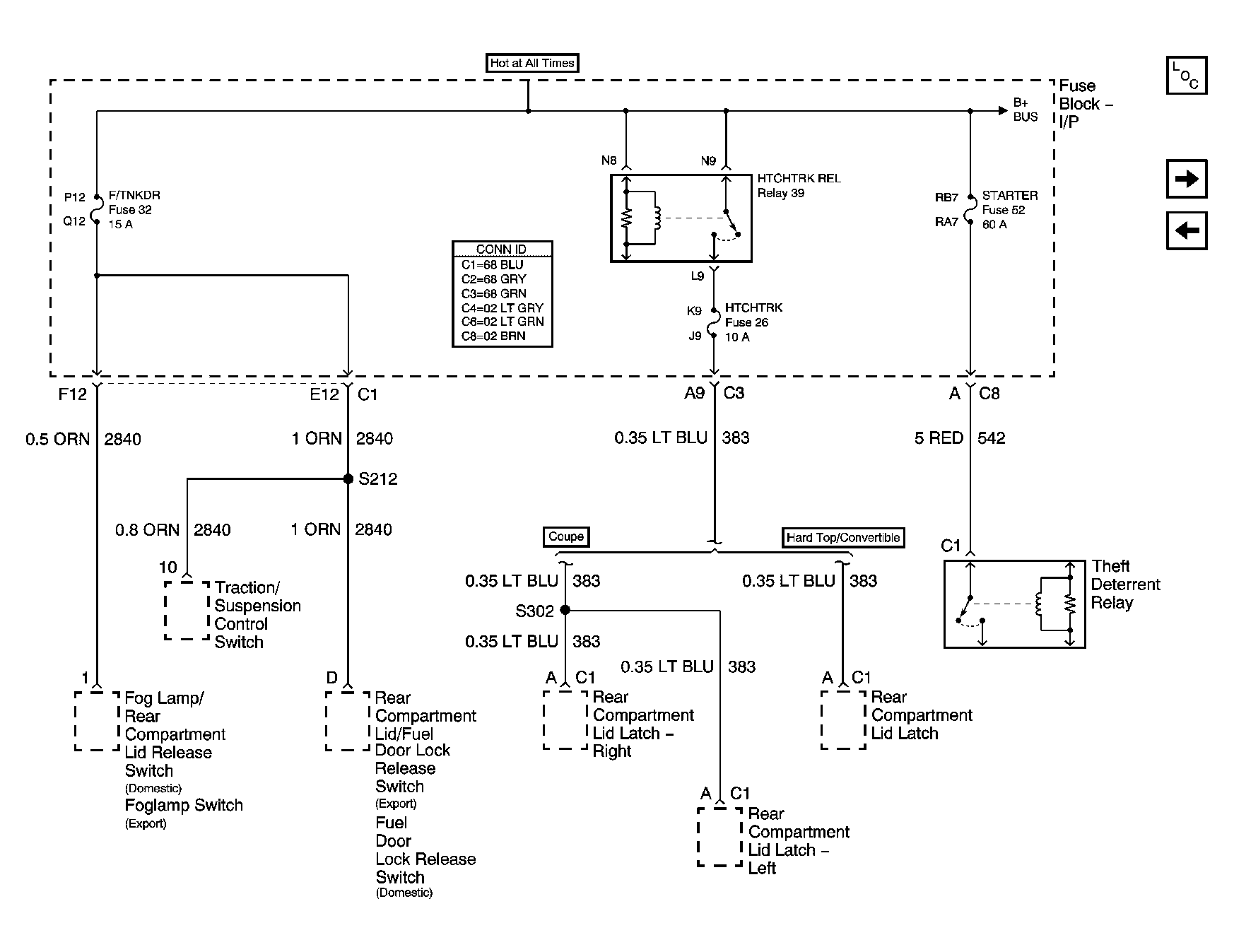
Fig 12: Fuse Block Schematic - I/P Fuses 32, 26, 52 And Relay 39
GM689807Courtesy of GENERAL MOTORS CORP.
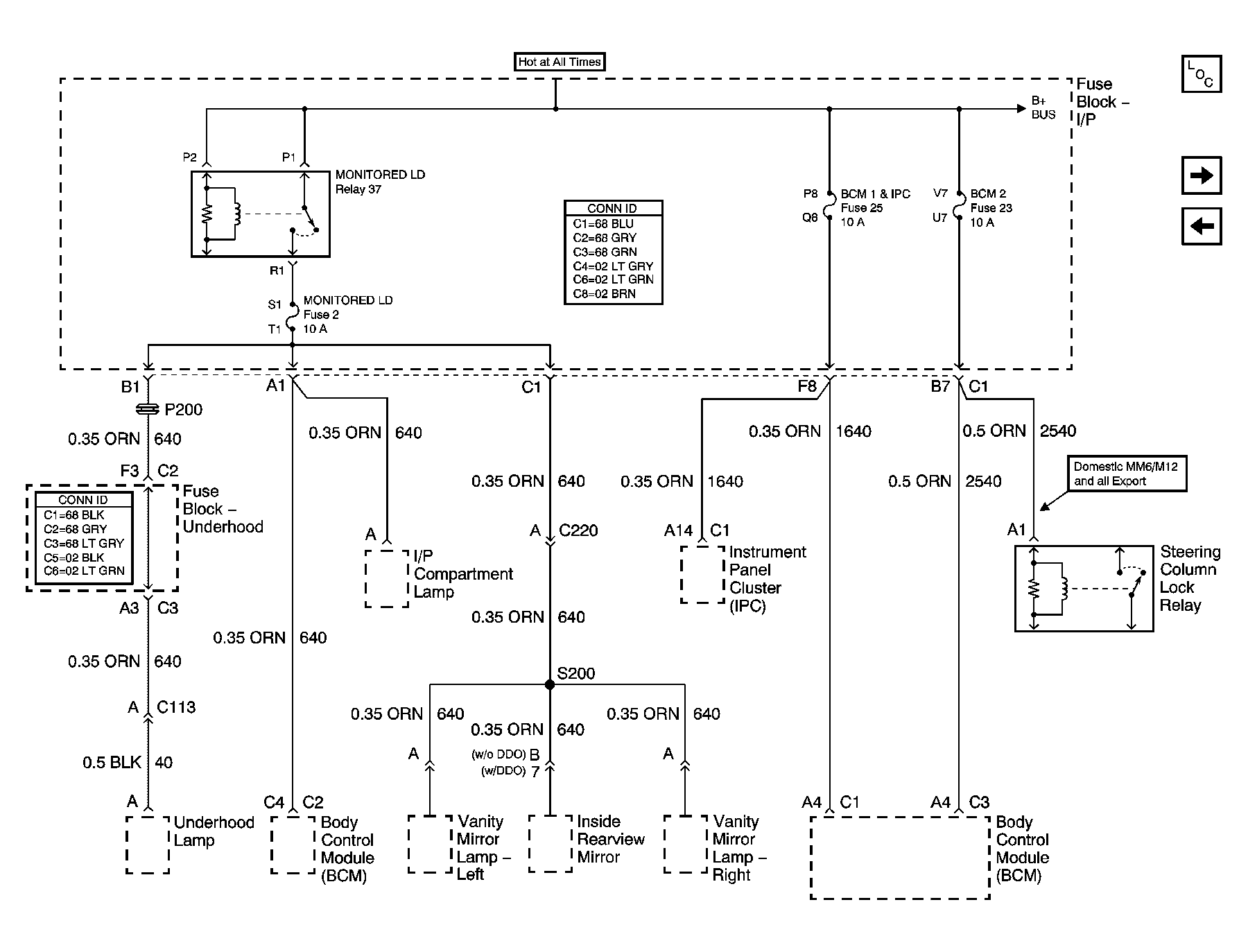
Fig 13: Fuse Block Schematic - I/P Fuses 2, 25, 23 And Relay 37
GM689812Courtesy of GENERAL MOTORS CORP.
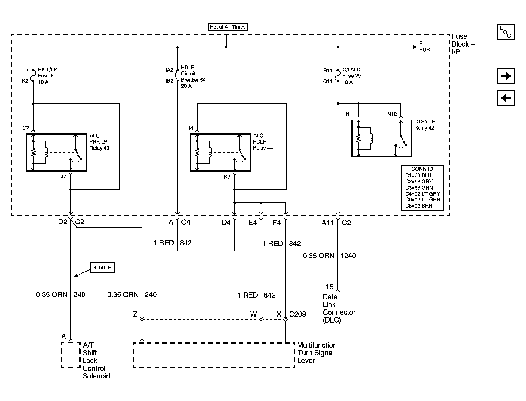
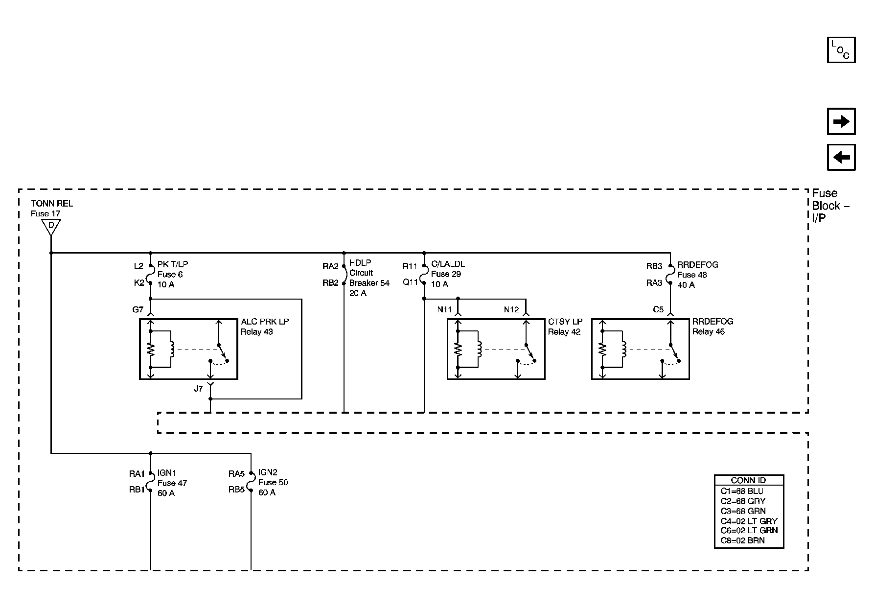
Fig 14: Fuse Block Schematic - I/P Fuses 6, 29, Circuit Breaker 54, Relays 43, 44 And 42
GM689820Courtesy of GENERAL MOTORS CORP.
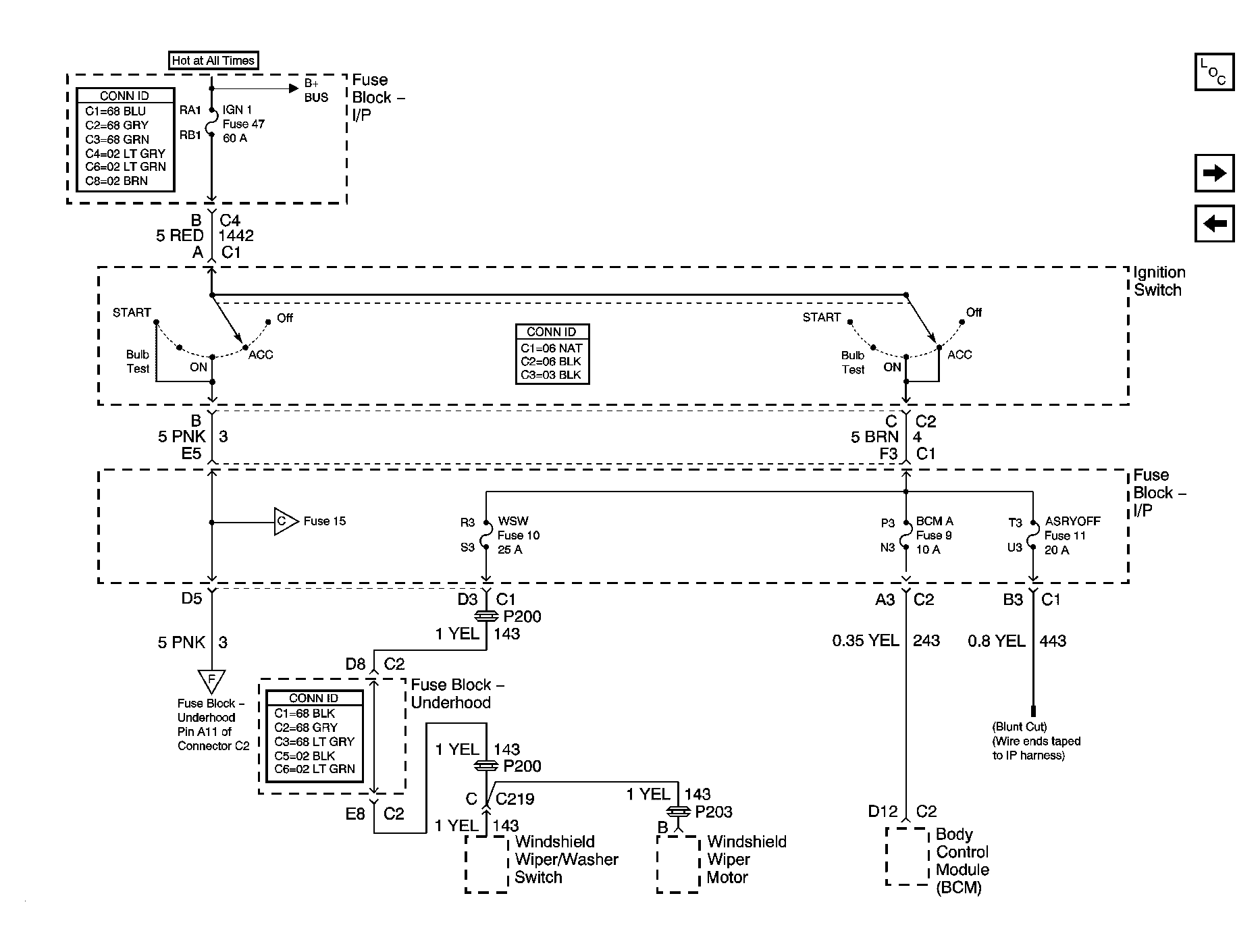
Fig 15: Fuse Block Schematic - I/P Fuses 47, 10, 9, And 11
GM1221423Courtesy of GENERAL MOTORS CORP.
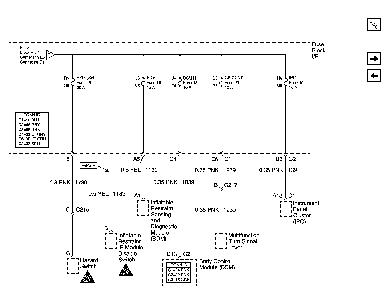
Fig 16: Fuse Block Schematic - I/P Fuses 15, 16, 13, 20 And 19
GM689826Courtesy of GENERAL MOTORS CORP.
Fig 17: Fuse Block Schematic - I/P Fuses 50, 14, 21, 22, 18 And Relay 44
GM690238Courtesy of GENERAL MOTORS CORP.
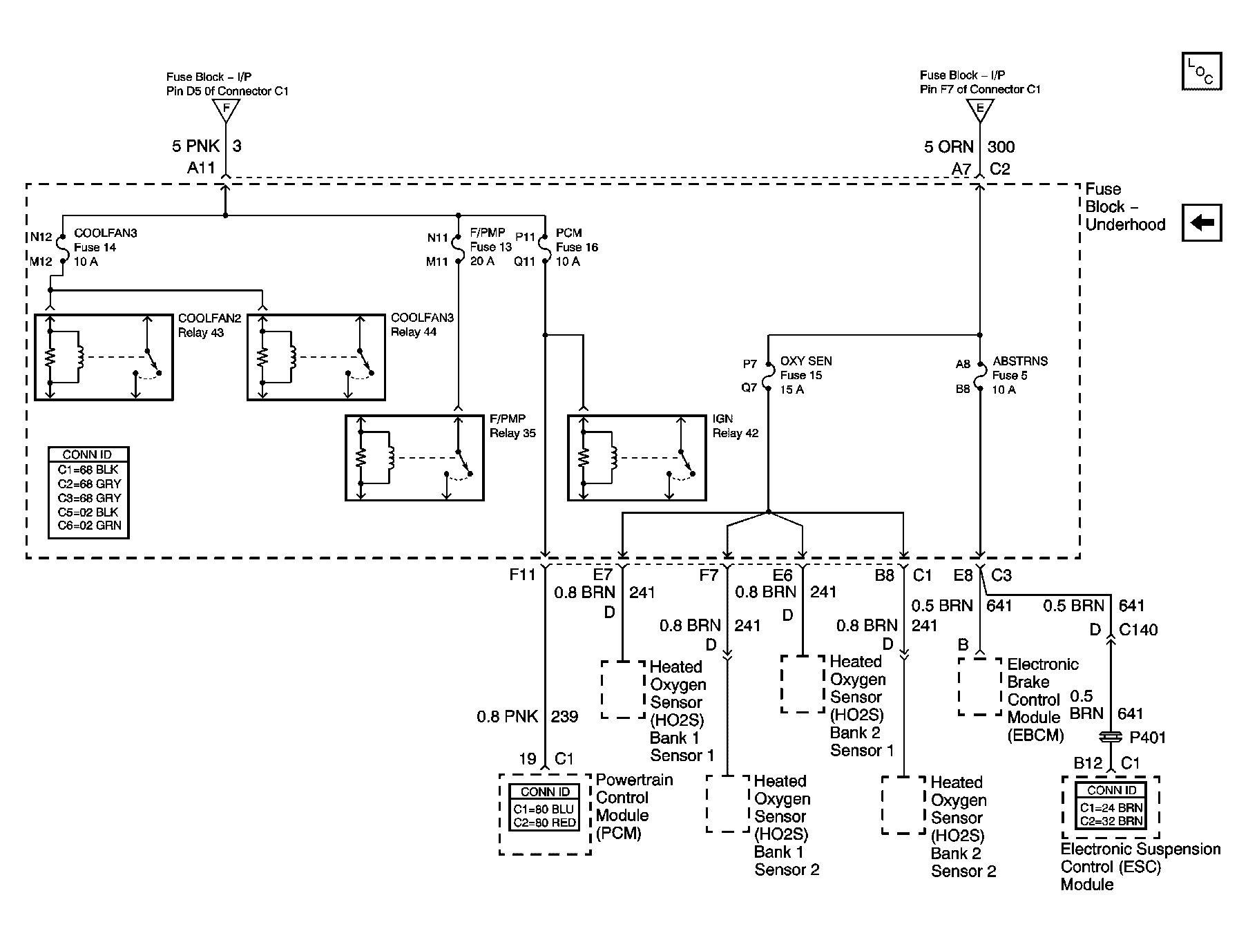
Fig 18: Fuse Block Schematic - Underhood Fuses 14, 13, 16, 15, 5 And Relays 43, 44, 35 And 42
GM690247Courtesy of GENERAL MOTORS CORP.