LEMON Manuals: Even more car manuals for everyone: 1960-2025
Home >> Pontiac >> 2007 >> G6 Base, 2.4 B >> Repair and Diagnosis >> External Pages >> Different car >> Section 2109 (Keyless Entry System And Remote Functions) >> Schematic Wiring Diagrams >> Remote Function Wiring Schematics >> Keyless Entry (without ATH)
April 5, 2026: LEMON Manuals is launched! Read the announcement.

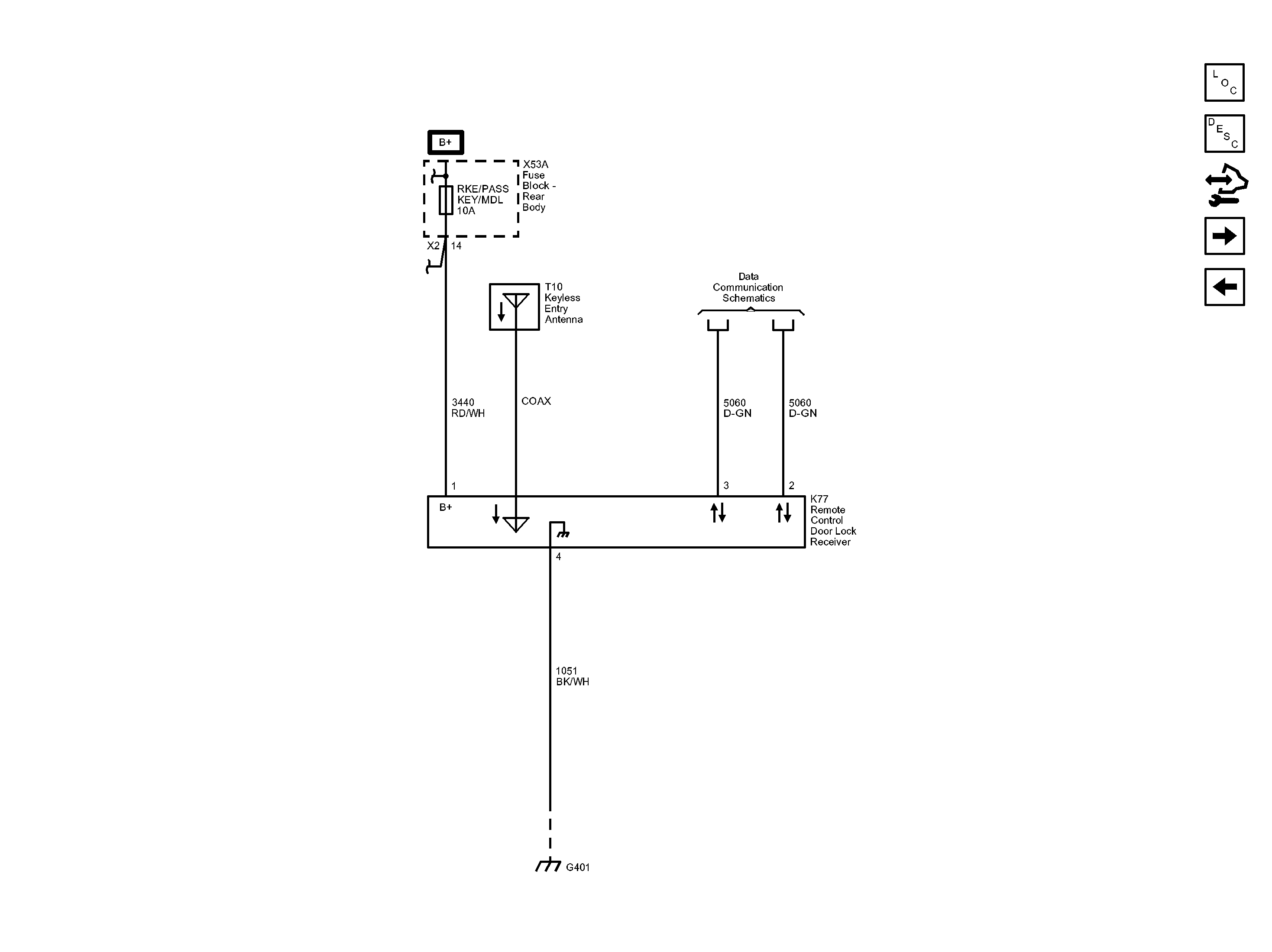
Keyless Entry (without ATH)

WARNING: This page is about a different car, the 2013 Cadillac CTS. However, it is still accessible from the selected car via links, so may be relevant.
Fig 1: Keyless Entry Wiring Schematic (without ATH)
GM2779209Courtesy of GENERAL MOTORS COMPANY