LEMON Manuals: Even more car manuals for everyone: 1960-2025
Home >> Pontiac >> 2008 >> Solstice Base, Automatic >> Repair and Diagnosis >> External Pages >> Different car >> Section 49 (Data Communication System) >> Schematic and Routing Diagrams >> Body Control System Schematics
April 5, 2026: LEMON Manuals is launched! Read the announcement.

Body Control System Schematics

WARNING: This page is about a different car, the 2008 Pontiac G5 and 2008 Chevrolet Cobalt. However, it is still accessible from the selected car via links, so may be relevant.
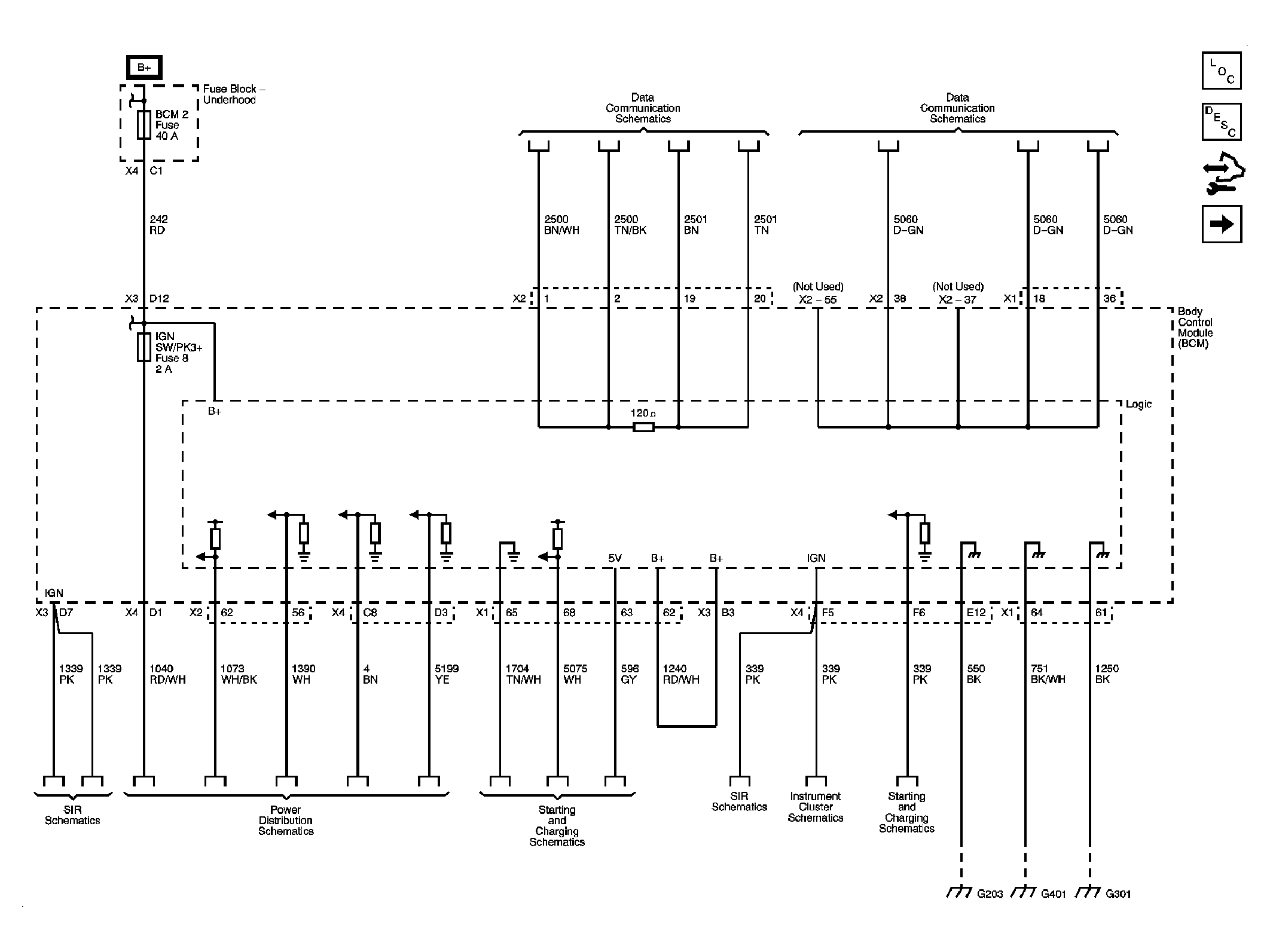
Fig 1: Power, Ground, Communication, References Schematic (1 of 5)
GM1963503Courtesy of GENERAL MOTORS CORP.
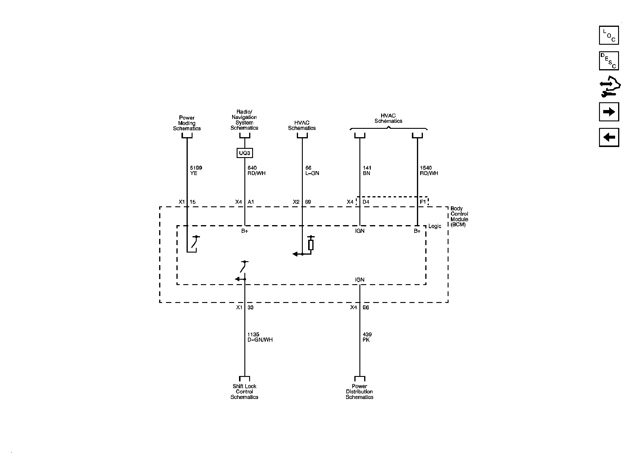
Fig 2: References (2 of 5)
GM1963506Courtesy of GENERAL MOTORS CORP.
Fig 3: References Schematic (3 of 5)
GM1963508Courtesy of GENERAL MOTORS CORP.
Fig 4: References Schematic (4 of 5)
GM1963511Courtesy of GENERAL MOTORS CORP.
Fig 5: References Schematic (5 of 5)
GM1963515Courtesy of GENERAL MOTORS CORP.