LEMON Manuals: Even more car manuals for everyone: 1960-2025
Home >> Saab >> 2005 >> 9-3 Linear, 2D Convertible, Automatic >> Repair and Diagnosis >> Brakes >> Anti-Lock/Traction Control >> Technical description >> TCS/ESP, detailed description >> Pump function >> Notes
April 5, 2026: LEMON Manuals is launched! Read the announcement.

Pump function: Notes

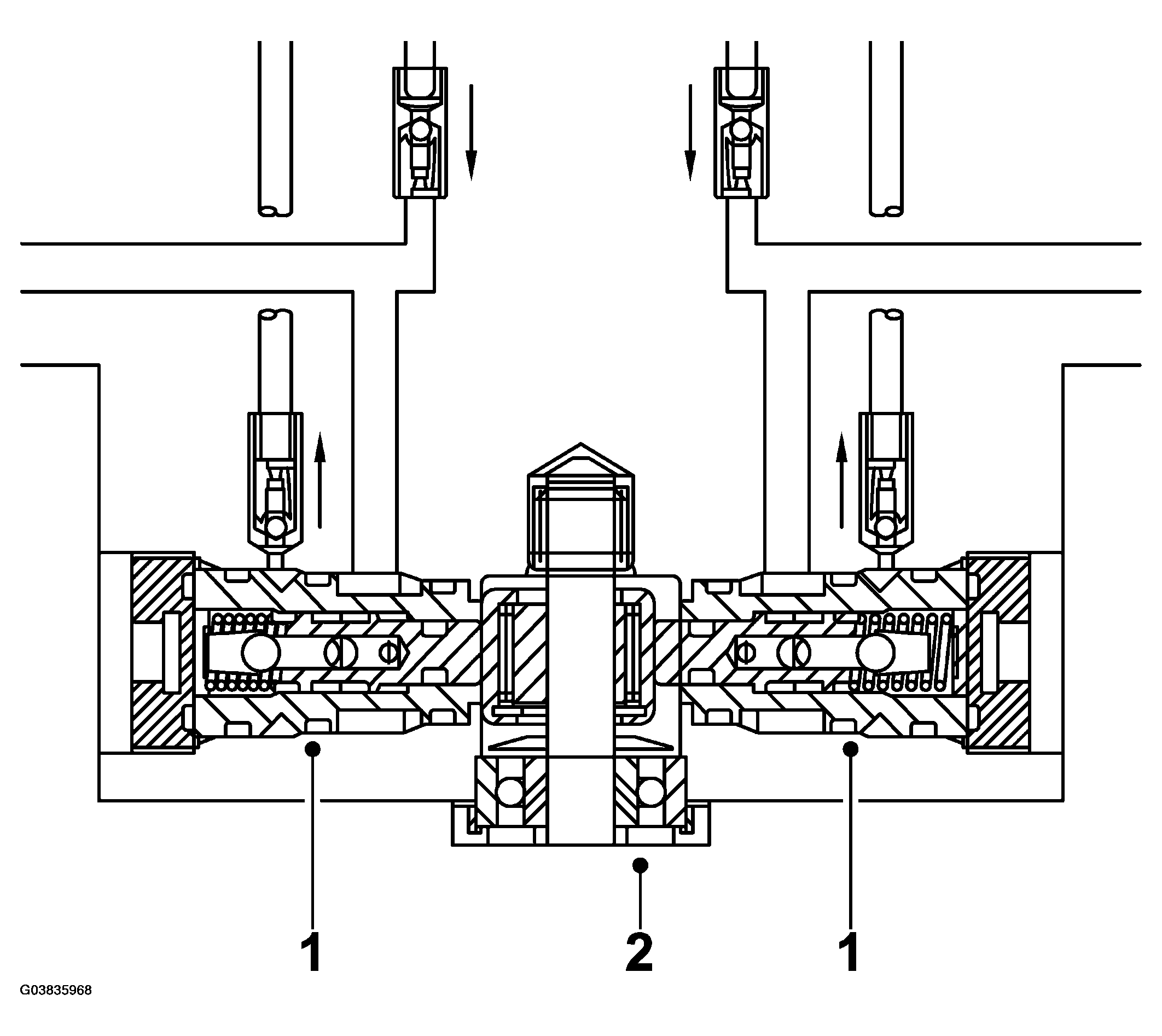
Fig 1: Illustration For Step 1 And 2
G03835968Courtesy of SAAB-SCANIA OF AMERICA, INC.
  1. Pump housing 
  2. Pump motor eccentric shaft 

The pump is integrated in the hydraulic unit and consists of two pump elements and a DC motor. Each pump element is driven by a motor which has an eccentric wheel in one shaft end.

The pump has two control valves (inlet and outlet valves) and receives brake fluid from the accumulator chamber (LPA).

The hydraulic pump and electric motor are an integral part of the valve block and cannot be replaced separately.